Tudor & Co says ..
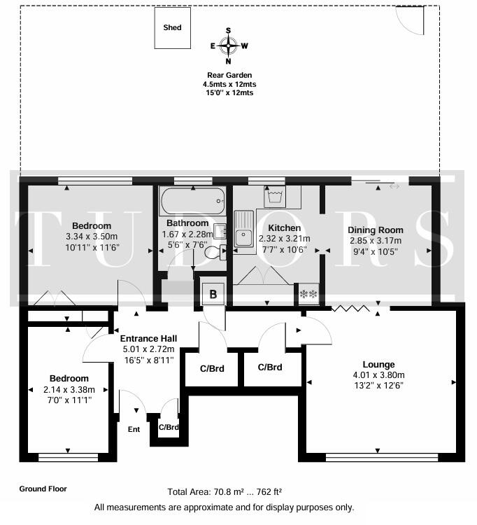
NO CHAIN. TUDORS are pleased to offer for sale this rare to the market, 1960s Wates development built, two double bedroom ground floor maisonette with the benefit of having direct access to southerly facing garden.
Property Oracle says ..
This maisonette is located in West Molesey, Surrey, an area with good transport links and nearby schools. The property itself appears to be in reasonable condition, though some modernisation may be desirable. The presence of a small garden is a positive feature. However, the lack of square footage data makes it difficult to accurately assess the value for money. Considering the average house price in the area is significantly higher, and nearby comparable properties are listed at higher prices, the list price of £375,000 may represent good value, but more information is needed to confirm this.
Therefore, we give this property 6 / 10. *Disclaimer: This is our option and does constitute a recommendation or financial advice. Do your own research. *
- Price
- 7
- Condition
- 6
- Location
- 8
- Land
- 4
- Bedrooms
- 2
- Bathrooms
- 1
- Sqft (est)
- 630.00
- Lot (est)
- 762.00
The heatmap indicates the level of crime in the area. The color of the heatmap indicates the crime severity and recency.
Metrics Year-on-Year
- Average area value
- 736,658.00 £Decreased by 7.15 %
- Est sale value
- 456,120.00 £Increased by 11.56 %
- Average area rental value
- 2,100.00 £/moDecreased by 8.93 %
- Est letting value
- 1,260.00 £/moIncreased by 100.00 %
- Est rental Yield
- 3.42 %Decreased by 2.01 %
- Crime Rate
- 5.00 %Unchanged by 0.00 %
Agent Activity
Tudor & Co created the listing.
Nearby Schools
| Name | Type | Ofsted | Distance |
|---|---|---|---|
| Hurst Park Primary School | Community School | Good | 0.66 KM |
| Fox Grove School | Free Schools Special | 0.75 KM | |
| Chandlers Field Primary School | Foundation School | Good | 0.82 KM |
| Three Rivers Sure Start Children'S Centre | Children's Centre | 0.95 KM | |
| St Alban'S Catholic Primary School | Academy Converter | Good | 0.96 KM |
Images
Nearby Streets
| Name | Average Price | Average Sqft | Distance |
|---|---|---|---|
| Lavender Court | £ 0 | 0 | 0.00 KM |
| The Fairway | £ 536,667 | 0 | 0.00 KM |
| Windsor Avenue | £ 0 | 0 | 0.00 KM |
| Lower Sunbury Road | £ 70,000 | 0 | 0.00 KM |
| Park Way | £ 890,000 | 0 | 0.00 KM |
Nearby Transport
| Name | NLC | TLC | Distance |
|---|---|---|---|
| Hampton | 5560 | HMP | 1.21 KM |
| Hampton Court | 5561 | HMC | 2.78 KM |
| Esher | 5558 | ESH | 3.31 KM |
| Thames Ditton | 5610 | THD | 3.67 KM |
| Fulwell | 5587 | FLW | 3.70 KM |
Nearby Listings
| Address | Price | Type | Score | Distance |
|---|---|---|---|---|
| Kelvinbrook, West Molesey, KT8 | £ 385,000 | BUY | 7 / 10 | 0.00 KM |
| Kelvinbrook, West Molesey, KT8 | £ 375,000 | BUY | 6 / 10 | 0.00 KM |
| Cherimoya Gardens, West Molesey, KT8 | £ 675,000 | BUY | 8 / 10 | 0.10 KM |
| Spurfield, West Molesey, KT8 | £ 385,000 | BUY | Unknown | 0.14 KM |
| Land at Linkfield, West Molesey, Surrey, KT8 1SD | £ 1,000 | BUY | 4 / 10 | 0.14 KM |
Nearby Properties
| Address | Price | Distance |
|---|---|---|
| 57 Kelvinbrook | £ 260,000 | 0.01 KM |
| 27 Kelvinbrook | £ 435,000 | 0.01 KM |
| 47 Kelvinbrook | £ 367,500 | 0.01 KM |
| 51 Kelvinbrook | £ 164,500 | 0.01 KM |
| 23 Kelvinbrook | £ 500,000 | 0.01 KM |