Norton Road, Thurston, Bury St. Edmunds
By William H. Brown
£ 390,000
Reviews
3 out of 5 stars
William H. Brown says ..
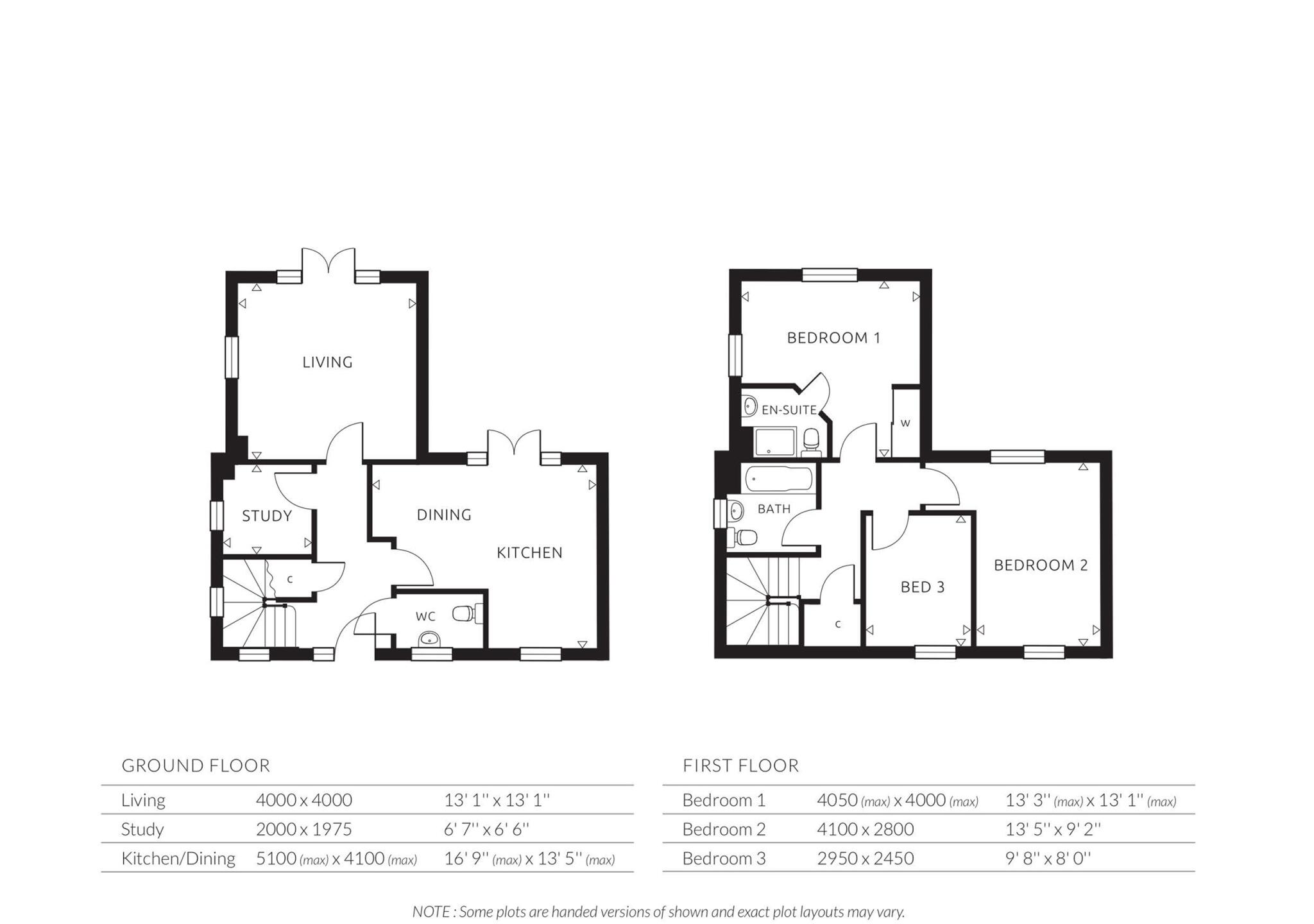
Plot 4, The Nightingale positioned to the front of the development with a west facing garden & close to an open green space, benefits from 3 bedrooms with master en-suite, open plan kitchen/diner, separate living room, study, cloakroom, garage and parking. SALES OFFICE OPEN DAILY 10AM-5PM.
Property Oracle says ..
The property is a 3-bedroom, 2-bathroom house listed at £390,000. The images show a newly built, modern property that appears to be in excellent condition. The kitchen and bathrooms are contemporary and well-equipped. The property benefits from a small garden, visible in the provided images. The location in Thurston, Mid Suffolk is positive. Thurston Community College is within close proximity, making it convenient for families with school-aged children. The presence of a train station (Thurston station, 0.59km away) adds to the appeal, providing good transport links. Considering the average house price in the area is £425,206 and the average price per square foot is £366, the listed price of £390,000 appears reasonable, especially given the property’s apparent new build condition and proximity to local amenities. However, the lack of plot size information and the limited comparable sales data (nearby listings have missing sqft data) makes a definitive price assessment challenging. More information on comparable properties and the exact plot size would allow for a more precise evaluation.
Therefore, we give this property 7 / 10. *Disclaimer: This is our option and does constitute a recommendation or financial advice. Do your own research. *
- Price
- 7
- Condition
- 10
- Location
- 8
- Land
- 3
- Bedrooms
- 3
- Bathrooms
- 2
- Sqft (est)
- 22,200.00
The heatmap indicates the level of crime in the area. The color of the heatmap indicates the crime severity and recency.
Metrics Year-on-Year
- Average area value
- 418,571.00 £Decreased by 7.66 %
- Est sale value
- 7,570,200.00 £Decreased by 2.29 %
- Average area rental value
- 1,600.00 £/moIncreased by 55.19 %
- Est letting value
- 22,200.00 £/mo
- Est rental Yield
- 4.59 %Increased by 68.13 %
- Crime Rate
- 13.00 %Unchanged by 0.00 %
Agent Activity
William H. Brown created the listing.
Nearby Schools
| Name | Type | Ofsted | Distance |
|---|---|---|---|
| Thurston Community College | Community School | Good | 0.23 KM |
| Rougham Church Of England Primary School | Academy Sponsor Led | 3.24 KM | |
| Great Barton Church Of England Primary Academy | Academy Converter | 4.82 KM | |
| Ixworth Church Of England Primary School | Academy Sponsor Led | 5.64 KM | |
| Sybil Andrews Academy | Academy Sponsor Led | Requires improvement | 5.99 KM |
Images
Nearby Streets
| Name | Average Price | Average Sqft | Distance |
|---|---|---|---|
| Lady Road | £ 346,495 | 0 | 0.00 KM |
| Skipper Close | £ 370,000 | 0 | 0.00 KM |
| The Acorns | £ 575,000 | 0 | 0.00 KM |
| Meadow Lane | £ 0 | 0 | 0.00 KM |
| Hunter Drive | £ 0 | 0 | 0.00 KM |
Nearby Transport
| Name | NLC | TLC | Distance |
|---|---|---|---|
| Thurston | 7356 | TRS | 0.59 KM |
Nearby Listings
| Address | Price | Type | Score | Distance |
|---|---|---|---|---|
| Norton Road, Thurston, Bury St. Edmunds | £ 425,000 | BUY | 7 / 10 | 0.00 KM |
| Norton Road, Thurston, Bury St. Edmunds | £ 390,000 | BUY | 7 / 10 | 0.00 KM |
| Norton Road, Thurston, Bury St. Edmunds | £ 299,000 | BUY | 7 / 10 | 0.00 KM |
| Norton Road, Thurston, Bury St. Edmunds | £ 350,000 | BUY | 9 / 10 | 0.00 KM |
| Rylands Close, Thurston, Bury St. Edmunds | £ 290,000 | BUY | 7 / 10 | 0.00 KM |
Nearby Properties
| Address | Price | Distance |
|---|---|---|
| 6 Rylands Close | £ 97,500 | 0.00 KM |
| 54 Barleyfields | £ 137,500 | 0.15 KM |
| 10 Barleyfields | £ 161,500 | 0.15 KM |
| 44 Barleyfields | £ 480,000 | 0.15 KM |
| 6 Barleyfields | £ 335,000 | 0.15 KM |