High Street, Chipstead, Sevenoaks, Kent, TN13
By Jackson-Stops
£ 670,000
Reviews
3 out of 5 stars
Jackson-Stops says ..
A charming character cottage with off road parking and a delightful rear garden in the centre of this popular village ...
Property Oracle says ..
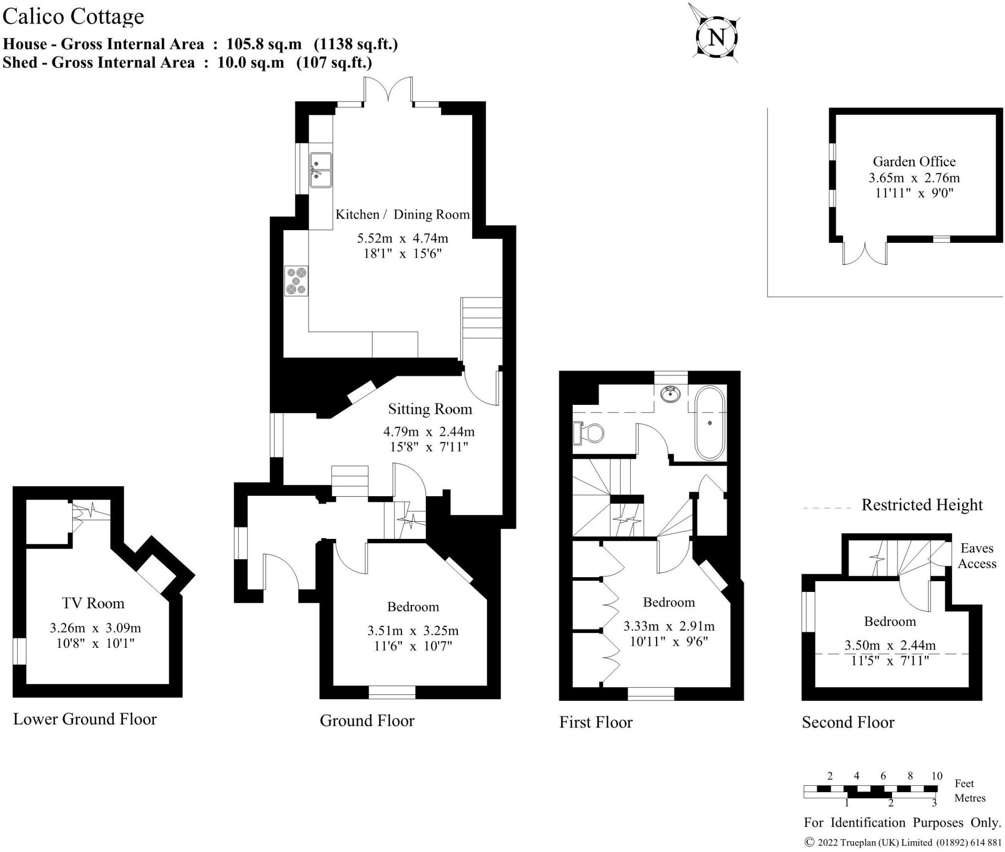
This charming semi-detached cottage is located on the High Street in the sought-after village of Chipstead, Kent. The property boasts three bedrooms and one bathroom, and its brick exterior with tiled roof is characteristic of the area. From the provided images, the interior displays a blend of original features and modern improvements. The kitchen is well-equipped and opens to a well maintained garden via French doors, making it perfect for entertaining. The garden itself offers a good amount of space and includes a substantial shed currently used as a home office. Additional features include off-street parking, a rare commodity in the village. The location is ideal, with easy access to local shops, amenities and highly-rated schools. Proximity to Sevenoaks station provides convenient commuting options. While precise details on plot size and square footage for comparable properties are absent, the list price seems in line with overall market trends in the area for properties of this type and size, though buyer interest and market dynamics can impact the actual sale price significantly. The property’s age and charm, combined with the garden and location will be key selling points. Potential buyers should conduct a full survey to ascertain the property’s condition in detail before making an offer.
Therefore, we give this property 7 / 10. *Disclaimer: This is our option and does constitute a recommendation or financial advice. Do your own research. *
- Price
- 7
- Condition
- 7
- Location
- 8
- Land
- 6
- Bedrooms
- 3
- Bathrooms
- 1
- Sqft (est)
- 1,138.82
The heatmap indicates the level of crime in the area. The color of the heatmap indicates the crime severity and recency.
Metrics Year-on-Year
- Average area value
- 1,056,667.00 £Increased by 9.22 %
- Est sale value
- 893,973.70 £Increased by 34.88 %
- Average area rental value
- 6,495.00 £/moIncreased by 171.98 %
- Est letting value
- 4,555.28 £/moIncreased by 300.00 %
- Est rental Yield
- 7.38 %Increased by 149.32 %
- Crime Rate
- 7.00 %Unchanged by 0.00 %
Agent Activity
Jackson-Stops created the listing.
Nearby Schools
| Name | Type | Ofsted | Distance |
|---|---|---|---|
| Chevening, St Botolph'S Church Of England Voluntary Aided Primary School | Voluntary Aided School | Good | 0.93 KM |
| Amherst School | Academy Converter | Good | 0.99 KM |
| Riverhead Infants' School | Community School | Outstanding | 1.55 KM |
| Dunton Green Primary School | Community School | Good | 1.81 KM |
| Sundridge And Brasted Church Of England Voluntary Controlled Primary School | Voluntary Controlled School | Requires improvement | 3.21 KM |
Images
Nearby Streets
| Name | Average Price | Average Sqft | Distance |
|---|---|---|---|
| The Terrace | £ 0 | 0 | 0.00 KM |
| Cold Arbor Road | £ 0 | 0 | 0.00 KM |
| Witches Lane | £ 0 | 0 | 0.00 KM |
| Lusted Road | £ 0 | 0 | 0.00 KM |
| Back Lane | £ 0 | 0 | 0.00 KM |
Nearby Transport
| Name | NLC | TLC | Distance |
|---|---|---|---|
| Dunton Green | 5102 | DNG | 2.29 KM |
| Sevenoaks | 5124 | SEV | 3.15 KM |
| Bat And Ball | 5090 | BBL | 4.46 KM |
| Otford | 5071 | OTF | 5.70 KM |
| Shoreham (Kent) | 5074 | SEH | 6.56 KM |
Nearby Listings
| Address | Price | Type | Score | Distance |
|---|---|---|---|---|
| High Street, Chipstead, TN13 | £ 660,000 | BUY | 7 / 10 | 0.01 KM |
| High Street, Chipstead, Sevenoaks, Kent, TN13 | £ 2,100,000 | BUY | 6 / 10 | 0.06 KM |
| High Street, Chipstead, Sevenoaks, Kent, TN13 | £ 1,750,000 | BUY | 7 / 10 | 0.07 KM |
| The Old Carriageway, Chipstead, TN13 | £ 1,475,000 | BUY | Unknown | 0.12 KM |
| High Street, Chipstead, Sevenoaks, Kent, TN13 | £ 1,300,000 | BUY | Unknown | 0.15 KM |
Nearby Properties
| Address | Price | Distance |
|---|---|---|
| 27 High Street | £ 310,000 | 0.05 KM |
| 59 High Street | £ 950,000 | 0.05 KM |
| 51 High Street | £ 535,000 | 0.05 KM |
| 29 - 31 High Street | £ 955,000 | 0.08 KM |
| 33 High Street | £ 1,050,000 | 0.08 KM |