Staines-upon-Thames, Surrey, TW15
By Chancellors
£ 675,000
Reviews
3 out of 5 stars
Chancellors says ..
Presenting to market a three bedroom detached property in Staines with no onward chain. This property is located 1.2 miles from Ashford Primary School and benefits from being 0.8 miles to Ashford train station. Viewings are highly recommended.
Property Oracle says ..
This property is located in Ashford East, Staines-upon-Thames, a suburban area in Surrey. The area benefits from relatively easy access to transport links, including Ashford train station (0.95km away) providing services to London Waterloo. There are also several primary and secondary schools within a reasonable distance, including Clarendon Primary School (rated ‘Good’ by Ofsted). The property itself is a three-bedroom detached house with a garden. While the images show a modern interior, the garden appears somewhat overgrown and in need of attention. The property is listed at £675,000, which is above the average price for the area (£496,068). However, the average size of properties in the area is significantly larger (1,129 sqft compared to 735 sqft for this property). Therefore, the price per sqft is higher than the average for the area, though this is not unusual for smaller properties in desirable locations.
Therefore, we give this property 6 / 10. *Disclaimer: This is our option and does constitute a recommendation or financial advice. Do your own research. *
- Price
- 6
- Condition
- 7
- Location
- 8
- Land
- 6
- Bedrooms
- 3
- Bathrooms
- 1
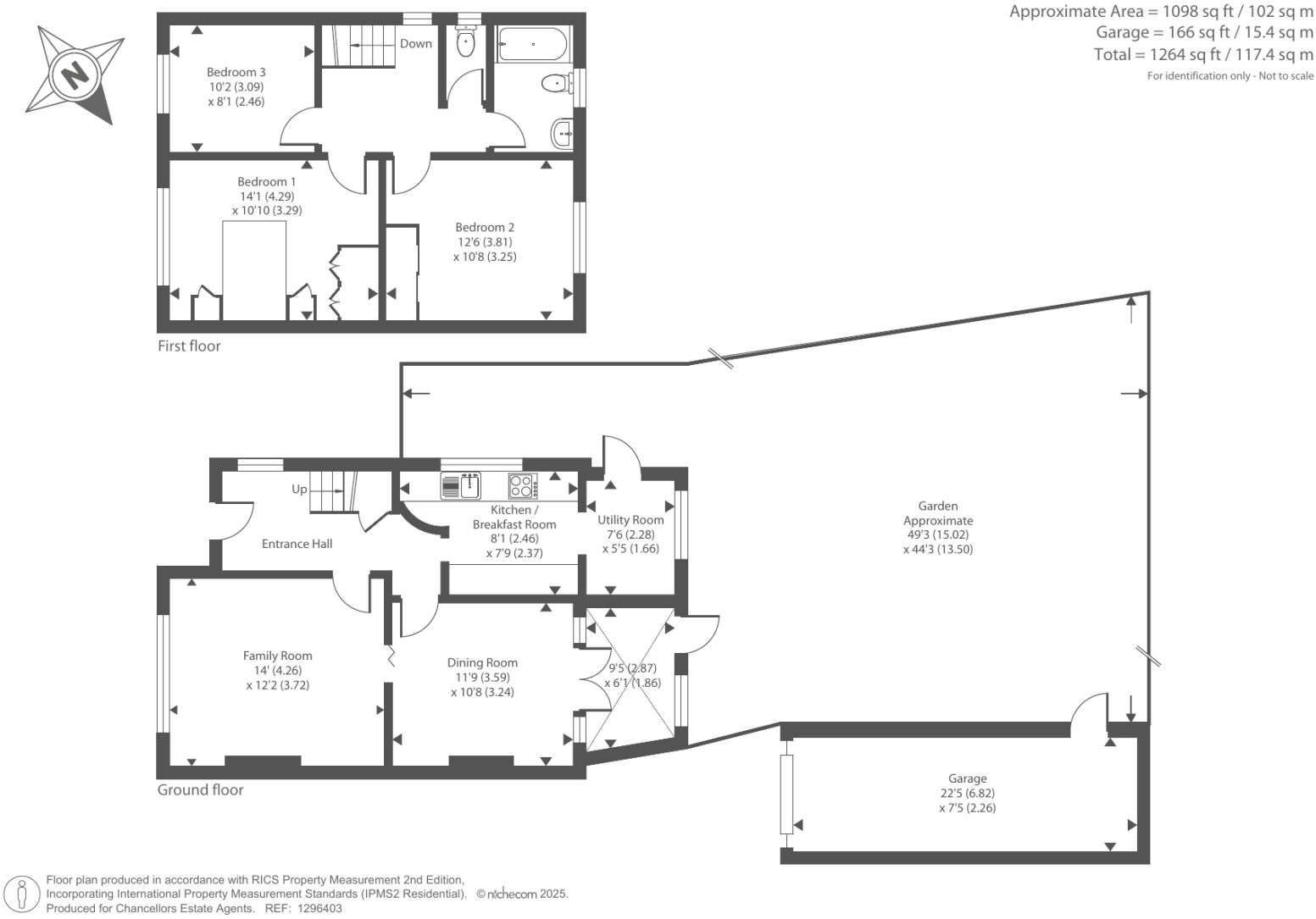
- Sqft (est)
- 735.00
- Lot (est)
- 1,098.00
The heatmap indicates the level of crime in the area. The color of the heatmap indicates the crime severity and recency.
Metrics Year-on-Year
- Average area value
- 462,850.00 £Decreased by 5.15 %
- Est sale value
- 407,925.00 £Decreased by 11.06 %
- Average area rental value
- 2,383.00 £/moIncreased by 36.48 %
- Est letting value
- 1,470.00 £/moUnchanged by 0.00 %
- Est rental Yield
- 6.18 %Increased by 44.06 %
- Crime Rate
- 3.00 %Unchanged by 0.00 %
Agent Activity
Chancellors created the listing.
Nearby Schools
| Name | Type | Ofsted | Distance |
|---|---|---|---|
| Clarendon School & Sure Start Children'S Centre | Children's Centre | 0.97 KM | |
| Clarendon Primary School | Community School | Good | 0.98 KM |
| St James Senior Boys' School | Other Independent School | 1.18 KM | |
| St Michael Catholic Primary School | Voluntary Aided School | Outstanding | 1.18 KM |
| Fordway Centre | Academy Alternative Provision Converter | 1.25 KM |
Images
Nearby Streets
| Name | Average Price | Average Sqft | Distance |
|---|---|---|---|
| Badgers Close | £ 0 | 0 | 0.00 KM |
| Badgers Close | £ 0 | 0 | 0.00 KM |
| Manor Road | £ 315,000 | 0 | 0.00 KM |
| Ashford Road | £ 800,000 | 0 | 0.00 KM |
| College Way | £ 150,000 | 0 | 0.00 KM |
Nearby Transport
| Name | NLC | TLC | Distance |
|---|---|---|---|
| Ashford (Surrey) | 5667 | AFS | 0.95 KM |
| Staines | 5670 | SNS | 3.81 KM |
| Shepperton | 5605 | SHP | 4.25 KM |
| Heathrow Terminal 4 | 7091 | HAF | 4.26 KM |
| Upper Halliford | 5613 | UPH | 4.53 KM |
Nearby Listings
| Address | Price | Type | Score | Distance |
|---|---|---|---|---|
| Staines-upon-Thames, Surrey, TW15 | £ 675,000 | BUY | 6 / 10 | 0.00 KM |
| Staines-upon-Thames, Surrey, TW15 | £ 675,000 | BUY | Unknown | 0.00 KM |
| Fifehead Close, Ashford, TW15 | £ 800,000 | BUY | 6 / 10 | 0.10 KM |
| Fifehead Close, Ashford | £ 820,000 | BUY | 6 / 10 | 0.12 KM |
| Conifer Court, Ashford | £ 339,950 | BUY | 6 / 10 | 0.18 KM |
Nearby Properties
| Address | Price | Distance |
|---|---|---|
| 1 Perrin Close | £ 435,000 | 0.14 KM |
| 5 Perrin Close | £ 381,700 | 0.14 KM |
| 6 Perrin Close | £ 485,000 | 0.14 KM |
| 227 Stanwell Road | £ 465,000 | 0.15 KM |
| 109 Fordbridge Road | £ 343,500 | 0.17 KM |