Haddon Road, Sutton, SM1
GO

Haddon Road, Sutton, SM1

By Goodfellows

£ 540,000

Reviews

3 out of 5 stars

Goodfellows says ..

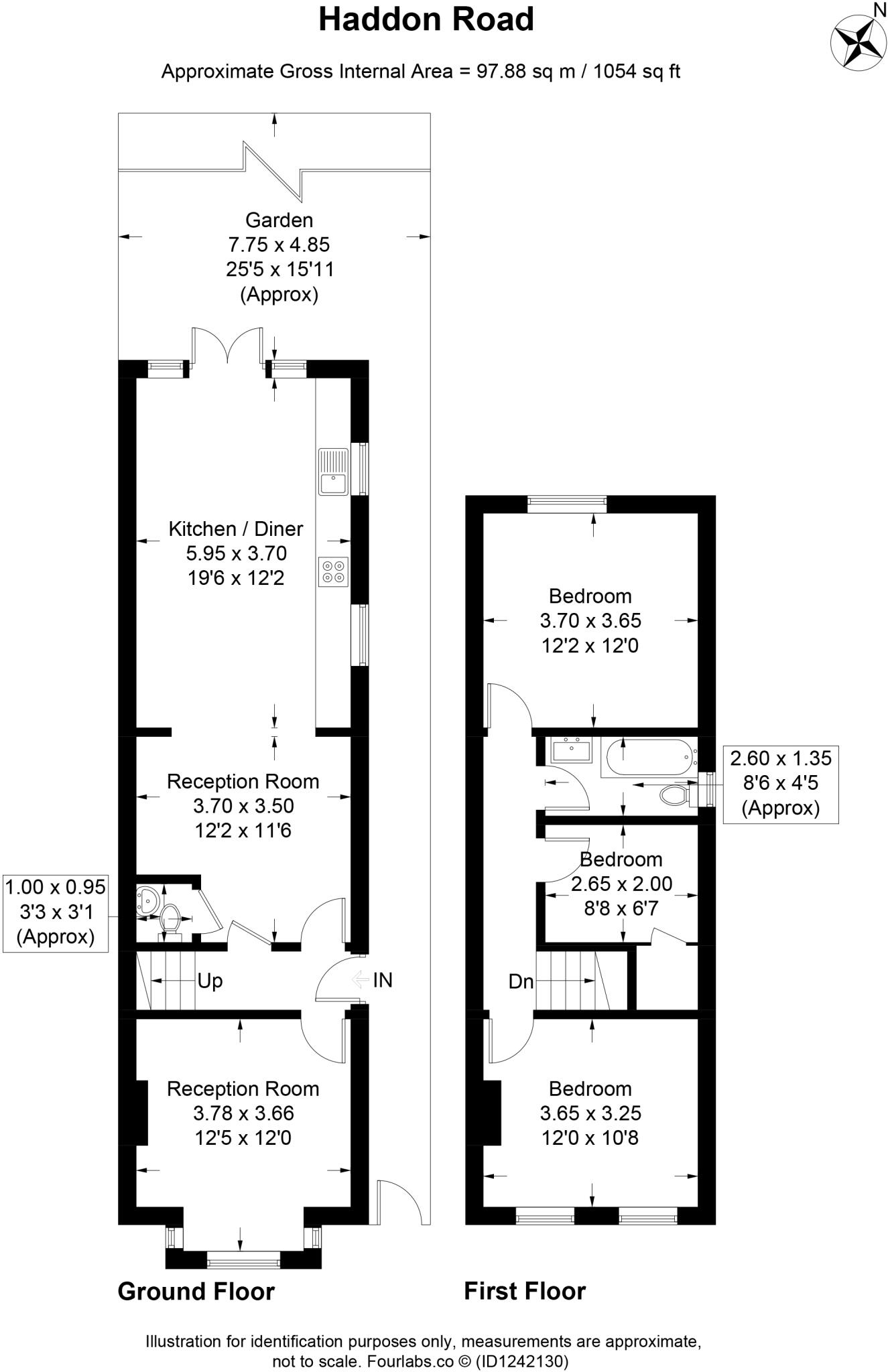
A beautifully presented three-bedroom period semi-detached home, available to view immediately. This extended property is superbly located within walking distance of Sutton town centre, offering excellent transport links to London and a selection of highly regarded local schools—making...

Property Oracle says ..

This is a well-presented three-bedroom semi-detached house in Sutton Central. The property benefits from a modern kitchen and bathroom, and a garden. Its location offers good access to local schools and transportation links, making it suitable for families and commuters. The price appears to be in line with the local market, considering the property’s size and condition.

Therefore, we give this property 7 / 10. *Disclaimer: This is our option and does constitute a recommendation or financial advice. Do your own research. *

Price
7
Condition
8
Location
7
Land
6
Bedrooms
3
Bathrooms
1
Sqft (est)
1,260.78

The heatmap indicates the level of crime in the area. The color of the heatmap indicates the crime severity and recency.

Metrics Year-on-Year

Average area value
404,917.00 £
Increased by 11.82 %
from 362,131.00 £
Est sale value
540,874.62 £
Decreased by 12.63 %
from 619,042.98 £
Average area rental value
1,930.00 £/mo
Increased by 5.12 %
from 1,836.00 £/mo
Est letting value
2,521.56 £/mo
Unchanged by 0.00 %
from 2,521.56 £/mo
Est rental Yield
5.72 %
Decreased by 5.92 %
from 6.08 %
Crime Rate
11.00 %
Unchanged by 0.00 %
from 11.00 %

Agent Activity

  • Goodfellows created the listing.

Nearby Schools

NameTypeOfstedDistance
Robin Hood Junior SchoolCommunity SchoolGood0.09 KM
Sutton College Of Learning For AdultsMiscellaneous0.55 KM
Thomas Wall Nursery SchoolLocal Authority Nursery SchoolOutstanding0.56 KM
Robin Hood Infants' SchoolCommunity SchoolOutstanding0.56 KM
The Limes CollegeAcademy Alternative Provision Converter0.57 KM

Images

Picture No. 42 Picture No. 43 Picture No. 70 Picture No. 50 Picture No. 51 Picture No. 67 Picture No. 56 Picture No. 58 Picture No. 63 Picture No. 60 Picture No. 61 Picture No. 68 Picture No. 71 Picture No. 47 Picture No. 55 Picture No. 44 Picture No. 45 Picture No. 46 Picture No. 48 Picture No. 49 Picture No. 52 Picture No. 53 Picture No. 54 Picture No. 57 Picture No. 59 Picture No. 62 Picture No. 64 Picture No. 65 Picture No. 66 Picture No. 69

Nearby Streets

NameAverage PriceAverage SqftDistance
Wilcox Road £ 000.00 KM
West Street £ 400,00000.00 KM
Bushey Road £ 000.00 KM
Vale Road £ 000.00 KM
Gibson Road £ 000.00 KM

Nearby Transport

NameNLCTLCDistance
Sutton5385SUO0.94 KM
West Sutton5293WSU0.96 KM
Sutton Common5436SUC0.97 KM
Cheam5352CHE2.29 KM
Belmont5350BLM2.51 KM

Nearby Listings

AddressPriceTypeScoreDistance
Haddon Road, Sutton, SM1 £ 540,000BUY7 / 100.00 KM
Haddon Road, Sutton, Surrey, SM1 £ 550,000BUY7 / 100.03 KM
Greenford Road, Sutton, SM1 £ 635,000BUY7 / 100.06 KM
Greenford Road, Sutton £ 750,000BUY6 / 100.07 KM
Clarence Road, Sutton, Surrey £ 347,000BUY6 / 100.10 KM

Nearby Properties

AddressPriceDistance
52 Haddon Road £ 359,9500.00 KM
31 Haddon Road £ 190,0000.00 KM
62 Haddon Road £ 350,0000.00 KM
47 Haddon Road £ 284,0000.00 KM
44 Haddon Road £ 420,5000.00 KM