Blackwell Avenue, Guildford, GU2
By Curchods Estate Agents
£ 450,000
Reviews
3 out of 5 stars
Curchods Estate Agents says ..
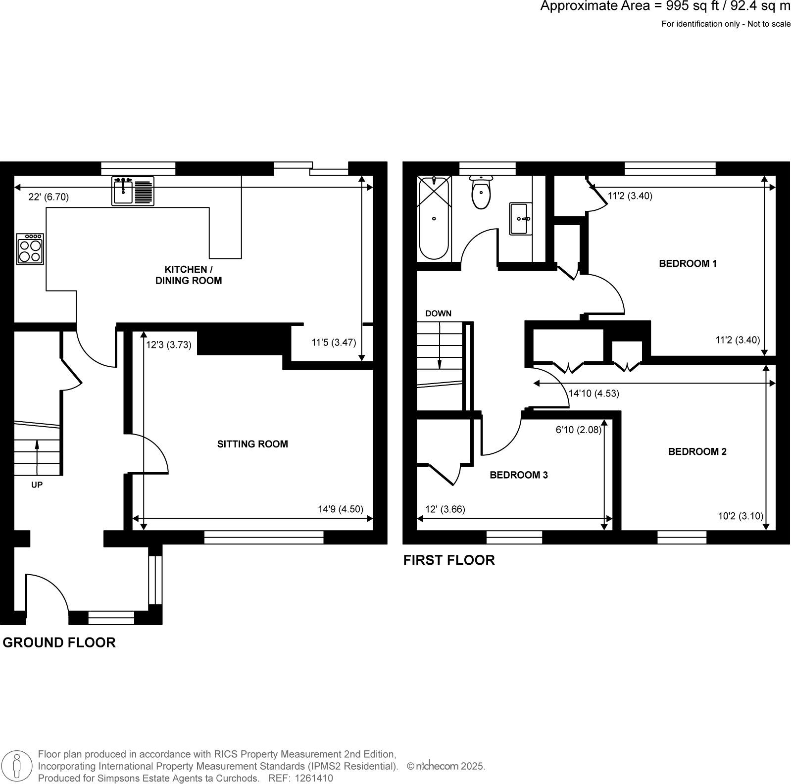
Located in a quiet residential area, this spacious mid-terrace property offers comfortable and contemporary living. The ground floor features a separate living room and a modern open-plan kitchen/dining room, perfect for entertaining. Upstairs, there are three well-proportioned bedrooms and a sty...
Property Oracle says ..
This three-bedroom end of terrace house is located in the Westborough area of Guildford, Surrey. The property benefits from a good-sized rear garden and is conveniently located near several schools, including Guildford Grove Primary School (Good Ofsted rating) and Kings College Guildford (Good Ofsted rating), both within a kilometer. Transport links are also readily accessible, with Guildford train station approximately 3.91 km away. The property itself appears to be in good condition, with a recently modernised kitchen. The asking price of £450,000 is slightly above the average price for the area (£345,305), but considering the larger than average size (1295 sqft vs 901 sqft average) and the good condition, it could be considered reasonable. More information on the condition of the property and the specifics of the plot size would be beneficial for a more comprehensive assessment.
Therefore, we give this property 7 / 10. *Disclaimer: This is our option and does constitute a recommendation or financial advice. Do your own research. *
- Price
- 7
- Condition
- 8
- Location
- 9
- Land
- 7
- Bedrooms
- 3
- Bathrooms
- 1
- Sqft (est)
- 1,294.95
- Lot (est)
- 995.00
The heatmap indicates the level of crime in the area. The color of the heatmap indicates the crime severity and recency.
Metrics Year-on-Year
- Average area value
- 318,816.00 £Decreased by 2.54 %
- Est sale value
- 461,002.20 £Decreased by 5.57 %
- Average area rental value
- 1,709.00 £/moIncreased by 11.63 %
- Est letting value
- 1,294.95 £/moUnchanged by 0.00 %
- Est rental Yield
- 6.43 %Increased by 14.41 %
- Crime Rate
- 11.00 %Unchanged by 0.00 %
Agent Activity
Curchods Estate Agents created the listing.
Nearby Schools
| Name | Type | Ofsted | Distance |
|---|---|---|---|
| Guildford Grove Primary School | Academy Converter | Good | 0.62 KM |
| The Spinney Sure Start Children'S Centre | Children's Centre | 0.62 KM | |
| Kings College Guildford | Academy Sponsor Led | Good | 0.85 KM |
| Wood Street Infant School | Community School | Outstanding | 1.15 KM |
| Rydes Hill Preparatory School | Other Independent School | 1.47 KM |
Images
Nearby Streets
| Name | Average Price | Average Sqft | Distance |
|---|---|---|---|
| Langford Close | £ 0 | 0 | 0.00 KM |
| Stream Banks | £ 320,000 | 0 | 0.00 KM |
| Fairfield Close | £ 435,000 | 0 | 0.00 KM |
Nearby Transport
| Name | NLC | TLC | Distance |
|---|---|---|---|
| Guildford | 5631 | GLD | 3.91 KM |
| Farncombe | 5643 | FNC | 5.48 KM |
| London Road (Guildford) | 5632 | LRD | 5.52 KM |
| Wanborough | 5639 | WAN | 5.84 KM |
| Worplesdon | 5686 | WPL | 6.03 KM |
Nearby Listings
| Address | Price | Type | Score | Distance |
|---|---|---|---|---|
| Hunts Close, Guildford, Surrey, GU2 | £ 400,000 | BUY | 6 / 10 | 0.14 KM |
| Applegarth Avenue, Guildford, Surrey, GU2 | £ 525,000 | BUY | Unknown | 0.16 KM |
| Applegarth Avenue, Guildford, GU2 | £ 537,500 | BUY | 7 / 10 | 0.17 KM |
| Applegarth Avenue, Guildford, Surrey, GU2 | £ 537,500 | BUY | 6 / 10 | 0.17 KM |
| Rickyard, Guildford, GU2 | £ 350,000 | BUY | Unknown | 0.21 KM |
Nearby Properties
| Address | Price | Distance |
|---|---|---|
| 31 Homestall | £ 338,000 | 0.09 KM |
| 43 Homestall | £ 215,600 | 0.09 KM |
| 69 Homestall | £ 200,000 | 0.09 KM |
| 62 Homestall | £ 245,000 | 0.09 KM |
| 77 Homestall | £ 190,000 | 0.10 KM |