Ferry Cottage, Marston, Oxford, OX3
By Penny & Sinclair
£ 450,000
Reviews
3 out of 5 stars
Penny & Sinclair says ..
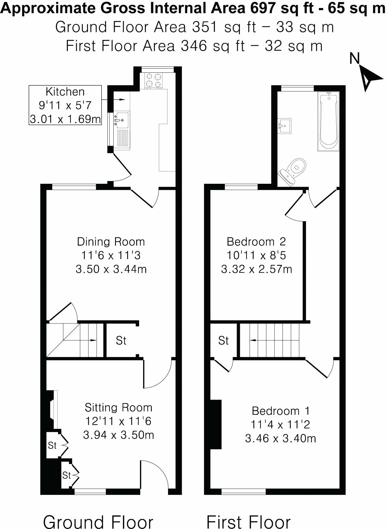
A well-presented two double bedroom Victorian terraced home situated on a popular no through road.
Property Oracle says ..
Therefore, we give this property 6 / 10. *Disclaimer: This is our option and does constitute a recommendation or financial advice. Do your own research. *
- Price
- 8
- Condition
- 6
- Location
- 7
- Land
- 6
- Bedrooms
- 2
- Bathrooms
- 1
- Sqft (est)
- 554.34
The heatmap indicates the level of crime in the area. The color of the heatmap indicates the crime severity and recency.
Metrics Year-on-Year
- Average area value
- 620,000.00 £Increased by 19.65 %
- Est sale value
- 554,340.00 £Increased by 70.36 %
- Average area rental value
- 1,496.00 £/moDecreased by 23.44 %
- Est letting value
- 1,108.68 £/moUnchanged by 0.00 %
- Est rental Yield
- 2.90 %Decreased by 35.98 %
- Crime Rate
- 4.00 %Unchanged by 0.00 %
from 518,187.00 £
from 325,397.58 £
from 1,954.00 £/mo
from 1,108.68 £/mo
from 4.53 %
from 4.00 %
Agent Activity
Penny & Sinclair created the listing.
Nearby Schools
| Name | Type | Ofsted | Distance |
|---|---|---|---|
| St Michael'S Cofe Primary School | Voluntary Aided School | Good | 0.38 KM |
| Oxford International College | Other Independent School | Good | 0.99 KM |
| St Joseph'S Catholic Primary School, Oxford | Voluntary Aided School | Good | 1.25 KM |
| St Nicholas' Primary And Nursery School | Community School | Good | 1.26 KM |
| Oxfordshire Hospital School | Community Special School | Outstanding | 1.26 KM |
Images
Nearby Streets
| Name | Average Price | Average Sqft | Distance |
|---|---|---|---|
| Harberton Mead | £ 0 | 0 | 0.00 KM |
| Marston Cyclepath | £ 0 | 0 | 0.00 KM |
| Crotch Crescent | £ 400,000 | 0 | 0.00 KM |
| Alan Bullock Close | £ 0 | 0 | 0.00 KM |
| Arlington Drive | £ 0 | 0 | 0.00 KM |
Nearby Transport
| Name | NLC | TLC | Distance |
|---|---|---|---|
| Oxford | 3115 | OXF | 3.61 KM |
| Oxford Parkway | 3121 | OXP | 6.33 KM |
| Islip | 3110 | ISP | 7.31 KM |
| Radley | 3118 | RAD | 8.23 KM |
Nearby Listings
| Address | Price | Type | Score | Distance |
|---|---|---|---|---|
| Ferry Cottage, Marston, Oxford, OX3 | £ 450,000 | BUY | 6 / 10 | 0.00 KM |
| Edgeway Road, Marston, Oxford, Oxfordshire, OX3 | £ 450,000 | BUY | Unknown | 0.04 KM |
| Marston, Oxford, OX3 | £ 435,000 | BUY | Unknown | 0.06 KM |
| Ferry Road, Oxford, OX3 | £ 550,000 | BUY | 5 / 10 | 0.13 KM |
| Marston, Oxford, OX3 | £ 450,000 | BUY | 7 / 10 | 0.13 KM |
Nearby Properties
| Address | Price | Distance |
|---|---|---|
| 75 Ferry Road | £ 530,000 | 0.07 KM |
| 48 Ferry Road | £ 593,800 | 0.07 KM |
| 45 Ferry Road | £ 235,000 | 0.07 KM |
| 73 Ferry Road | £ 387,000 | 0.07 KM |
| 37 Ferry Road | £ 440,000 | 0.07 KM |