Westgate Court, Long Lane, Hillingdon, UB10
By Coopers
£ 350,000
Reviews
3 out of 5 stars
Coopers says ..
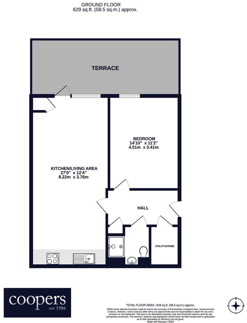
A one bedroom apartment is located in the sought-after gated development of Westgate Court on Long Lane, a desirable area in Hillingdon within walking distance of local shops and Hillingdon’s Metropolitan/Piccadilly line train station. Accessed through a communal entryphone system into a shared h...
Property Oracle says ..
This property is a one-bedroom apartment located in Westgate Court, Long Lane, Hillingdon. Based on the provided images, the apartment appears to be in excellent condition, with modern fixtures and finishes. The open-plan living space is bright and airy, and the kitchen is well-equipped. The bedroom is also well-presented. While the property does not appear to have a large garden, it benefits from a small patio area. The location in Hillingdon offers proximity to several amenities, including schools and transportation links. However, further information on the local market is needed to accurately assess the price.
Therefore, we give this property 6 / 10. *Disclaimer: This is our option and does constitute a recommendation or financial advice. Do your own research. *
- Price
- 6
- Condition
- 9
- Location
- 7
- Land
- 3
- Bedrooms
- 1
- Bathrooms
- 1
- Sqft (est)
- 629.00
- Lot (est)
- 629.00
The heatmap indicates the level of crime in the area. The color of the heatmap indicates the crime severity and recency.
Metrics Year-on-Year
- Average area value
- 491,250.00 £Decreased by 2.14 %
- Est sale value
- 353,498.00 £Increased by 21.91 %
- Average area rental value
- 1,654.00 £/moDecreased by 17.30 %
- Est letting value
- 629.00 £/moUnchanged by 0.00 %
- Est rental Yield
- 4.04 %Decreased by 15.48 %
- Crime Rate
- 12.00 %Unchanged by 0.00 %
Agent Activity
Coopers created the listing.
Nearby Schools
| Name | Type | Ofsted | Distance |
|---|---|---|---|
| St Helen'S College | Other Independent School | 0.47 KM | |
| Oak Farm Primary School | Foundation School | Outstanding | 0.51 KM |
| Oak Farm Children'S Centre | Children's Centre | 0.53 KM | |
| St Bernadette Catholic Primary School | Voluntary Aided School | Good | 0.98 KM |
| The Douay Martyrs Catholic School | Academy Converter | Good | 1.25 KM |
Images
Nearby Streets
| Name | Average Price | Average Sqft | Distance |
|---|---|---|---|
| Auriol Drive | £ 220,909 | 0 | 0.00 KM |
| Western Avenue | £ 0 | 0 | 0.00 KM |
| Haymaker Close | £ 0 | 0 | 0.00 KM |
| The Oaks | £ 0 | 0 | 0.00 KM |
| Malcolm Road | £ 0 | 0 | 0.00 KM |
Nearby Transport
| Name | NLC | TLC | Distance |
|---|---|---|---|
| West Ruislip | 3059 | WRU | 2.65 KM |
| West Drayton | 3174 | WDT | 5.02 KM |
| South Ruislip | 3057 | SRU | 5.54 KM |
| Hayes And Harlington | 3186 | HAY | 5.93 KM |
| Denham | 3052 | DNM | 6.36 KM |
Nearby Listings
| Address | Price | Type | Score | Distance |
|---|---|---|---|---|
| Westgate Court, Hillingdon, UB10 | £ 375,000 | BUY | 7 / 10 | 0.00 KM |
| Westgate Court, Long Lane, Hillingdon, UB10 | £ 350,000 | BUY | 6 / 10 | 0.00 KM |
| Victoria Avenue, Hillingdon, UB10 | £ 675,000 | BUY | Unknown | 0.11 KM |
| Victoria Avenue, Hillingdon, UB10 | £ 800,000 | BUY | Unknown | 0.13 KM |
| Victoria Avenue, Hillingdon | £ 550,000 | BUY | Unknown | 0.15 KM |
Nearby Properties
| Address | Price | Distance |
|---|---|---|
| 2 Ryefield Avenue | £ 707,000 | 0.07 KM |
| 3 Ryefield Avenue | £ 425,000 | 0.07 KM |
| 9 Ryefield Avenue | £ 680,000 | 0.07 KM |
| 5 Ryefield Avenue | £ 430,000 | 0.07 KM |
| 310 Long Lane | £ 460,000 | 0.10 KM |