GA
Cotton Close, Whaley Bridge, High Peak
By Gascoigne Halman
£ 310,000
Reviews
3 out of 5 stars
Gascoigne Halman says ..
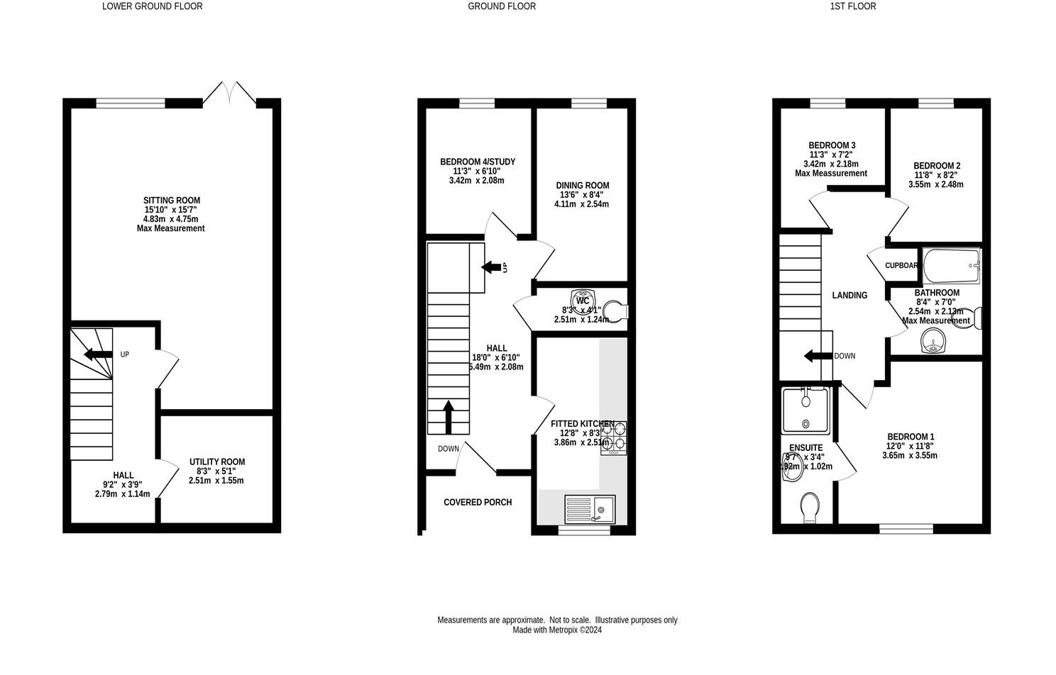
A MODERN SPACIOUS family Town House with excellent FOUR BEDROOM accommodation over THREE LEVELS. The location is central close to the TOWN with good amenities and RAIL LINKS. Externally the property has a garden area to the front, a rear garden WITH VIEWS, GARAGE and parking.
Property Oracle says ..
Therefore, we give this property 7 / 10. *Disclaimer: This is our option and does constitute a recommendation or financial advice. Do your own research. *
- Price
- 7
- Condition
- 7
- Location
- 7
- Land
- 7
- Bedrooms
- 4
- Bathrooms
- 1
- Sqft (est)
- 1,033.01
The heatmap indicates the level of crime in the area. The color of the heatmap indicates the crime severity and recency.
Metrics Year-on-Year
- Average area value
- 334,167.00 £Increased by 24.23 %
- Est sale value
- 265,483.57 £Decreased by 19.44 %
- Average area rental value
- 1,252.00 £/moIncreased by 4.33 %
- Est letting value
- 0.00 £/moDecreased by 100.00 %
- Est rental Yield
- 4.50 %Decreased by 15.89 %
- Crime Rate
- 10.00 %Unchanged by 0.00 %
from 269,000.00 £
from 329,530.19 £
from 1,200.00 £/mo
from 1,033.01 £/mo
from 5.35 %
from 10.00 %
Agent Activity
Gascoigne Halman created the listing.
Nearby Schools
| Name | Type | Ofsted | Distance |
|---|---|---|---|
| Whaley Bridge Primary School | Community School | Requires improvement | 0.97 KM |
| Taxal And Fernilee Cofe Primary School | Voluntary Controlled School | Good | 1.21 KM |
| Buxworth Primary School | Community School | Good | 2.19 KM |
| Furness Vale Primary And Nursery School | Community School | Good | 3.24 KM |
| Kettleshulme St James Cofe (Va) Primary School | Voluntary Aided School | Good | 4.56 KM |
Images
Nearby Streets
| Name | Average Price | Average Sqft | Distance |
|---|---|---|---|
| The Paddock | £ 235,000 | 0 | 0.00 KM |
| Dale View | £ 602,500 | 0 | 0.00 KM |
| Foundry Lane | £ 0 | 0 | 0.00 KM |
| Manor Road | £ 0 | 0 | 0.00 KM |
| Vaughan Road | £ 0 | 0 | 0.00 KM |
Nearby Transport
| Name | NLC | TLC | Distance |
|---|---|---|---|
| Whaley Bridge | 2772 | WBR | 1.24 KM |
| Furness Vale | 2952 | FNV | 3.31 KM |
| Chinley | 2823 | CLY | 4.41 KM |
| New Mills Newtown | 2769 | NMN | 5.43 KM |
| New Mills Central | 2974 | NMC | 5.74 KM |
Nearby Listings
| Address | Price | Type | Score | Distance |
|---|---|---|---|---|
| Cotton Close, Whaley Bridge, High Peak | £ 310,000 | BUY | 7 / 10 | 0.00 KM |
| Chapel Road, Whaley Bridge, High Peak | £ 235,000 | BUY | 6 / 10 | 0.07 KM |
| Chapel Road, Whaley Bridge, High Peak | £ 650,000 | BUY | 7 / 10 | 0.11 KM |
| Craig Drive, Whaley Bridge, High Peak | £ 495,000 | BUY | Unknown | 0.12 KM |
| Cotton Close, Whaley Bridge, High Peak | £ 310,000 | BUY | 6 / 10 | 0.15 KM |
Nearby Properties
| Address | Price | Distance |
|---|---|---|
| 2 Walters Wood | £ 220,000 | 0.07 KM |
| 7 Walters Wood | £ 220,000 | 0.07 KM |
| 4 Walters Wood | £ 206,500 | 0.07 KM |
| 6 Walters Wood | £ 240,000 | 0.07 KM |
| 83 Chapel Road | £ 429,950 | 0.11 KM |