Joseph Scott says ..
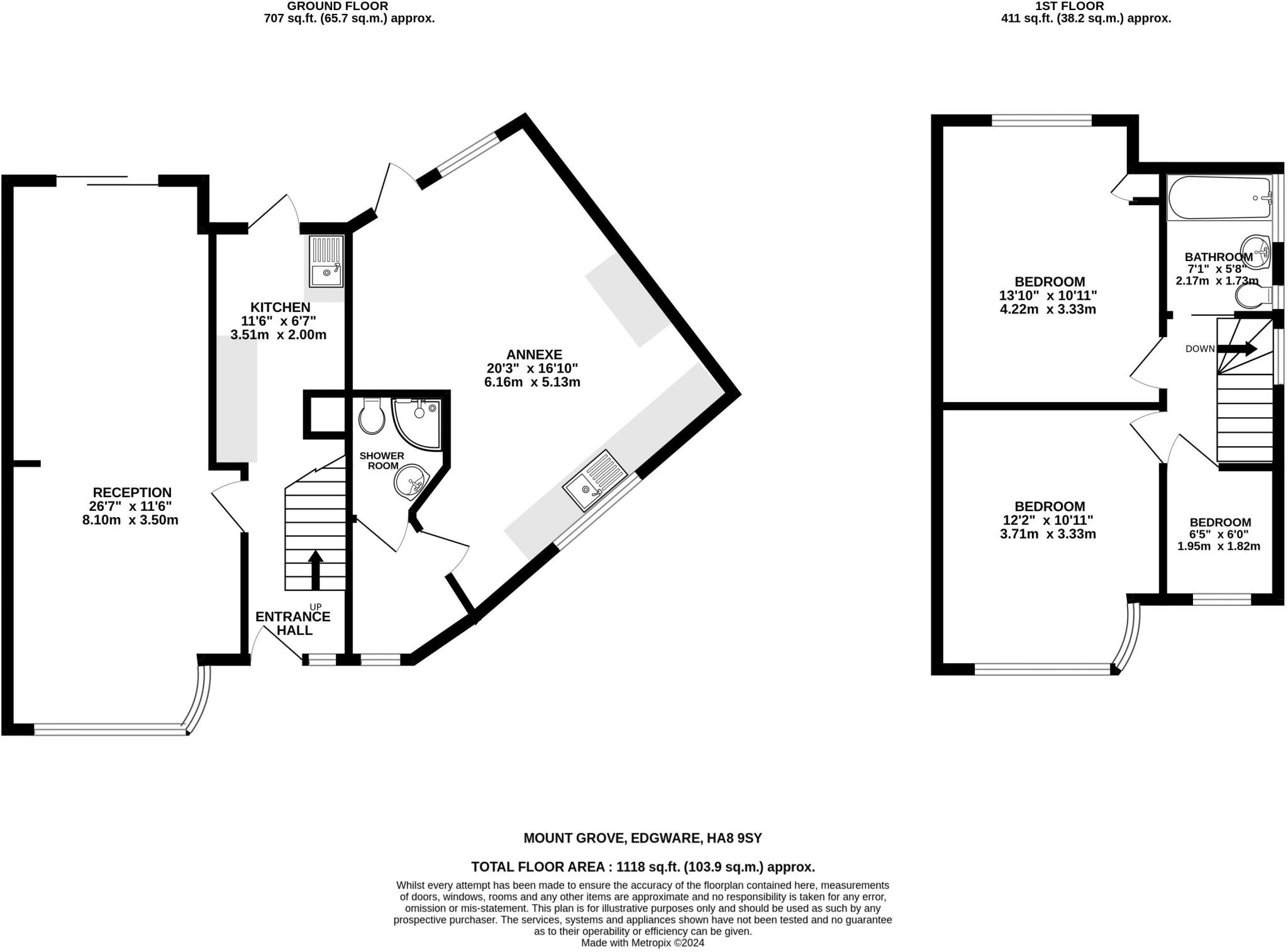
Exclusive To Joseph Scott - A Remarkable Three Bedroom Semi Detached House That Has Undergone Significant Development To Create A Separate One Bedroom, One Bathroom Annexe. The first floor of this property comprises a through lounge and kitchen with access to the quiet and peaceful private re...
Property Oracle says ..
This property is located in Edgware, Barnet, a suburb of London. The area benefits from good transport links with several train stations within a reasonable distance, including Mill Hill Broadway, Elstree & Borehamwood, and Hendon. There are also several highly-rated schools nearby, such as Northway School and Courtland School, which are both rated as Outstanding by Ofsted. The property itself is a 4-bedroom house with 2 bathrooms. While the images show a garden, it appears to be in need of some attention. The interior of the house shows signs of needing some modernisation and updating. The kitchen and bathrooms appear dated. The overall condition of the property is fair but could benefit from renovations to improve its overall appeal and value. The list price of £625,000 is slightly below the average price for the area (£666,863), but given the condition and the need for potential renovations, the price seems reasonable. However, further investigation into the specific square footage of the property and comparison to similar properties in the area would be beneficial to confirm this assessment.
Therefore, we give this property 6 / 10. *Disclaimer: This is our option and does constitute a recommendation or financial advice. Do your own research. *
- Price
- 7
- Condition
- 6
- Location
- 8
- Land
- 5
- Bedrooms
- 4
- Bathrooms
- 2
- Sqft (est)
- 1,118.00
The heatmap indicates the level of crime in the area. The color of the heatmap indicates the crime severity and recency.
Metrics Year-on-Year
- Average area value
- 758,663.00 £Increased by 3.95 %
- Est sale value
- 532,168.00 £Decreased by 26.99 %
- Average area rental value
- 2,364.00 £/moDecreased by 11.43 %
- Est letting value
- 1,118.00 £/moDecreased by 50.00 %
- Est rental Yield
- 3.74 %Decreased by 14.81 %
- Crime Rate
- 2.00 %Unchanged by 0.00 %
Agent Activity
Joseph Scott created the listing.
Nearby Schools
| Name | Type | Ofsted | Distance |
|---|---|---|---|
| Northway School | Community Special School | Outstanding | 0.53 KM |
| Fairway Primary School And Children'S Centre | Community School | Good | 0.62 KM |
| Fairway Primary School And Children'S Centre | Children's Centre | 0.65 KM | |
| Courtland School | Community School | Outstanding | 0.99 KM |
| Mathilda Marks-Kennedy Jewish Primary School | Voluntary Aided School | Outstanding | 1.01 KM |
Images
Nearby Streets
| Name | Average Price | Average Sqft | Distance |
|---|---|---|---|
| Manor Drive | £ 925,000 | 0 | 0.00 KM |
| Kenilworth Road | £ 595,000 | 0 | 0.00 KM |
| Hurstmere Court | £ 900,000 | 0 | 0.00 KM |
| Limes Avenue | £ 999,000 | 0 | 0.00 KM |
| Langham Road | £ 350,000 | 0 | 0.00 KM |
Nearby Transport
| Name | NLC | TLC | Distance |
|---|---|---|---|
| Mill Hill Broadway | 1527 | MIL | 1.64 KM |
| Elstree And Borehamwood | 1542 | ELS | 4.00 KM |
| Hendon | 1522 | HEN | 5.34 KM |
| Kenton | 1399 | KNT | 7.75 KM |
| South Kenton | 1453 | SOK | 7.92 KM |
Nearby Listings
| Address | Price | Type | Score | Distance |
|---|---|---|---|---|
| Mount Grove, Edgware, Middlesex, HA8 | £ 600,000 | BUY | 6 / 10 | 0.01 KM |
| Mount Grove, Edgware, Middlesex, HA8 | £ 575,000 | BUY | 6 / 10 | 0.01 KM |
| Mount Grove, Edgware, HA8 | £ 695,000 | BUY | 6 / 10 | 0.04 KM |
| Mount Grove, Edgware, HA8 | £ 675,000 | BUY | 6 / 10 | 0.05 KM |
| Edgware, London, HA8 | £ 650,000 | BUY | 6 / 10 | 0.05 KM |
Nearby Properties
| Address | Price | Distance |
|---|---|---|
| 44 Mount Grove | £ 290,000 | 0.04 KM |
| 40 Mount Grove | £ 250,000 | 0.04 KM |
| 74 Mount Grove | £ 575,000 | 0.04 KM |
| 28 Mount Grove | £ 250,000 | 0.04 KM |
| 78 Mount Grove | £ 248,000 | 0.04 KM |