DA
Regent Street, Teignmouth, TQ14
By Dart & Partners
£ 275,000
Reviews
2 out of 5 stars
Dart & Partners says ..
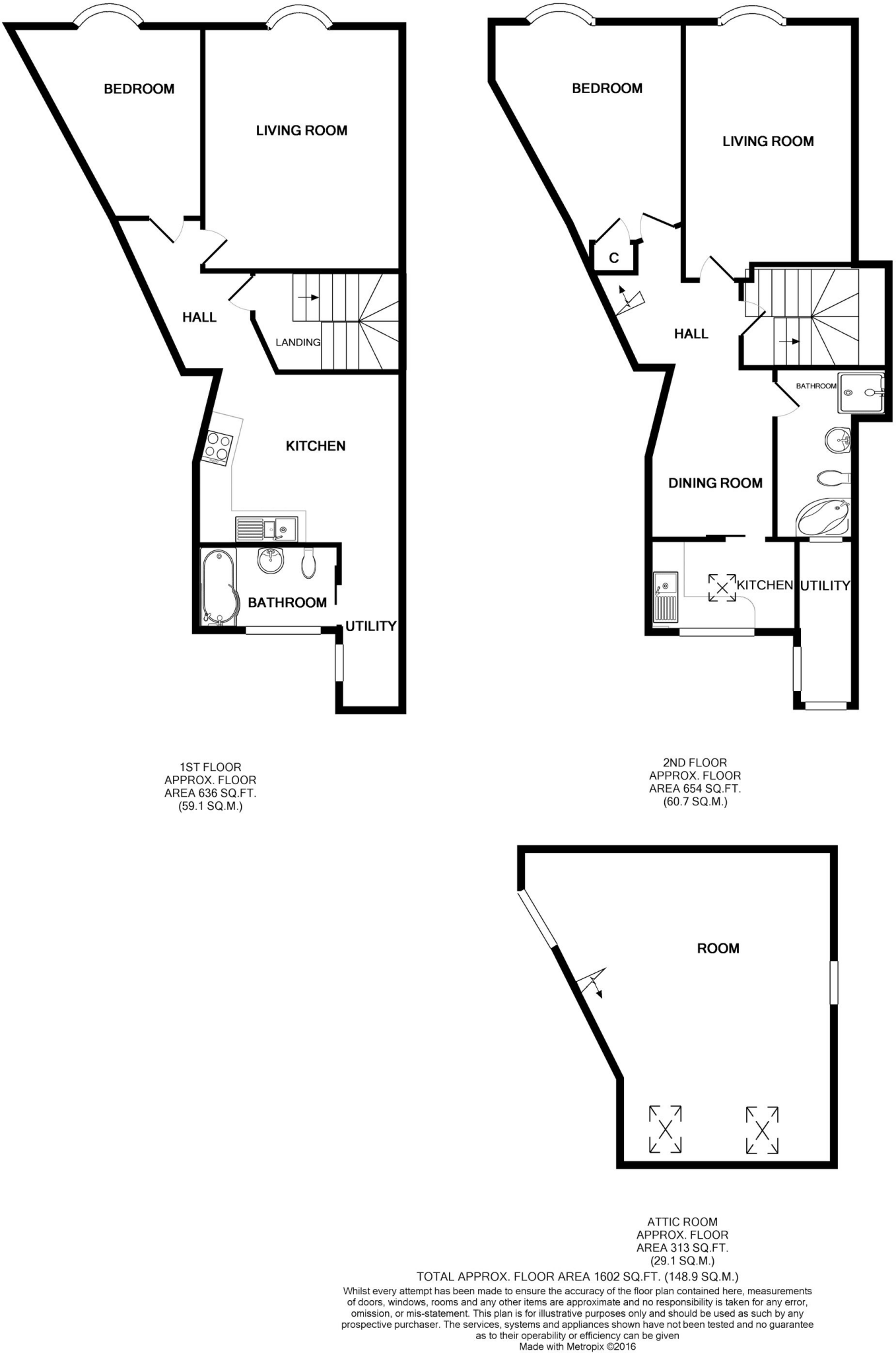
For sale is the entire freehold of this prominent town centre, Grade II listed 3-storey house enjoying an income from the ground floor shop and two flats.
Property Oracle says ..
Therefore, we give this property 5 / 10. *Disclaimer: This is our option and does constitute a recommendation or financial advice. Do your own research. *
- Price
- 7
- Condition
- 4
- Location
- 8
- Land
- 1
- Bedrooms
- 2
- Bathrooms
- 2
- Sqft (est)
- 1,602.00
The heatmap indicates the level of crime in the area. The color of the heatmap indicates the crime severity and recency.
Metrics Year-on-Year
- Average area value
- 288,750.00 £Decreased by 25.15 %
- Est sale value
- 366,858.00 £Decreased by 22.90 %
- Average area rental value
- 821.00 £/moDecreased by 25.30 %
- Est letting value
- 0.00 £/mo
- Est rental Yield
- 3.41 %Decreased by 0.29 %
- Crime Rate
- 118.00 %Unchanged by 0.00 %
from 385,756.00 £
from 475,794.00 £
from 1,099.00 £/mo
from 0.00 £/mo
from 3.42 %
from 118.00 %
Agent Activity
Dart & Partners created the listing.
Nearby Schools
| Name | Type | Ofsted | Distance |
|---|---|---|---|
| Teignmouth Community School, Exeter Road | Academy Converter | Requires improvement | 0.98 KM |
| Trinity School | Other Independent School | 1.27 KM | |
| Shaldon Primary School | Academy Converter | 1.72 KM | |
| Our Lady And St Patrick'S Roman Catholic Primary School | Academy Sponsor Led | Good | 1.80 KM |
| Dawlish Children'S Centre | Children's Centre | 1.81 KM |
Images
Nearby Streets
| Name | Average Price | Average Sqft | Distance |
|---|---|---|---|
| Hollands Road | £ 0 | 0 | 0.00 KM |
| Den Road | £ 0 | 0 | 0.00 KM |
| Wellington Street | £ 0 | 0 | 0.00 KM |
| Regent Street | £ 0 | 0 | 0.00 KM |
| Bank Street | £ 0 | 0 | 0.00 KM |
Nearby Transport
| Name | NLC | TLC | Distance |
|---|---|---|---|
| Teignmouth | 3430 | TGM | 0.14 KM |
| Dawlish | 3408 | DWL | 5.04 KM |
| Dawlish Warren | 3409 | DWW | 8.09 KM |
| Torre | 3432 | TRR | 9.97 KM |
Nearby Listings
| Address | Price | Type | Score | Distance |
|---|---|---|---|---|
| Regent Street, Teignmouth, TQ14 | £ 275,000 | BUY | 5 / 10 | 0.00 KM |
| Little Triangle, Fountain Court, TQ14 | £ 160,000 | BUY | 6 / 10 | 0.06 KM |
| Waterloo Street, Teignmouth, TQ14 | £ 120,000 | BUY | 5 / 10 | 0.08 KM |
| Wellington Street, Teignmouth, TQ14 8HW | £ 155,500 | BUY | 5 / 10 | 0.08 KM |
| Bickford Lane, Teignmouth, TQ14 | £ 250,000 | BUY | 6 / 10 | 0.09 KM |
Nearby Properties
| Address | Price | Distance |
|---|---|---|
| 6a Waterloo Street | £ 72,000 | 0.09 KM |
| 4 Bickford Lane | £ 150,000 | 0.09 KM |
| 6 Bickford Lane | £ 185,000 | 0.09 KM |
| 15 Bickford Lane | £ 150,000 | 0.09 KM |
| 11 Bickford Lane | £ 163,000 | 0.09 KM |