Lewis King says ..
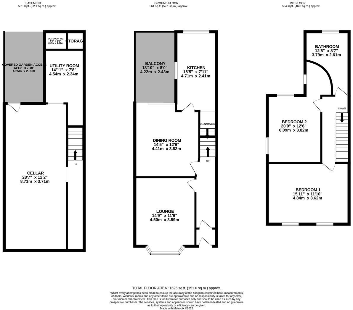
Welcome to this substantial period home, perfectly poised for those looking to create their ideal family residence. Set over three generous floors, this house presents an exciting opportunity for modernising, allowing you to stamp your own style on every space. The ground floor boasts an...
Property Oracle says ..
This end-of-terrace property on Alton Street, Crewe, presents a significant opportunity for renovation. While the property boasts a generous square footage of 1,625 and a good-sized garden, it requires considerable modernisation throughout. The location offers reasonable access to local amenities, schools, and transport links. The asking price of £110,000 reflects the property’s condition, making it an attractive prospect for investors or those willing to undertake a comprehensive refurbishment project.
Therefore, we give this property 6 / 10. *Disclaimer: This is our option and does constitute a recommendation or financial advice. Do your own research. *
- Price
- 8
- Condition
- 4
- Location
- 6
- Land
- 7
- Bedrooms
- 2
- Bathrooms
- 1
- Sqft (est)
- 1,625.00
The heatmap indicates the level of crime in the area. The color of the heatmap indicates the crime severity and recency.
Metrics Year-on-Year
- Average area value
- 212,500.00 £Increased by 23.18 %
- Est sale value
- 315,250.00 £Increased by 14.79 %
- Average area rental value
- 1,033.00 £/moIncreased by 37.73 %
- Est letting value
- 0.00 £/mo
- Est rental Yield
- 5.83 %Increased by 11.69 %
- Crime Rate
- 0.00 %
Agent Activity
Lewis King created the listing.
Nearby Schools
| Name | Type | Ofsted | Distance |
|---|---|---|---|
| Edleston Primary School | Community School | Good | 0.37 KM |
| The Oaks Academy | Academy Sponsor Led | 0.54 KM | |
| Gainsborough Primary And Nursery School | Community School | Requires improvement | 0.59 KM |
| Lavender Field School | Other Independent Special School | 0.68 KM | |
| Cheshire College - South & West | Further Education | Good | 0.78 KM |
Images
Nearby Streets
| Name | Average Price | Average Sqft | Distance |
|---|---|---|---|
| Belgrave Road | £ 175,375 | 0 | 0.00 KM |
| Dunwoody Way | £ 0 | 0 | 0.00 KM |
| Gainsborough Road | £ 0 | 0 | 0.00 KM |
| Doddington Road | £ 0 | 0 | 0.00 KM |
| Stafford Street | £ 0 | 0 | 0.00 KM |
Nearby Transport
| Name | NLC | TLC | Distance |
|---|---|---|---|
| Crewe | 1243 | CRE | 2.34 KM |
| Nantwich | 1247 | NAN | 8.03 KM |
| Sandbach | 1261 | SDB | 9.04 KM |
Nearby Listings
| Address | Price | Type | Score | Distance |
|---|---|---|---|---|
| Alton Street, Crewe | £ 110,000 | BUY | 6 / 10 | 0.00 KM |
| Alton Street, Crewe | £ 125,000 | BUY | 6 / 10 | 0.07 KM |
| Alton Street, Crewe | £ 100,000 | BUY | 6 / 10 | 0.10 KM |
| Wistaston Road, Crewe | £ 350,000 | BUY | 7 / 10 | 0.10 KM |
| Jubilee Avenue, Crewe, Cheshire, CW2 | £ 190,000 | BUY | 7 / 10 | 0.14 KM |
Nearby Properties
| Address | Price | Distance |
|---|---|---|
| 180 Alton Street | £ 121,000 | 0.06 KM |
| 168 Alton Street | £ 148,000 | 0.06 KM |
| 182 Alton Street | £ 168,000 | 0.06 KM |
| 148 Alton Street | £ 80,000 | 0.06 KM |
| 196 Alton Street | £ 177,000 | 0.06 KM |