St Georges Mansions, St Georges Parkway, Stafford, ST16
By Boot & Son Chartered Surveyors
£ 230,000
Reviews
3 out of 5 stars
Boot & Son Chartered Surveyors says ..
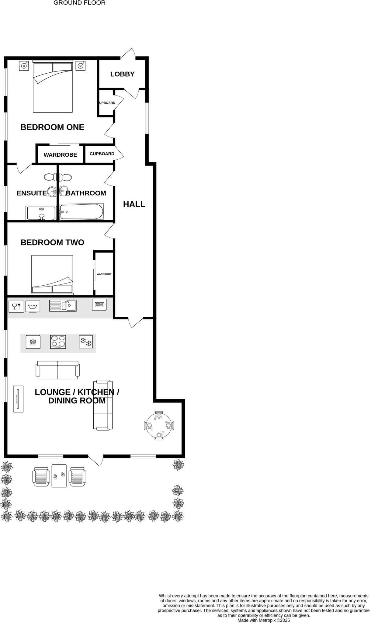
Discover the charm of this TWO BEDROOM GROUND FLOOR APARTMENT, set within a distinctive character building. With its own private entrance, this home offers a sense of independence rarely found in apartments, while the SECLUDED PATIO area provides the perfect spot for a morning coffee or summer ev...
Property Oracle says ..
A well-maintained, modern apartment located in Stafford. The property is located close to local schools and transportation links. The property benefits from communal gardens.
Therefore, we give this property 6 / 10. *Disclaimer: This is our option and does constitute a recommendation or financial advice. Do your own research. *
- Price
- 7
- Condition
- 8
- Location
- 7
- Land
- 5
- Bedrooms
- 2
- Bathrooms
- 2
- Sqft (est)
- 647.00
The heatmap indicates the level of crime in the area. The color of the heatmap indicates the crime severity and recency.
Metrics Year-on-Year
- Average area value
- 229,000.00 £Increased by 23.18 %
- Est sale value
- 150,751.00 £Increased by 9.39 %
- Average area rental value
- 866.00 £/moIncreased by 24.25 %
- Est letting value
- 0.00 £/mo
- Est rental Yield
- 4.54 %Increased by 0.89 %
- Crime Rate
- 3.00 %Unchanged by 0.00 %
Agent Activity
Boot & Son Chartered Surveyors created the listing.
Nearby Schools
| Name | Type | Ofsted | Distance |
|---|---|---|---|
| John Wheeldon Primary Academy | Academy Sponsor Led | Good | 0.37 KM |
| St Patrick'S Catholic Primary School | Academy Converter | Requires improvement | 0.63 KM |
| Bailey Street Alternative Provision Academy | Academy Alternative Provision Sponsor Led | 0.96 KM | |
| St Austin'S Catholic Primary School | Academy Converter | Good | 1.16 KM |
| St Paul'S Cofe (C) Primary School | Voluntary Controlled School | Outstanding | 1.30 KM |
Images
Nearby Streets
| Name | Average Price | Average Sqft | Distance |
|---|---|---|---|
| Victoria Street | £ 0 | 0 | 0.00 KM |
| Market Square | £ 0 | 0 | 0.00 KM |
| St Marys Passage | £ 0 | 0 | 0.00 KM |
| Chell Road | £ 0 | 0 | 0.00 KM |
| George Street | £ 0 | 0 | 0.00 KM |
Nearby Transport
| Name | NLC | TLC | Distance |
|---|---|---|---|
| Stafford | 1268 | STA | 1.18 KM |
| Penkridge | 1195 | PKG | 9.78 KM |
Nearby Listings
| Address | Price | Type | Score | Distance |
|---|---|---|---|---|
| St Georges Mansions, St Georges Parkway, Stafford, ST16 | £ 230,000 | BUY | 6 / 10 | 0.00 KM |
| St Georges Mansions, St Georges Parkway, Stafford, ST16 | £ 125,000 | BUY | 7 / 10 | 0.00 KM |
| St. Georges Mansions, Stafford | £ 110,000 | BUY | 6 / 10 | 0.02 KM |
| St. Georges Parkway, Stafford, ST16 | £ 110,000 | BUY | 5 / 10 | 0.02 KM |
| St Georges Mansions, St Georges Parkway, Stafford, ST16 3XU | £ 135,000 | BUY | Unknown | 0.03 KM |
Nearby Properties
| Address | Price | Distance |
|---|---|---|
| 11 St Georges Parkway | £ 243,995 | 0.11 KM |
| 5 St Georges Parkway | £ 200,000 | 0.11 KM |
| 15 St Georges Parkway | £ 252,500 | 0.11 KM |
| 105 Crooked Bridge Court | £ 127,995 | 0.13 KM |
| 7 Crooked Bridge Road | £ 95,000 | 0.22 KM |