Earnshaw Kay Estates says ..
A charming end town house which boasts a great amount of character and spacious accommodation spread over three floors. Situated conveniently close to schools, this home offers a perfect setting for families with children. Additionally, its proximity to the town centre ensures easy access to a va...
Property Oracle says ..
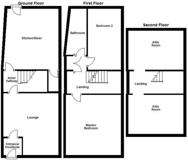
The property is a 4-bedroom, 1-bathroom terraced house located in Mirfield, West Yorkshire. The property benefits from a small garden and is situated within a reasonable distance of local schools and transport links. The property appears to be in generally good condition, although some minor cosmetic updates may enhance its appeal. The kitchen and bathroom appear functional, but might benefit from some modernisation. The property has a traditional feel and character. The list price of £215,000 is notably lower than the average price of £260,784 for properties in the area. However, the property’s smaller size (420 sqft compared to the average of 1156 sqft) and the lack of information on the plot size needs to be considered. Considering the average price per square foot in the area is £225, and this property is priced significantly lower, it could represent good value. However, further investigation into comparable properties of similar size and condition in the immediate vicinity would be beneficial to fully assess the price’s reasonableness. The surrounding properties vary significantly in price, suggesting a range of property values in the area. Based on the images, the property includes a fireplace and a shed.
Therefore, we give this property 6 / 10. *Disclaimer: This is our option and does constitute a recommendation or financial advice. Do your own research. *
- Price
- 8
- Condition
- 7
- Location
- 7
- Land
- 4
- Bedrooms
- 4
- Bathrooms
- 1
- Sqft (est)
- 420.00
The heatmap indicates the level of crime in the area. The color of the heatmap indicates the crime severity and recency.
Metrics Year-on-Year
- Average area value
- 344,993.00 £Increased by 17.80 %
- Est sale value
- 112,560.00 £Increased by 1.13 %
- Average area rental value
- 1,042.00 £/moIncreased by 19.91 %
- Est letting value
- 0.00 £/mo
- Est rental Yield
- 3.62 %Increased by 1.69 %
- Crime Rate
- 7.00 %Unchanged by 0.00 %
Agent Activity
Earnshaw Kay Estates created the listing.
Nearby Schools
| Name | Type | Ofsted | Distance |
|---|---|---|---|
| Battyeford Cofe (Vc) Primary School | Voluntary Controlled School | Good | 1.09 KM |
| Hollybank School | Non-maintained Special School | Outstanding | 1.12 KM |
| The Mirfield Free Grammar | Academy Converter | Good | 1.58 KM |
| Hartshead Junior And Infant School | Community School | Good | 1.69 KM |
| Roberttown Church Of England Voluntary Controlled Junior And Infant School | Voluntary Controlled School | Outstanding | 1.70 KM |
Images
Nearby Streets
| Name | Average Price | Average Sqft | Distance |
|---|---|---|---|
| Bishops Way | £ 0 | 0 | 0.00 KM |
| Quarry Place | £ 425,000 | 0 | 0.00 KM |
| Priory Walk | £ 0 | 0 | 0.00 KM |
| Abbey Close | £ 487,475 | 0 | 0.00 KM |
| Back Lane | £ 0 | 0 | 0.00 KM |
Nearby Transport
| Name | NLC | TLC | Distance |
|---|---|---|---|
| Mirfield | 8518 | MIR | 3.12 KM |
| Deighton | 8441 | DHN | 4.33 KM |
| Ravensthorpe | 8519 | RVN | 6.87 KM |
| Brighouse | 8514 | BGH | 7.06 KM |
| Low Moor | 8416 | LMR | 8.21 KM |
Nearby Listings
| Address | Price | Type | Score | Distance |
|---|---|---|---|---|
| Bracken Hill, Mirfield | £ 215,000 | BUY | 6 / 10 | 0.00 KM |
| Stocks Bank Drive, Mirfield | £ 390,000 | BUY | 6 / 10 | 0.08 KM |
| Bracken Hill, Mirfield | £ 275,000 | BUY | 7 / 10 | 0.09 KM |
| 11 Bracken Grove, Mirfield, WF14 | £ 310,000 | BUY | 8 / 10 | 0.11 KM |
| Stocks Bank Road, Mirfield | £ 425,000 | BUY | 7 / 10 | 0.11 KM |
Nearby Properties
| Address | Price | Distance |
|---|---|---|
| 136 Stocks Bank Road | £ 647,500 | 0.03 KM |
| 140c Stocks Bank Road | £ 208,000 | 0.03 KM |
| 148 Stocks Bank Road | £ 235,000 | 0.03 KM |
| 140b Stocks Bank Road | £ 112,000 | 0.03 KM |
| 140 Stocks Bank Road | £ 180,000 | 0.03 KM |