Dourish & Day says ..
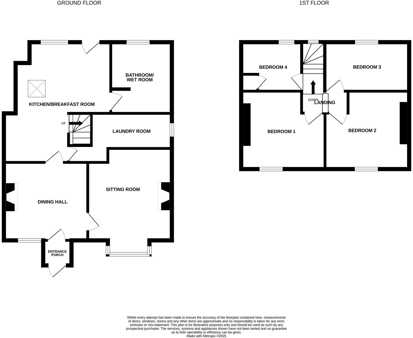
Call us 9AM - 9PM -7 days a week, 365 days a year! If your idea of bliss is living down a country lane in a cottage with beamed ceilings and a large rear garden, then this may be the property for you! Not only that, but this property has also been extended, to provide unexpectedly spacious accomm...
Property Oracle says ..
Therefore, we give this property 6 / 10. *Disclaimer: This is our option and does constitute a recommendation or financial advice. Do your own research. *
- Price
- 6
- Condition
- 6
- Location
- 7
- Land
- 8
- Bedrooms
- 4
- Bathrooms
- 1
- Sqft (est)
- 1,076.00
The heatmap indicates the level of crime in the area. The color of the heatmap indicates the crime severity and recency.
Metrics Year-on-Year
- Average area value
- 416,111.00 £Increased by 26.38 %
- Est sale value
- 327,104.00 £Increased by 18.29 %
- Average area rental value
- 1,458.00 £/moIncreased by 51.72 %
- Est letting value
- 1,076.00 £/mo
- Est rental Yield
- 4.20 %Increased by 20.00 %
- Crime Rate
- 5.00 %Unchanged by 0.00 %
from 329,252.00 £
from 276,532.00 £
from 961.00 £/mo
from 0.00 £/mo
from 3.50 %
from 5.00 %
Agent Activity
Dourish & Day created the listing.
Nearby Schools
| Name | Type | Ofsted | Distance |
|---|---|---|---|
| Prees Cofe Primary School | Academy Converter | Good | 0.57 KM |
| Lower Heath Cofe Primary School | Academy Converter | 2.98 KM | |
| Tilstock Cofe Primary And Nursery | Academy Sponsor Led | 4.60 KM | |
| Acorn Wood | Other Independent Special School | 4.89 KM | |
| The White House School | Other Independent School | Good | 6.37 KM |
Images
Nearby Streets
| Name | Average Price | Average Sqft | Distance |
|---|---|---|---|
| Meadow View | £ 465,000 | 0 | 0.00 KM |
| Park Terrace | £ 245,000 | 0 | 0.00 KM |
| The Pines | £ 242,500 | 0 | 0.00 KM |
Nearby Transport
| Name | NLC | TLC | Distance |
|---|---|---|---|
| Prees | 1346 | PRS | 3.50 KM |
| Whitchurch (Shropshire) | 1348 | WTC | 7.61 KM |
| Wem | 1347 | WEM | 8.28 KM |
Nearby Listings
| Address | Price | Type | Score | Distance |
|---|---|---|---|---|
| Moreton Street, Prees, SY13 | £ 285,000 | BUY | 6 / 10 | 0.00 KM |
| Moreton Street, Prees, SY13 | £ 235,000 | BUY | 6 / 10 | 0.01 KM |
| Moreton Street, Prees, Whitchurch | £ 235,000 | BUY | 7 / 10 | 0.02 KM |
| Moreton Street, Prees, SY13 | £ 525,000 | BUY | 7 / 10 | 0.04 KM |
| Moreton Street, Prees, SY13 | £ 450,000 | BUY | 7 / 10 | 0.04 KM |
Nearby Properties
| Address | Price | Distance |
|---|---|---|
| The Orchard | £ 340,000 | 0.04 KM |
| 15 Moreton Street | £ 275,000 | 0.04 KM |
| 17 Moreton Street | £ 285,000 | 0.04 KM |
| Chantal | £ 185,000 | 0.04 KM |
| Halewood | £ 365,000 | 0.04 KM |