Station Road, Stanley
PH Estate Agents logo

Station Road, Stanley

By PH Estate Agents

£ 100,000

Reviews

3 out of 5 stars

PH Estate Agents says ..

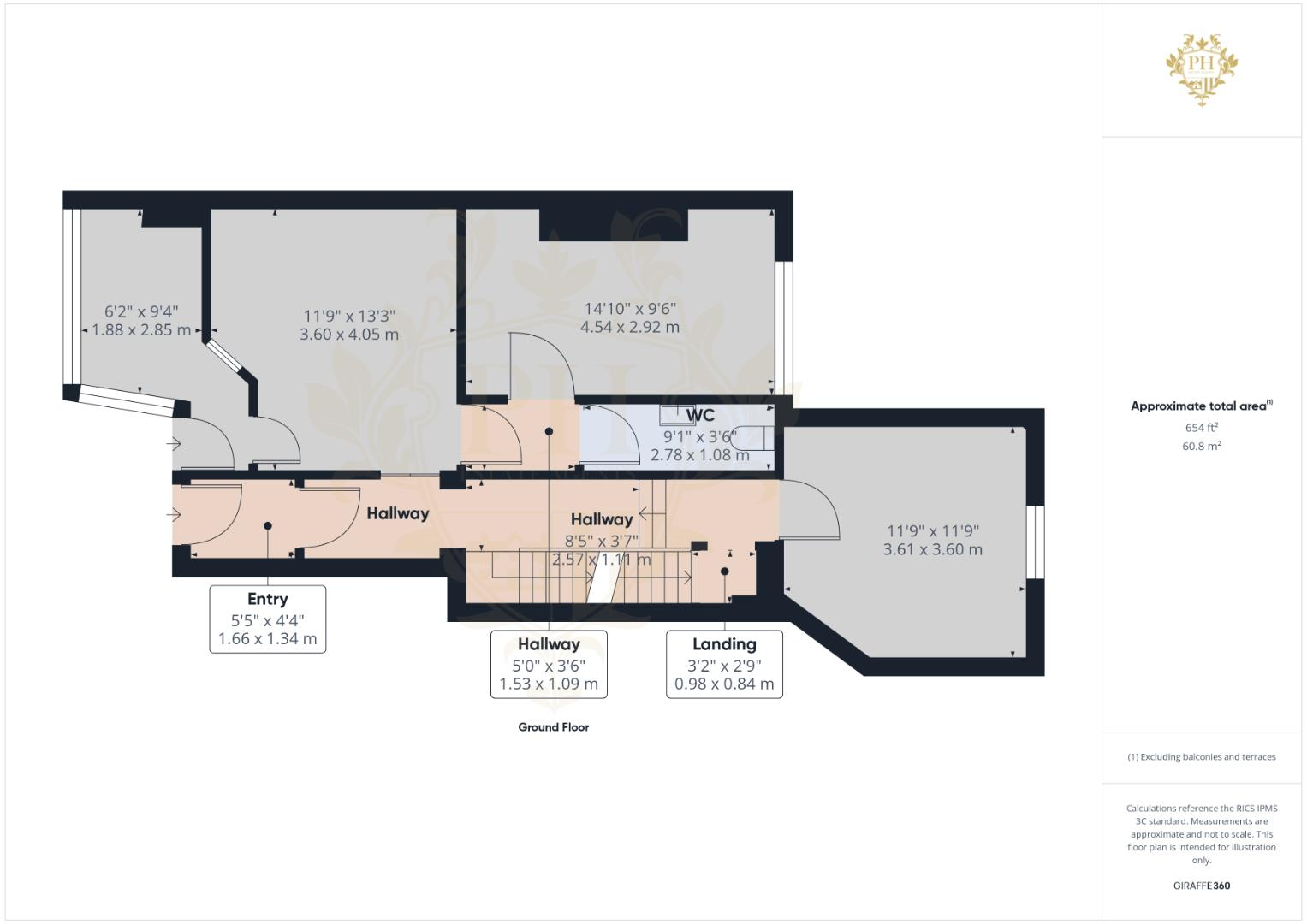
PH Estate Agents are pleased to present this spacious property located on Station Road in Stanley, County Durham (DH9 0JP). Set just a short stroll from a range of local amenities and reputable schools, this inviting home offers generous living space and a convenient location ideal for families a...

Property Oracle says ..

Therefore, we give this property 6 / 10. *Disclaimer: This is our option and does constitute a recommendation or financial advice. Do your own research. *

Price
8
Condition
6
Location
7
Land
3
Bedrooms
3
Bathrooms
2
Sqft (est)
629.73

The heatmap indicates the level of crime in the area. The color of the heatmap indicates the crime severity and recency.

Metrics Year-on-Year

Average area value
371,874.00 £
Increased by 59.48 %
from 233,178.00 £
Est sale value
182,621.70 £
Increased by 62.01 %
from 112,721.67 £
Average area rental value
771.00 £/mo
Decreased by 5.75 %
from 818.00 £/mo
Est letting value
0.00 £/mo
from 0.00 £/mo
Est rental Yield
2.49 %
Decreased by 40.86 %
from 4.21 %
Crime Rate
4.00 %
Unchanged by 0.00 %
from 4.00 %

Agent Activity

  • PH Estate Agents created the listing.

Nearby Schools

NameTypeOfstedDistance
St Joseph'S Catholic Primary, StanleyAcademy Converter0.27 KM
Stanley Children'S CentreChildren's Centre0.48 KM
North Durham AcademyAcademy Sponsor LedRequires improvement0.73 KM
Tanfield SchoolAcademy Sponsor Led1.16 KM
South Stanley Infant And Nursery SchoolAcademy ConverterGood1.17 KM

Images

CAM02002G0-PR0155-STILL016.jpg CAM02002G0-PR0155-STILL014.jpg CAM02002G0-PR0155-STILL001.jpg CAM02002G0-PR0155-STILL013.jpg CAM02002G0-PR0155-STILL012.jpg CAM02002G0-PR0155-STILL004.jpg CAM02002G0-PR0155-STILL003.jpg CAM02002G0-PR0155-STILL005.jpg CAM02002G0-PR0155-STILL006.jpg CAM02002G0-PR0155-STILL011.jpg CAM02002G0-PR0155-STILL009.jpg CAM02002G0-PR0155-STILL010.jpg CAM02002G0-PR0155-STILL007.jpg CAM02002G0-PR0155-STILL008.jpg CAM02002G0-PR0155-STILL002.jpg

Nearby Streets

NameAverage PriceAverage SqftDistance
Church Bank £ 000.00 KM
Barn Hill £ 000.00 KM
Duncombe Court £ 220,00000.00 KM
Quarry Road £ 000.00 KM
Joicey Gardens £ 000.00 KM

Nearby Listings

AddressPriceTypeScoreDistance
Station Road, Stanley £ 100,000BUY6 / 100.00 KM
Station Road, Stanley, Co. Durham £ 95,000BUY5 / 100.01 KM
Station Road, Stanley, County Durham, DH9 £ 89,995BUY6 / 100.02 KM
Victoria Lodge, 22 Station Road, Stanley, County Durham, DH9 0JL £ 450,000BUY4 / 100.12 KM
Station Road, Stanley, DH9 £ 160,000BUY6 / 100.13 KM

Nearby Properties

AddressPriceDistance
67 Station Road £ 160,0000.01 KM
69 Station Road £ 149,9500.01 KM
73 Station Road £ 110,0000.01 KM
60 Station Road £ 86,0000.01 KM
75 Station Road £ 83,0000.01 KM