MA
Fartown, Pudsey, West Yorkshire
By Manning Stainton
£ 130,000
Reviews
2 out of 5 stars
Manning Stainton says ..
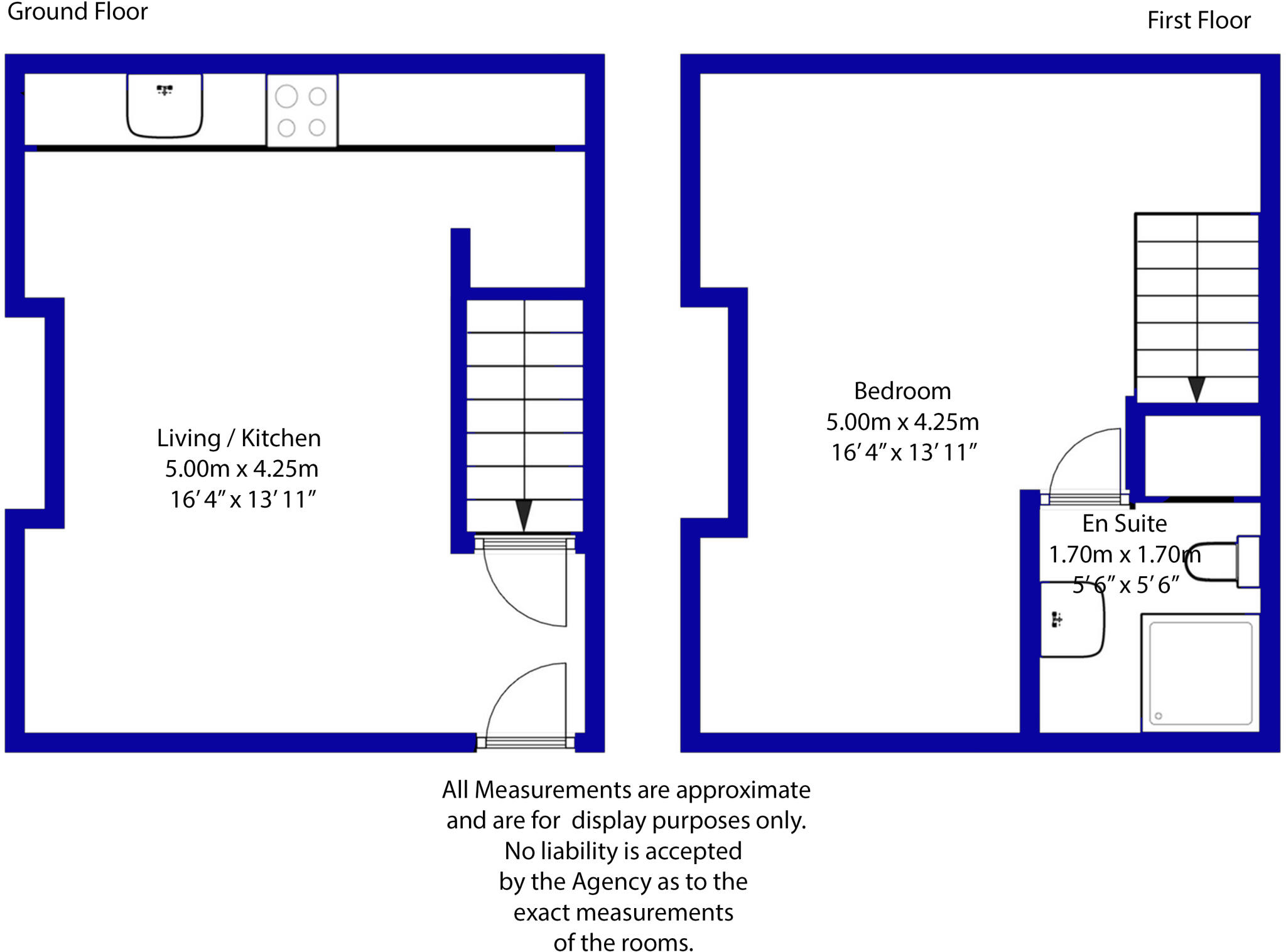
A fantastic opportunity to purchase this mid-terrace property, ideally located in the ever-popular Pudsey area. Benefiting from easy access to a wide range of local amenities and offered to the market with NO ONWARD CHAIN.
Property Oracle says ..
Therefore, we give this property 5 / 10. *Disclaimer: This is our option and does constitute a recommendation or financial advice. Do your own research. *
- Price
- 8
- Condition
- 6
- Location
- 7
- Land
- 1
- Bedrooms
- 1
- Bathrooms
- 1
- Sqft (est)
- 488.57
The heatmap indicates the level of crime in the area. The color of the heatmap indicates the crime severity and recency.
Metrics Year-on-Year
- Average area value
- 303,941.00 £Increased by 18.76 %
- Est sale value
- 187,122.31 £Increased by 82.38 %
- Average area rental value
- 896.00 £/moDecreased by 14.42 %
- Est letting value
- 488.57 £/mo
- Est rental Yield
- 3.54 %Decreased by 27.90 %
- Crime Rate
- 7.00 %Unchanged by 0.00 %
from 255,922.00 £
from 102,599.70 £
from 1,047.00 £/mo
from 0.00 £/mo
from 4.91 %
from 7.00 %
Agent Activity
Manning Stainton created the listing.
Nearby Schools
| Name | Type | Ofsted | Distance |
|---|---|---|---|
| Southroyd Primary And Nursery School | Foundation School | Good | 0.33 KM |
| Pudsey Children'S Centre | Children's Centre | 0.37 KM | |
| Greenside Primary School | Community School | Good | 0.50 KM |
| Fulneck School | Other Independent School | 0.55 KM | |
| Crawshaw Academy | Academy Sponsor Led | Good | 1.17 KM |
Images
Nearby Streets
| Name | Average Price | Average Sqft | Distance |
|---|---|---|---|
| Carlisle Drive | £ 0 | 0 | 0.00 KM |
| Ash Grove | £ 0 | 0 | 0.00 KM |
| Grove Avenue | £ 0 | 0 | 0.00 KM |
| Parkfield Mount | £ 0 | 0 | 0.00 KM |
| The Grove | £ 0 | 0 | 0.00 KM |
Nearby Transport
| Name | NLC | TLC | Distance |
|---|---|---|---|
| New Pudsey | 8506 | NPD | 2.45 KM |
| Bramley (West Yorkshire) | 8496 | BLE | 3.75 KM |
| Kirkstall Forge | 6544 | KLF | 6.27 KM |
| Apperley Bridge | 8562 | APY | 7.42 KM |
| Horsforth | 8499 | HRS | 7.76 KM |
Nearby Listings
| Address | Price | Type | Score | Distance |
|---|---|---|---|---|
| Fartown, Pudsey, West Yorkshire | £ 130,000 | BUY | 5 / 10 | 0.00 KM |
| Fartown, Pudsey, West Yorkshire, UK, LS28 | £ 145,000 | BUY | 5 / 10 | 0.03 KM |
| Flat 8, Moravia Bank, Fartown, Pudsey, West Yorkshire | £ 130,000 | BUY | 6 / 10 | 0.05 KM |
| Hillthorpe Terrace, Pudsey, West Yorkshire | £ 150,000 | BUY | 6 / 10 | 0.08 KM |
| Hillthorpe Road, Pudsey, LS28 | £ 800,000 | BUY | 7 / 10 | 0.09 KM |
Nearby Properties
| Address | Price | Distance |
|---|---|---|
| 5 Hillthorpe Street | £ 130,000 | 0.05 KM |
| 1 Hillthorpe Square | £ 140,000 | 0.05 KM |
| 3 Hillthorpe Street | £ 92,000 | 0.05 KM |
| 2 Hillthorpe Square | £ 24,000 | 0.05 KM |
| 8 Hillthorpe Street | £ 102,500 | 0.05 KM |