Imagine says ..
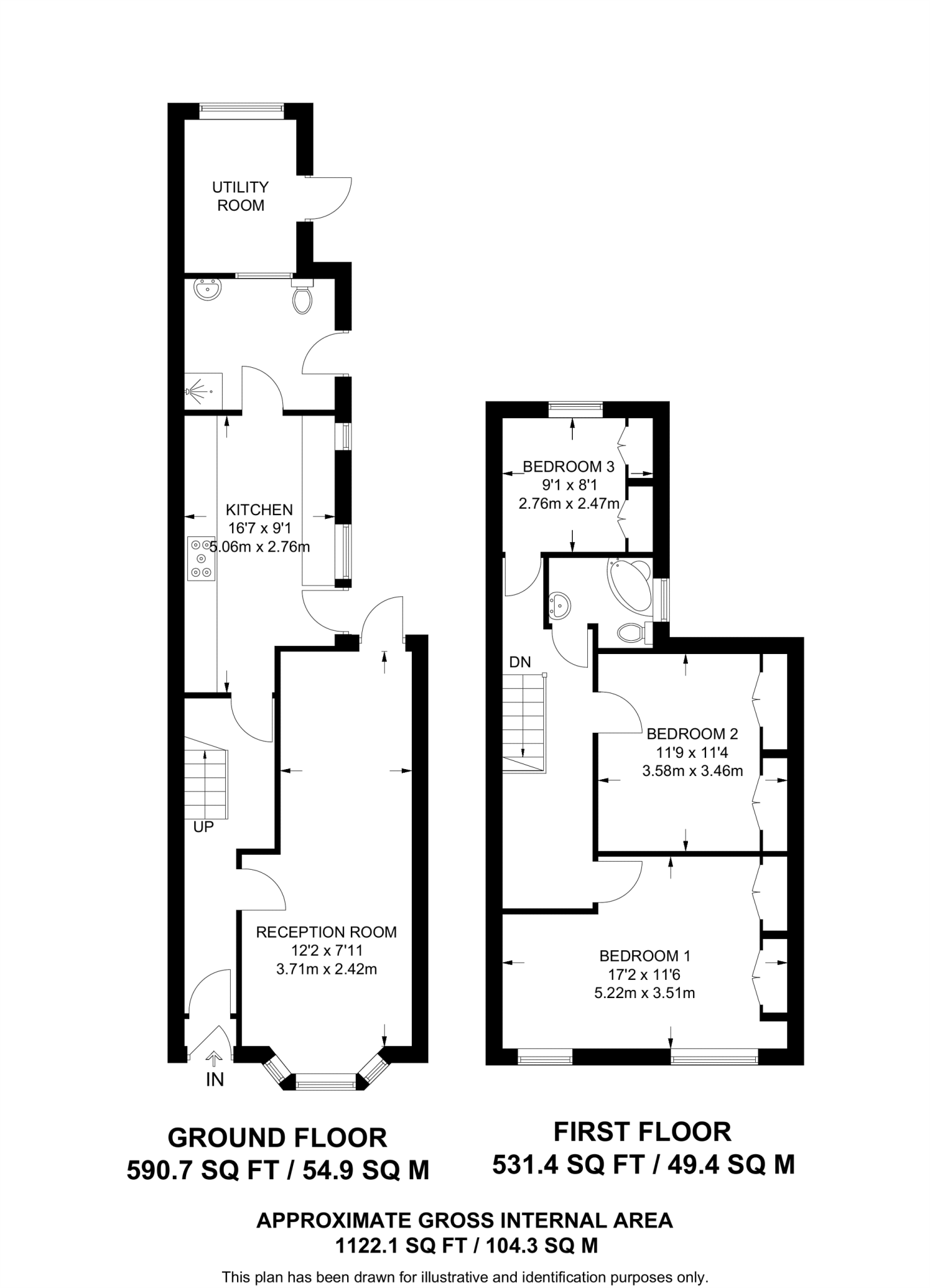
This excellent 3 bedroom house offers an open plan reception room with separate kitchen and downstairs shower room. The property also benefits from a second bathroom, loft room and private rear garden.
Property Oracle says ..
This three-bedroom terraced house in Watford is listed at £510,000. The property is located on St James Road, Vicarage, close to Watford High Street and Watford Junction train stations, offering convenient access to transportation links. Several highly-rated primary schools are within a short distance, making it an attractive option for families. However, the property shows signs of needing significant renovation, as seen in the provided images. The bathrooms and kitchen appear dated and require modernisation. The garden is small and overgrown, needing attention. While the location is desirable and nearby properties have sold for similar prices, the condition of this property significantly impacts its value. Considering the required renovations, the asking price may be slightly high compared to similar properties in better condition.
Therefore, we give this property 5 / 10. *Disclaimer: This is our option and does constitute a recommendation or financial advice. Do your own research. *
- Price
- 6
- Condition
- 4
- Location
- 8
- Land
- 3
- Bedrooms
- 3
- Bathrooms
- 1
The heatmap indicates the level of crime in the area. The color of the heatmap indicates the crime severity and recency.
Metrics Year-on-Year
- Average area value
- 390,000.00 £Decreased by 0.63 %
- Average area rental value
- 1,375.00 £/moDecreased by 20.66 %
- Est rental Yield
- 4.23 %Decreased by 20.19 %
- Crime Rate
- 8.00 %Unchanged by 0.00 %
Agent Activity
Imagine created the listing.
Nearby Schools
| Name | Type | Ofsted | Distance |
|---|---|---|---|
| Watford Grammar School For Girls | Academy Converter | 0.18 KM | |
| Chater Junior School | Community School | Outstanding | 0.52 KM |
| Watford Field School (Infant & Nursery) | Community School | Good | 0.61 KM |
| Field Junior School | Community School | Outstanding | 0.61 KM |
| Watford St John'S Church Of England Primary School | Free Schools | Good | 0.80 KM |
Images
Nearby Streets
| Name | Average Price | Average Sqft | Distance |
|---|---|---|---|
| Merton Road | £ 0 | 0 | 0.00 KM |
| Liverpool Road | £ 275,000 | 0 | 0.00 KM |
| Yellow Brick Road | £ 465,000 | 0 | 0.00 KM |
| Deckle Avenue | £ 0 | 0 | 0.00 KM |
| Inkwell Avenue | £ 0 | 0 | 0.00 KM |
Nearby Transport
| Name | NLC | TLC | Distance |
|---|---|---|---|
| Watford High Street | 1455 | WFH | 0.81 KM |
| Watford Junction | 1402 | WFJ | 1.37 KM |
| Bushey | 1395 | BSH | 1.64 KM |
| Watford North | 1403 | WFN | 2.88 KM |
| Carpenders Park | 1442 | CPK | 2.94 KM |
Nearby Listings
| Address | Price | Type | Score | Distance |
|---|---|---|---|---|
| St James Road, Watford, WD18 | £ 510,000 | BUY | 5 / 10 | 0.00 KM |
| Clifton Road, Watford | £ 545,000 | BUY | 7 / 10 | 0.14 KM |
| Vicarage Road, Watford | £ 230,000 | BUY | 6 / 10 | 0.15 KM |
| St. James Road, Watford, Hertfordshire, WD18 | £ 440,000 | BUY | Unknown | 0.17 KM |
| St. James Road, Watford, WD18 | £ 340,000 | BUY | 5 / 10 | 0.18 KM |
Nearby Properties
| Address | Price | Distance |
|---|---|---|
| 31 St James Road | £ 500,000 | 0.00 KM |
| 7 St James Road | £ 475,000 | 0.00 KM |
| 17 St James Road | £ 143,500 | 0.00 KM |
| 33 St James Road | £ 388,000 | 0.02 KM |
| 4 Farraline Road | £ 161,000 | 0.04 KM |