Laceys Lane, Exning, Newmarket
By Morris Armitage
£ 250,000
Reviews
3 out of 5 stars
Morris Armitage says ..
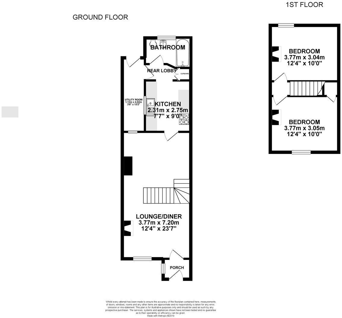
A charming Victorian cottage nestling towards the end of this residential area and located in the picturesque and highly regarded village of Exning. Enjoying some sizeable open plan living room/dining room, kitchen, bathroom, lean to/utility area and two double bedrooms.
Property Oracle says ..
The property is a 2 bedroom terraced house located in Exning, a village near Newmarket in Suffolk. Based on the provided information and images, here’s an analysis: Location: Exning benefits from being a short distance from Newmarket, offering access to its amenities. The presence of a nearby primary school (Exning Primary School) rated as “Outstanding” by Ofsted is a significant positive. The proximity to other schools and transportation links (Newmarket train station) further enhances the location’s appeal, making it suitable for families and commuters. Condition: The property appears to be in generally good condition. The images show a recently updated kitchen and bathroom, suggesting recent renovations or improvements. The living areas seem well-maintained, although the overall condition could benefit from a more detailed in-person inspection to assess any potential underlying issues not visible in the photos. Land: The property includes a relatively small, but well-maintained garden. The garden space is adequate for a terraced property of this type and offers potential for outdoor relaxation and enjoyment. Price: The list price of £250,000 appears reasonable when considering comparable properties in the area. While precise square footage is missing, the price seems competitive compared to similar 2-bedroom terraced houses in Exning and nearby locations. However, a more accurate assessment would require knowing the exact square footage to calculate the price per square foot and compare it to local averages. The lack of this key information makes a definitive judgment on price value difficult.
Therefore, we give this property 7 / 10. *Disclaimer: This is our option and does constitute a recommendation or financial advice. Do your own research. *
- Price
- 7
- Condition
- 7
- Location
- 8
- Land
- 6
- Bedrooms
- 2
- Bathrooms
- 1
The heatmap indicates the level of crime in the area. The color of the heatmap indicates the crime severity and recency.
Metrics Year-on-Year
- Average area value
- 223,188.00 £Decreased by 13.36 %
- Average area rental value
- 1,283.00 £/moIncreased by 2.15 %
- Est rental Yield
- 6.90 %Increased by 17.95 %
- Crime Rate
- 8.00 %Unchanged by 0.00 %
Agent Activity
Morris Armitage marked this listing as sold.
Morris Armitage created the listing.
Nearby Schools
| Name | Type | Ofsted | Distance |
|---|---|---|---|
| Exning Primary School | Community School | Outstanding | 0.51 KM |
| Laureate Community Academy | Academy Converter | Good | 2.28 KM |
| Paddocks Primary School | Community School | Good | 2.52 KM |
| Newmarket Academy | Academy Sponsor Led | Good | 3.34 KM |
| Houldsworth Valley Primary Academy | Academy Sponsor Led | Good | 3.59 KM |
Images
Nearby Streets
| Name | Average Price | Average Sqft | Distance |
|---|---|---|---|
| Ascot Close | £ 0 | 0 | 0.00 KM |
| Foxglove Drive | £ 0 | 0 | 0.00 KM |
| Webb Avenue | £ 0 | 0 | 0.00 KM |
Nearby Transport
| Name | NLC | TLC | Distance |
|---|---|---|---|
| Newmarket | 7038 | NMK | 4.93 KM |
| Dullingham | 7027 | DUL | 6.61 KM |
Nearby Listings
| Address | Price | Type | Score | Distance |
|---|---|---|---|---|
| Laceys Lane, Exning, Newmarket | £ 250,000 | BUY | 7 / 10 | 0.00 KM |
| Laceys Lane, Exning, Newmarket | £ 299,950 | BUY | 6 / 10 | 0.01 KM |
| Laceys Lane, Exning, Newmarket, Suffolk, CB8 | £ 250,000 | BUY | 6 / 10 | 0.03 KM |
| Laceys Lane, Exning, Newmarket | £ 250,000 | BUY | 6 / 10 | 0.14 KM |
| Laceys Lane, Exning, Suffolk | £ 459,950 | BUY | 6 / 10 | 0.17 KM |
Nearby Properties
| Address | Price | Distance |
|---|---|---|
| 77 Laceys Lane | £ 200,000 | 0.02 KM |
| 97 Laceys Lane | £ 266,500 | 0.02 KM |
| 107 Laceys Lane | £ 160,000 | 0.02 KM |
| 95 Laceys Lane | £ 230,000 | 0.02 KM |
| 109 Laceys Lane | £ 240,000 | 0.02 KM |