Chappells says ..
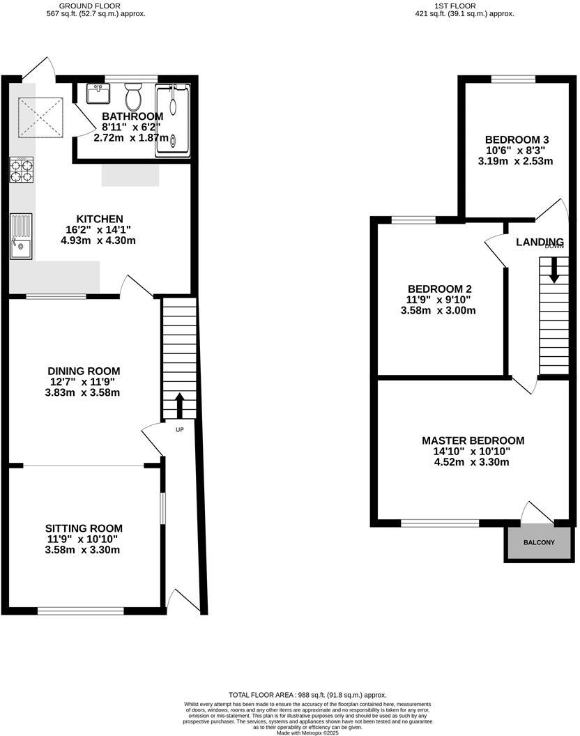
***NEW INSTRUCTION*** THREE BEDROOM END OF TERRACE HOME OFFERED TO THE MARKET WITH NO ONWARD CHAIN. THIS SPACIOUS ACCOMODATION INCLUDES AN OPEN PLAN SITTING/DINING ROOM, KITCHEN, MODERNISED BATHROOM AND THREE DOUBLE BEDROOMS. EXTERNAL THE PROPERTY HAS A LOW MAINTANENCE REAR GARDEN WITH GATED PEDE...
Property Oracle says ..
This is a three-bedroom terraced house located on Maxwell Street in Central Swindon. The property offers 919.10 sqft of living space and includes a bathroom and a rear garden. The house is situated in a convenient location, with easy access to transportation, schools, and local amenities. While the property appears to be in fair condition, some areas may benefit from updating. The asking price of £250,000 seems reasonable compared to average property prices in the area. The property is listed with Chappells.
Therefore, we give this property 6 / 10. *Disclaimer: This is our option and does constitute a recommendation or financial advice. Do your own research. *
- Price
- 7
- Condition
- 5
- Location
- 6
- Land
- 6
- Bedrooms
- 3
- Bathrooms
- 1
- Sqft (est)
- 919.10
The heatmap indicates the level of crime in the area. The color of the heatmap indicates the crime severity and recency.
Metrics Year-on-Year
- Average area value
- 487,124.00 £Increased by 94.35 %
- Est sale value
- 566,165.60 £Increased by 112.41 %
- Average area rental value
- 1,220.00 £/moIncreased by 6.46 %
- Est letting value
- 919.10 £/moUnchanged by 0.00 %
- Est rental Yield
- 3.01 %Decreased by 45.17 %
- Crime Rate
- 8.00 %Unchanged by 0.00 %
Agent Activity
Chappells created the listing.
Nearby Schools
| Name | Type | Ofsted | Distance |
|---|---|---|---|
| Utc Swindon | University Technical College | Requires improvement | 0.37 KM |
| Robert Le Kyng Primary School | Community School | Good | 0.59 KM |
| The Commonweal School | Academy Converter | Good | 1.19 KM |
| Eotas Swindon | Pupil Referral Unit | Good | 1.39 KM |
| King William Street Church Of England Primary School | Academy Converter | Good | 1.43 KM |
Images
Nearby Streets
| Name | Average Price | Average Sqft | Distance |
|---|---|---|---|
| Chester Street | £ 240,000 | 0 | 0.00 KM |
| Church Place | £ 0 | 0 | 0.00 KM |
| Joseph Street | £ 0 | 0 | 0.00 KM |
| Oxford Street | £ 0 | 0 | 0.00 KM |
| London Street | £ 0 | 0 | 0.00 KM |
Nearby Transport
| Name | NLC | TLC | Distance |
|---|---|---|---|
| Swindon (Wilts) | 3333 | SWI | 0.99 KM |
Nearby Listings
| Address | Price | Type | Score | Distance |
|---|---|---|---|---|
| Maxwell Street, Swindon | £ 250,000 | BUY | 6 / 10 | 0.00 KM |
| Maxwell Street, Swindon | £ 180,000 | BUY | 5 / 10 | 0.02 KM |
| Maxwell Street, Town Centre, Swindon, SN1 | £ 240,000 | BUY | 4 / 10 | 0.04 KM |
| Maxwell Street, Swindon, SN1 | £ 230,000 | BUY | Unknown | 0.04 KM |
| Theobald Street, Swindon | £ 260,000 | BUY | 7 / 10 | 0.09 KM |
Nearby Properties
| Address | Price | Distance |
|---|---|---|
| 17 Maxwell Street | £ 215,000 | 0.02 KM |
| 9 Maxwell Street | £ 162,000 | 0.02 KM |
| 18 Maxwell Street | £ 175,000 | 0.02 KM |
| 19 Maxwell Street | £ 151,000 | 0.02 KM |
| 6 Maxwell Street | £ 91,000 | 0.02 KM |