Cooke & Co says ..
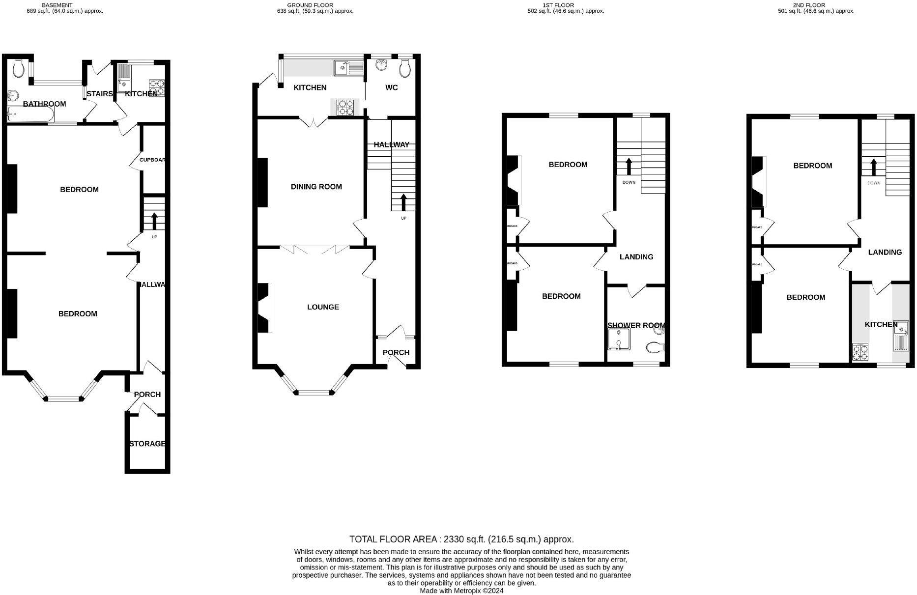
This splendid 6-bedroom period property which requires modernisation, rich in character and adorned with original features including, ceiling roses, detailed cornicing, archway features and picture rails. This welcoming home is ideally situated in a central location, perfect for families or as an...
Property Oracle says ..
This six-bedroom end of terrace house is located on St Mildreds Road in Ramsgate, Kent. The property benefits from being close to good schools and transport links, including Ramsgate train station which is approximately 1.08km away. The house itself is a period property that appears to be in need of modernisation and updating. The images show that the property retains many original features, such as high ceilings, ornate cornicing, and fireplaces, which could be attractive to buyers looking for a period property with character. However, the decor and fixtures appear dated, and some updating would likely be required. The property also benefits from a good-sized garden.
Therefore, we give this property 6 / 10. *Disclaimer: This is our option and does constitute a recommendation or financial advice. Do your own research. *
- Price
- 6
- Condition
- 4
- Location
- 8
- Land
- 7
- Bedrooms
- 6
- Bathrooms
- 2
- Sqft (est)
- 887.88
- Lot (est)
- 2,330.00
The heatmap indicates the level of crime in the area. The color of the heatmap indicates the crime severity and recency.
Metrics Year-on-Year
- Average area value
- 399,583.00 £Increased by 4.40 %
- Est sale value
- 461,697.60 £Increased by 61.49 %
- Average area rental value
- 1,350.00 £/moDecreased by 6.38 %
- Est letting value
- 887.88 £/moUnchanged by 0.00 %
- Est rental Yield
- 4.05 %Decreased by 10.40 %
- Crime Rate
- 10.00 %Unchanged by 0.00 %
Agent Activity
Cooke & Co created the listing.
Nearby Schools
| Name | Type | Ofsted | Distance |
|---|---|---|---|
| Christ Church Church Of England Junior School, Ramsgate | Academy Sponsor Led | Good | 0.04 KM |
| The Old Priory School | Other Independent Special School | Good | 0.64 KM |
| Ellington Infant School | Community School | Good | 0.76 KM |
| Priory Infant School | Community School | Good | 0.90 KM |
| Priory Children'S Centre | Children's Centre | 1.00 KM |
Images
Nearby Streets
| Name | Average Price | Average Sqft | Distance |
|---|---|---|---|
| Mays Road | £ 0 | 0 | 0.00 KM |
| West Cliff Promenade | £ 0 | 0 | 0.00 KM |
| Curzon House | £ 0 | 0 | 0.00 KM |
| Ellington Road | £ 265,000 | 0 | 0.00 KM |
| Ellington Place | £ 0 | 0 | 0.00 KM |
Nearby Transport
| Name | NLC | TLC | Distance |
|---|---|---|---|
| Ramsgate | 5023 | RAM | 1.08 KM |
| Dumpton Park | 5034 | DMP | 2.72 KM |
| Broadstairs | 5006 | BSR | 4.48 KM |
| Margate | 5018 | MAR | 7.13 KM |
| Westgate-On-Sea | 5195 | WGA | 9.36 KM |
Nearby Listings
| Address | Price | Type | Score | Distance |
|---|---|---|---|---|
| St Mildreds Road, Ramsgate | £ 535,000 | BUY | 6 / 10 | 0.00 KM |
| St. Mildreds Road, Ramsgate, Kent, CT11 | £ 140,000 | BUY | 6 / 10 | 0.06 KM |
| Laurice Court, Ramsgate, Kent, CT11 | £ 135,000 | BUY | 6 / 10 | 0.07 KM |
| St Mildreds Road, Ramsgate | £ 150,000 | BUY | 5 / 10 | 0.07 KM |
| St. Mildred's Road, Ramsgate, Kent | £ 86,250 | BUY | 5 / 10 | 0.07 KM |
Nearby Properties
| Address | Price | Distance |
|---|---|---|
| 57 Grange Road | £ 235,000 | 0.08 KM |
| 55 Grange Road | £ 325,000 | 0.08 KM |
| 18 Grange Road | £ 162,500 | 0.08 KM |
| 53 Grange Road | £ 205,000 | 0.08 KM |
| 8 Grange Road | £ 63,500 | 0.08 KM |