Empire Estates says ..
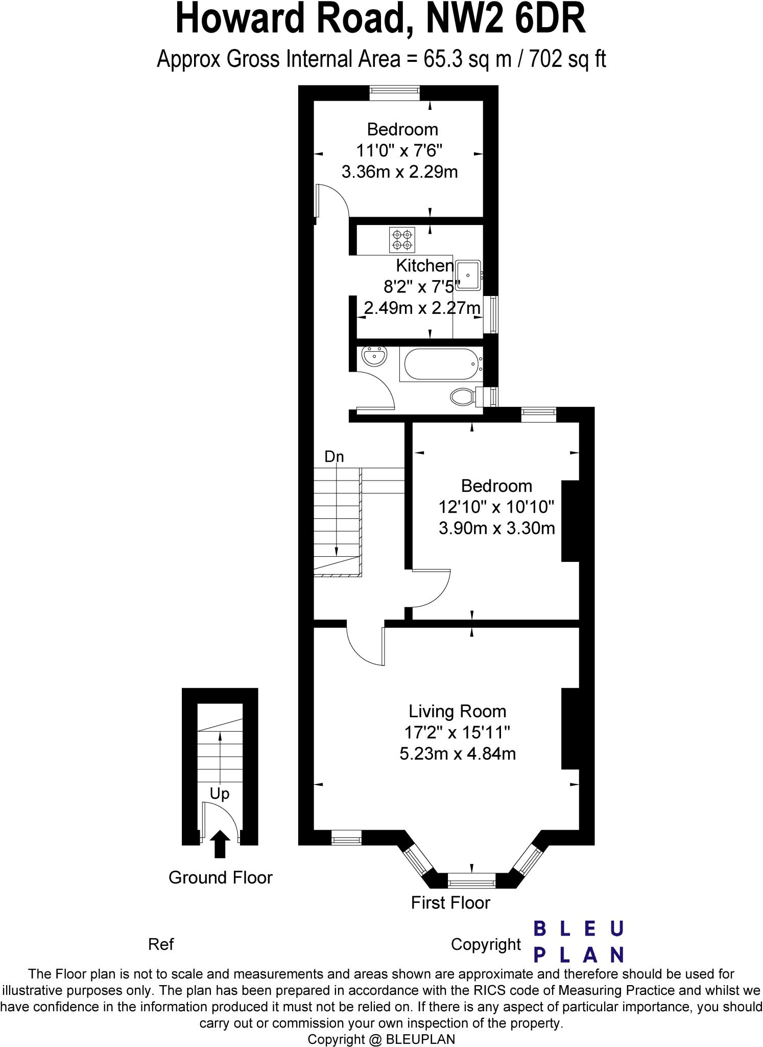
Empire Estates are pleased to bring to the market a generously sized first floor flat, benefiting from two double bedrooms, a large reception and a separate kitchen, a three-piece family bathroom and potential for conversion into the loft STPP. Perfect for a first time buy or an as investment. H...
Property Oracle says ..
This two-bedroom, one-bathroom maisonette located on Howard Road, London, NW2, is presented for sale at £439,950. The property is a first-floor flat, according to the estate agent’s description, and the imagery suggests a reasonably sized interior. The internal presentation is clean and appears well-maintained; however, the decor is somewhat dated, and a refresh would likely improve the overall appeal. The kitchen is modern and relatively small but functional. The property benefits from a convenient location, with several schools and transport links within close proximity. Cricklewood station is nearby providing convenient access to the Thameslink railway and bus networks. However, a significant drawback is the lack of outdoor space or private garden indicated by a plot size of 0.00 sqft. The property is marketed as a potential first-time buyer home or investment property. Potential buyers should carefully consider whether the current condition and lack of a garden align with their needs and expectations. The listing price appears reasonable compared to other properties in the area, but a more definitive assessment requires fuller market data including comparable square footage for the surrounding area.
Therefore, we give this property 5 / 10. *Disclaimer: This is our option and does constitute a recommendation or financial advice. Do your own research. *
- Price
- 7
- Condition
- 6
- Location
- 7
- Land
- 1
- Bedrooms
- 2
- Bathrooms
- 1
- Sqft (est)
- 702.00
The heatmap indicates the level of crime in the area. The color of the heatmap indicates the crime severity and recency.
Metrics Year-on-Year
- Average area value
- 1,318,000.00 £Increased by 70.66 %
- Est sale value
- 1,035,450.00 £Increased by 119.49 %
- Average area rental value
- 1,474.00 £/moDecreased by 27.60 %
- Est letting value
- 702.00 £/moUnchanged by 0.00 %
- Est rental Yield
- 1.34 %Decreased by 57.59 %
- Crime Rate
- 17.00 %Unchanged by 0.00 %
Agent Activity
Empire Estates created the listing.
Nearby Schools
| Name | Type | Ofsted | Distance |
|---|---|---|---|
| Anson Primary School | Community School | Good | 0.35 KM |
| St Agnes' Catholic Primary School | Voluntary Aided School | Outstanding | 0.86 KM |
| Mora Primary School | Community School | Good | 0.94 KM |
| Claremont Primary School | Academy Converter | Good | 1.10 KM |
| Hampstead School | Community School | Good | 1.12 KM |
Images
Nearby Streets
| Name | Average Price | Average Sqft | Distance |
|---|---|---|---|
| Sylvan Grove | £ 0 | 0 | 0.00 KM |
| Hudson Way | £ 625,000 | 0 | 0.00 KM |
| Clovelly Court | £ 0 | 0 | 0.00 KM |
| Stoll Close | £ 0 | 0 | 0.00 KM |
| Gardiner Avenue | £ 0 | 0 | 0.00 KM |
Nearby Transport
| Name | NLC | TLC | Distance |
|---|---|---|---|
| Cricklewood | 1519 | CRI | 0.57 KM |
| Brondesbury Park | 1438 | BSP | 1.85 KM |
| Brondesbury | 1437 | BSY | 2.02 KM |
| Kensal Rise | 1448 | KNR | 2.39 KM |
| Queens Park (London) | 1419 | QPW | 2.78 KM |
Nearby Listings
| Address | Price | Type | Score | Distance |
|---|---|---|---|---|
| Howard Road, London, NW2 | £ 439,950 | BUY | 5 / 10 | 0.00 KM |
| Howard Road, London, NW2 | £ 400,000 | BUY | 7 / 10 | 0.05 KM |
| Oaklands Road, London, NW2 | £ 849,950 | BUY | Unknown | 0.08 KM |
| Rockhall Road, London, NW2 | £ 995,000 | BUY | 6 / 10 | 0.09 KM |
| Howard Road, Cricklewood | £ 425,000 | BUY | 5 / 10 | 0.09 KM |
Nearby Properties
| Address | Price | Distance |
|---|---|---|
| 56 Howard Road | £ 100,000 | 0.00 KM |
| 46 Howard Road | £ 250,000 | 0.00 KM |
| 30a Howard Road | £ 293,000 | 0.00 KM |
| 4a Howard Road | £ 420,000 | 0.00 KM |
| 26a Howard Road | £ 435,000 | 0.00 KM |