WI
Glynne Street, Queensferry, Deeside, Flintshire, CH5
By William Gleave
£ 145,000
Reviews
3 out of 5 stars
William Gleave says ..
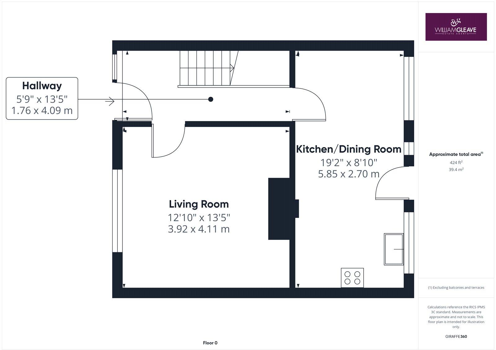
IDEAL FOR FIRST TIME BUYERS | VIEWING IS HIGHLY RECOMMENDED | THREE GOOD-SIZED BEDROOMS | CLOSE TO LOCAL AMENITIES | SPACIOUS THROUGH OUT | FRONT AND REAR GARDEN We are delighted to present this well-proportioned three-bedroom mid-terrace home, offering generous living space thro...
Property Oracle says ..
Therefore, we give this property 7 / 10. *Disclaimer: This is our option and does constitute a recommendation or financial advice. Do your own research. *
- Price
- 7
- Condition
- 7
- Location
- 7
- Land
- 7
- Bedrooms
- 3
- Bathrooms
- 1
- Sqft (est)
- 424.10
The heatmap indicates the level of crime in the area. The color of the heatmap indicates the crime severity and recency.
Metrics Year-on-Year
- Average area value
- 267,500.00 £Decreased by 0.99 %
- Est sale value
- 108,993.70 £Increased by 5.33 %
- Average area rental value
- 1,107.00 £/moDecreased by 6.11 %
- Est letting value
- 424.10 £/moUnchanged by 0.00 %
- Est rental Yield
- 4.97 %Decreased by 5.15 %
- Crime Rate
- 33.00 %Unchanged by 0.00 %
from 270,182.00 £
from 103,480.40 £
from 1,179.00 £/mo
from 424.10 £/mo
from 5.24 %
from 33.00 %
Agent Activity
William Gleave created the listing.
Nearby Schools
| Name | Type | Ofsted | Distance |
|---|---|---|---|
| Queens Ferry C.P. School | Welsh Establishment | 0.94 KM | |
| Sandycroft C.P. School | Welsh Establishment | 1.35 KM | |
| Sealand C.P. School | Welsh Establishment | 1.40 KM | |
| St Ethelwold'S Primary School | Welsh Establishment | 1.92 KM | |
| Plas Derwen | Welsh Establishment | 2.08 KM |
Images
Nearby Streets
| Name | Average Price | Average Sqft | Distance |
|---|---|---|---|
| Gladstone Street | £ 0 | 0 | 0.00 KM |
| Fford Pentre | £ 0 | 0 | 0.00 KM |
| Gladstone Way | £ 107,500 | 0 | 0.00 KM |
| Orchard Close | £ 210,000 | 0 | 0.00 KM |
| Llwyn Clwyd | £ 0 | 0 | 0.00 KM |
Nearby Transport
| Name | NLC | TLC | Distance |
|---|---|---|---|
| Hawarden Bridge | 2146 | HWB | 1.77 KM |
| Shotton | 2546 | SHT | 1.92 KM |
| Hawarden | 2428 | HWD | 2.54 KM |
| Buckley | 2422 | BCK | 6.05 KM |
| Penyffordd | 2433 | PNF | 7.86 KM |
Nearby Listings
| Address | Price | Type | Score | Distance |
|---|---|---|---|---|
| Glynne Street, Queensferry, Deeside, Flintshire, CH5 | £ 145,000 | BUY | 7 / 10 | 0.00 KM |
| Glynne Street, Queensferry, Deeside, Flintshire, CH5 1TA | £ 135,000 | BUY | 7 / 10 | 0.03 KM |
| Station Road, Queensferry, Deeside | £ 130,000 | BUY | 7 / 10 | 0.12 KM |
| Glynne Street, Queensferry, Deeside, Flintshire, CH5 | £ 80,000 | BUY | 5 / 10 | 0.13 KM |
| Dundas Street, Queensferry, Deeside | £ 155,000 | BUY | 7 / 10 | 0.18 KM |
Nearby Properties
| Address | Price | Distance |
|---|---|---|
| 9 Glynne Street | £ 99,000 | 0.03 KM |
| 27 Glynne Street | £ 85,000 | 0.03 KM |
| 56 Glynne Street | £ 80,000 | 0.03 KM |
| 11 Glynne Street | £ 55,000 | 0.03 KM |
| 54 Glynne Street | £ 137,500 | 0.03 KM |