Rothafield Road, Oxford, OX2
By Breckon & Breckon
£ 900,000
Reviews
3 out of 5 stars
Breckon & Breckon says ..
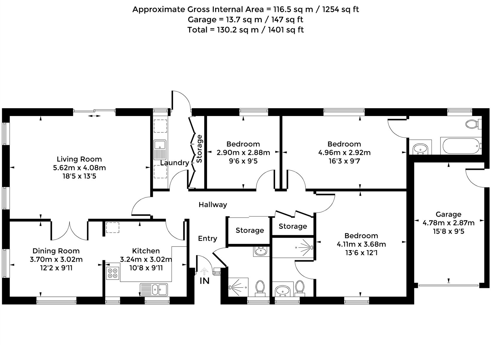
This spacious three bedroom detached bungalow has been recently refurbished to offer accessible modern living on a desirable North Oxford side road - perfect for those looking to downsize, or for a first home in this popular community.The centrepiece of the property is a series of interconnected ...
Property Oracle says ..
This three-bedroom, three-bathroom property located on Rothafield Road in Wolvercote, Oxford is presented in excellent condition. The interior photos showcase a recent renovation or modernisation, with a modern kitchen, updated bathrooms, and a stylish living area. The property benefits from a well-maintained garden, offering outdoor space. Wolvercote is a sought-after area, providing a peaceful yet convenient location close to amenities including Wolvercote Primary School (rated ‘Good’ by Ofsted) and Oxford Parkway train station. The proximity to Oxford city centre adds further appeal. While precise square footage data for comparable properties is limited, the asking price appears in line with, or slightly above, the average for similar properties in the area, considering the property’s updated condition and desirable location. Potential buyers should be aware that the availability of precise comparative data is limited to reach a final decision on the price per sqft.
Therefore, we give this property 7 / 10. *Disclaimer: This is our option and does constitute a recommendation or financial advice. Do your own research. *
- Price
- 7
- Condition
- 8
- Location
- 7
- Land
- 6
- Bedrooms
- 3
- Bathrooms
- 3
- Sqft (est)
- 1,401.46
The heatmap indicates the level of crime in the area. The color of the heatmap indicates the crime severity and recency.
Metrics Year-on-Year
- Average area value
- 575,761.00 £Decreased by 16.85 %
- Est sale value
- 1,296,350.50 £Increased by 37.04 %
- Average area rental value
- 1,663.00 £/moIncreased by 5.19 %
- Est letting value
- 2,802.92 £/moIncreased by 100.00 %
- Est rental Yield
- 3.47 %Increased by 26.64 %
- Crime Rate
- 6.00 %Unchanged by 0.00 %
Agent Activity
Breckon & Breckon created the listing.
Nearby Schools
| Name | Type | Ofsted | Distance |
|---|---|---|---|
| Wolvercote Primary School | Academy Converter | Good | 0.75 KM |
| D'Overbroeck'S | Other Independent School | 1.17 KM | |
| Northern House Academy | Academy Special Converter | 1.50 KM | |
| St Edward'S School | Other Independent School | 1.65 KM | |
| Cutteslowe Primary School | Academy Sponsor Led | Good | 1.65 KM |
Images
Nearby Streets
| Name | Average Price | Average Sqft | Distance |
|---|---|---|---|
| Rotha Field Road | £ 695,000 | 0 | 0.00 KM |
| Davenant Court | £ 0 | 0 | 0.00 KM |
| Jordan Hill | £ 0 | 0 | 0.00 KM |
| Churchill Place | £ 0 | 0 | 0.00 KM |
| Cannon Court | £ 90,000 | 0 | 0.00 KM |
Nearby Transport
| Name | NLC | TLC | Distance |
|---|---|---|---|
| Oxford Parkway | 3121 | OXP | 1.63 KM |
| Oxford | 3115 | OXF | 4.06 KM |
| Islip | 3110 | ISP | 5.79 KM |
Nearby Listings
| Address | Price | Type | Score | Distance |
|---|---|---|---|---|
| Rothafield Road, Oxford, OX2 | £ 900,000 | BUY | 7 / 10 | 0.00 KM |
| Rothafield Road, Oxford, OX2 | £ 850,000 | BUY | 7 / 10 | 0.00 KM |
| Rothafield Road, Oxford, Oxfordshire | £ 800,000 | BUY | 6 / 10 | 0.00 KM |
| Rothafield Road, North Oxford | £ 840,000 | BUY | 5 / 10 | 0.06 KM |
| Five Mile Drive, Oxford, OX2 | £ 800,000 | BUY | 7 / 10 | 0.11 KM |
Nearby Properties
| Address | Price | Distance |
|---|---|---|
| 5 Rothafield Road | £ 700,000 | 0.06 KM |
| 8 Rothafield Road | £ 570,000 | 0.06 KM |
| 1a Rothafield Road | £ 187,000 | 0.06 KM |
| 6 Rothafield Road | £ 815,000 | 0.06 KM |
| 55 Five Mile Drive | £ 660,000 | 0.12 KM |