North Road, NEWBRIDGE, NP114AB
By Cariad Property
£ 125,000
Reviews
2 out of 5 stars
Cariad Property says ..
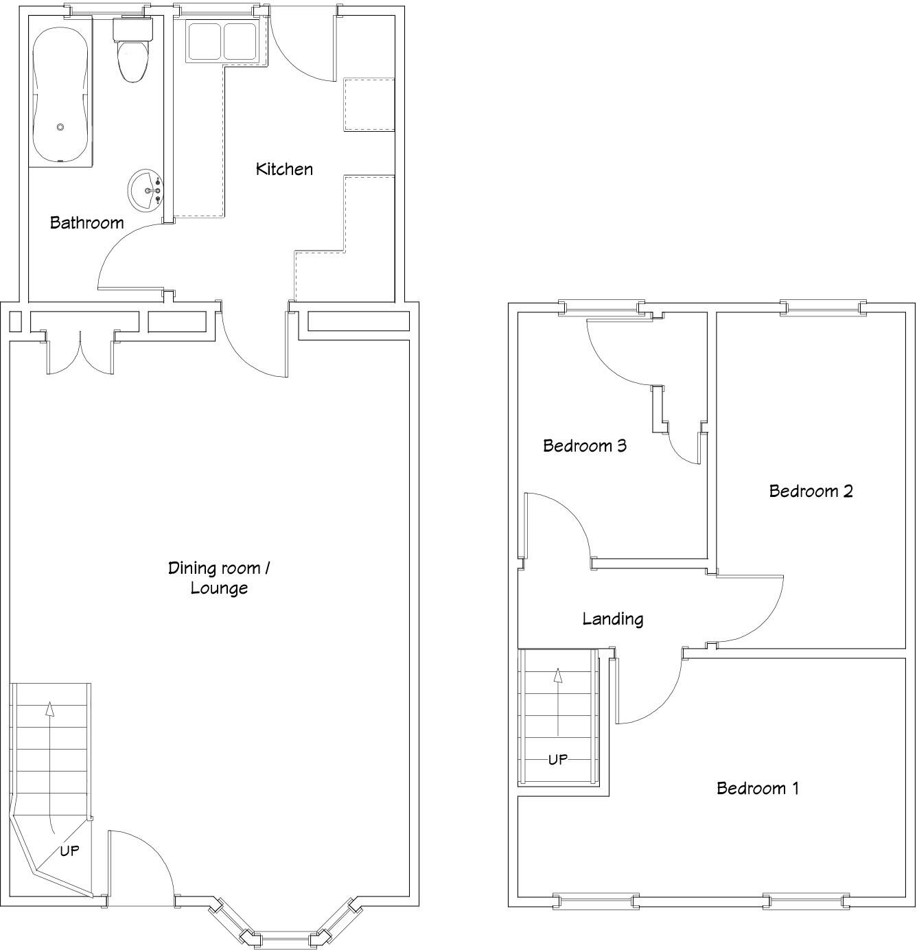
A FIRST TIME HOME NOT TO BE MISSED! Extended and spacious, bay fronted property, ideal for amenities and travel links, three bedrooms, fitted kitchen, bathroom, open plan lounge/diner, super spacious, driveway parking, no chain.
Property Oracle says ..
This three-bedroom terraced house in Newbridge, Caerphilly, is listed at £125,000. The property’s exterior appears generally well-maintained, displaying a typical terraced house aesthetic. However, the interior requires significant modernization. The images reveal dated decor, including worn carpets, outdated kitchen and bathroom fixtures, and some visible damage to the ceilings. The living spaces are adequate in size for a three-bedroom property, but lack character. The flooring appears to be relatively modern laminate. Whilst the kitchen and bathroom are dated, they appear functional, although an upgrade would be desirable. Outside, the property offers minimal outdoor space, essentially a small paved rear area rather than a garden. The property’s location is a positive aspect; its proximity to schools and the Newbridge train station makes it an attractive option for families and commuters. However, the required renovations and lack of outdoor space could be drawbacks for potential buyers. The pricing needs further analysis in comparison with similar properties sold in the area that are also in need of modernization. Overall, it represents a potential investment opportunity, requiring significant work to reach its full potential. To get an accurate feel for its value, a comparative market analysis of similarly sized and conditioned terraced houses in the area is crucial.
Therefore, we give this property 4 / 10. *Disclaimer: This is our option and does constitute a recommendation or financial advice. Do your own research. *
- Price
- 6
- Condition
- 4
- Location
- 7
- Land
- 1
- Bedrooms
- 3
- Bathrooms
- 0
- Sqft (est)
- 1,000.00
The heatmap indicates the level of crime in the area. The color of the heatmap indicates the crime severity and recency.
Metrics Year-on-Year
- Average area value
- 219,115.00 £Increased by 18.08 %
- Est sale value
- 249,000.00 £Increased by 3.75 %
- Average area rental value
- 1,500.00 £/moIncreased by 50.30 %
- Est letting value
- 1,000.00 £/moUnchanged by 0.00 %
- Est rental Yield
- 8.21 %Increased by 27.29 %
- Crime Rate
- 6.00 %Unchanged by 0.00 %
Agent Activity
Cariad Property created the listing.
Nearby Schools
| Name | Type | Ofsted | Distance |
|---|---|---|---|
| Tynewydd Primary School | Welsh Establishment | 0.27 KM | |
| Crumlin High Level Primary School | Welsh Establishment | 0.48 KM | |
| Pantside Primary School | Welsh Establishment | 0.83 KM | |
| Newbridge School | Welsh Establishment | 0.89 KM | |
| Sofrydd C.P. School | Welsh Establishment | 1.99 KM |
Images
Nearby Streets
| Name | Average Price | Average Sqft | Distance |
|---|---|---|---|
| Oakland Terrace | £ 0 | 0 | 0.00 KM |
| Park Road | £ 270,000 | 0 | 0.00 KM |
| Yewtree Road | £ 0 | 0 | 0.00 KM |
| Church Road | £ 0 | 0 | 0.00 KM |
| Pen-y-Lan Terrace | £ 260,000 | 0 | 0.00 KM |
Nearby Transport
| Name | NLC | TLC | Distance |
|---|---|---|---|
| Newbridge | 9919 | NBE | 0.78 KM |
| Llanhilleth | 9916 | LTH | 3.15 KM |
| Crosskeys | 9902 | CKY | 6.01 KM |
| Risca And Pontymister | 9920 | RCA | 9.23 KM |
| Gilfach Fargoed | 4022 | GFF | 9.48 KM |
Nearby Listings
| Address | Price | Type | Score | Distance |
|---|---|---|---|---|
| North Road, NEWBRIDGE, NP114AB | £ 125,000 | BUY | 4 / 10 | 0.00 KM |
| Manor Park, Newbridge, Newport | £ 210,000 | BUY | 6 / 10 | 0.20 KM |
| Manor Park, Newbridge, NP11 | £ 349,950 | BUY | 6 / 10 | 0.23 KM |
| Manor Park, NEWBRIDGE, NP114RS | £ 325,000 | BUY | 7 / 10 | 0.25 KM |
| Manor Park, Newbridge, NP11 | £ 209,950 | BUY | 5 / 10 | 0.25 KM |
Nearby Properties
| Address | Price | Distance |
|---|---|---|
| 56 North Road | £ 64,950 | 0.00 KM |
| 64 North Road | £ 80,000 | 0.00 KM |
| 66 North Road | £ 115,000 | 0.00 KM |
| 57 North Road | £ 80,000 | 0.00 KM |
| 62 North Road | £ 43,000 | 0.00 KM |