Chancellors says ..
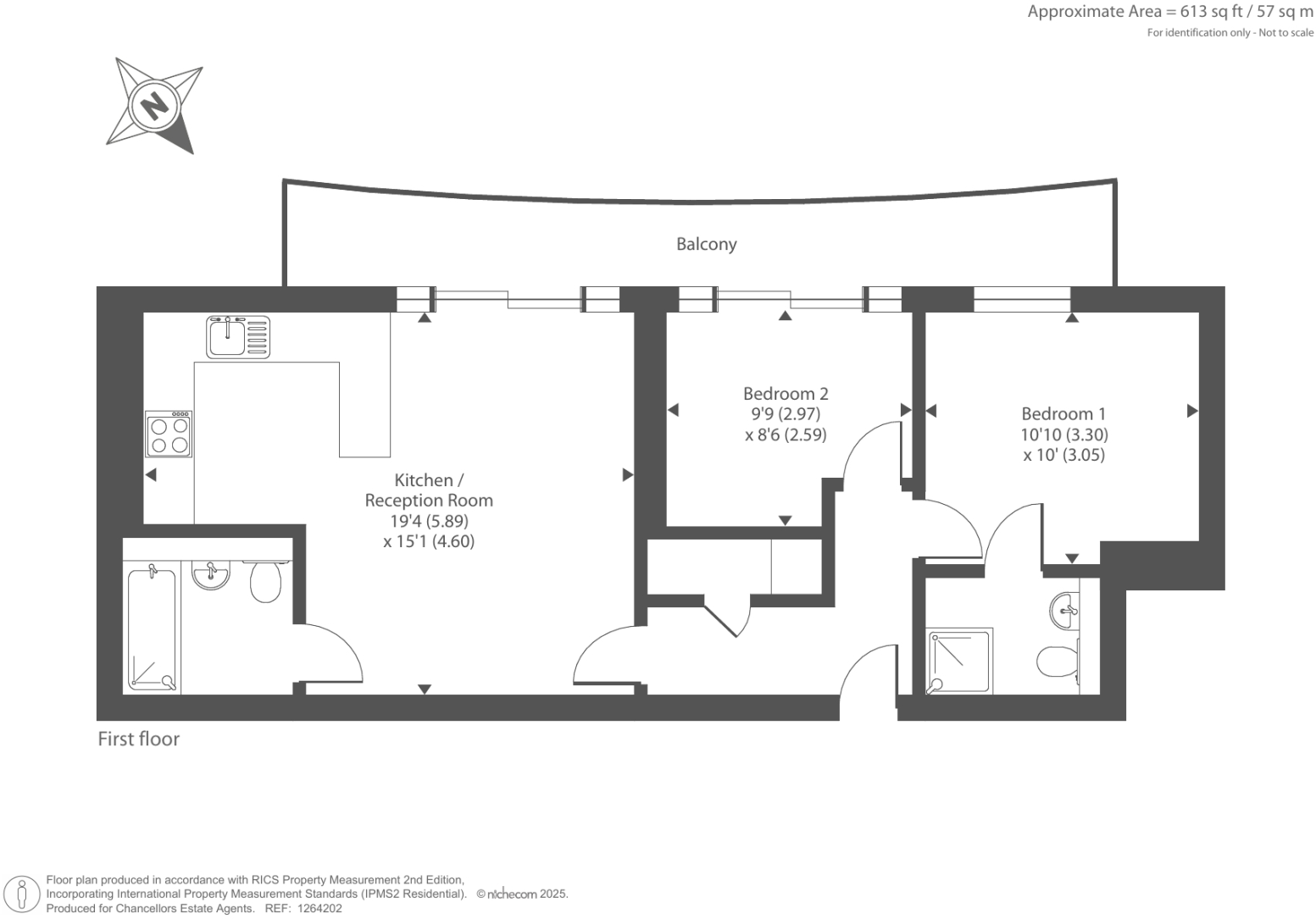
Set in this popular development convenient for West Reading Station, Town Centre and the many amenities along the Oxford Road is this two bedroom apartment with two bathrooms, open living / dining space with kitchen area with breakfast bar. No onward chain, Parking and communal grounds.
Property Oracle says ..
The property is a two-bedroom, two-bathroom flat located in West Reading, Berkshire. The flat is situated in a modern apartment building and benefits from a private balcony. The apartment itself appears to be in good condition, with a modern kitchen and bathroom. The interior is presented well in the photographs. The location is reasonably convenient, with several schools within a kilometer radius, all of which have a good Ofsted rating. Reading West train station is also relatively close by, providing good transport links. While the property has a small plot size of 613 sqft, the images show a communal green space. The list price of £220,000 is significantly lower than the average house price in the area (£381,357). However, the average price per sqft is £467, and this property is only 350.90 sqft. Considering the smaller size of the flat compared to the average in the area, and the lower overall price, the asking price may represent reasonable value for money, especially considering its modern condition and convenient location. More information on the specifics of the property compared to similar properties in the area would be needed to fully assess this.
Therefore, we give this property 6 / 10. *Disclaimer: This is our option and does constitute a recommendation or financial advice. Do your own research. *
- Price
- 7
- Condition
- 8
- Location
- 7
- Land
- 3
- Bedrooms
- 2
- Bathrooms
- 2
- Sqft (est)
- 350.90
- Lot (est)
- 613.00
The heatmap indicates the level of crime in the area. The color of the heatmap indicates the crime severity and recency.
Metrics Year-on-Year
- Average area value
- 348,333.00 £Decreased by 0.55 %
- Est sale value
- 197,556.70 £Increased by 36.65 %
- Average area rental value
- 1,528.00 £/moIncreased by 4.80 %
- Est letting value
- 701.80 £/moIncreased by 100.00 %
- Est rental Yield
- 5.26 %Increased by 5.20 %
- Crime Rate
- 17.00 %Unchanged by 0.00 %
Agent Activity
Chancellors created the listing.
Nearby Schools
| Name | Type | Ofsted | Distance |
|---|---|---|---|
| Ranihket Children'S Centre | Children's Centre | 0.75 KM | |
| Ranikhet Academy | Academy Sponsor Led | Good | 0.75 KM |
| Wilson Primary School | Community School | Good | 0.94 KM |
| English Martyrs' Catholic Primary School | Voluntary Aided School | Good | 1.21 KM |
| St Michael'S Primary School | Community School | Good | 1.49 KM |
Images
Nearby Streets
| Name | Average Price | Average Sqft | Distance |
|---|---|---|---|
| Riverside Park | £ 0 | 0 | 0.00 KM |
| Thornton Road | £ 0 | 0 | 0.00 KM |
| Oxford Road cyclepath | £ 0 | 0 | 0.00 KM |
| Selborne Gardens | £ 350,000 | 0 | 0.00 KM |
| Park Grove | £ 350,000 | 0 | 0.00 KM |
Nearby Transport
| Name | NLC | TLC | Distance |
|---|---|---|---|
| Reading West | 3160 | RDW | 2.36 KM |
| Tilehurst | 3154 | TLH | 2.44 KM |
| Reading | 3149 | RDG | 4.33 KM |
| Theale | 3153 | THE | 7.67 KM |
| Pangbourne | 3036 | PAN | 9.23 KM |
Nearby Listings
| Address | Price | Type | Score | Distance |
|---|---|---|---|---|
| West Reading, Berkshire, RG30 | £ 220,000 | BUY | 6 / 10 | 0.00 KM |
| West Reading, Berkshire, RG30 | £ 220,000 | BUY | 6 / 10 | 0.00 KM |
| Grovelands Place, Reading, Berkshire, RG30 | £ 230,000 | BUY | Unknown | 0.08 KM |
| Rowe Court, Grovelands Road, Reading, Berkshire, RG30 | £ 170,000 | BUY | 5 / 10 | 0.08 KM |
| Rowe Court, Grovelands Road, Reading, Berkshire, RG30 | £ 180,000 | BUY | 7 / 10 | 0.09 KM |
Nearby Properties
| Address | Price | Distance |
|---|---|---|
| 49 Craig Avenue | £ 170,000 | 0.03 KM |
| 43 Craig Avenue | £ 292,500 | 0.03 KM |
| 17 Craig Avenue | £ 280,000 | 0.03 KM |
| 45 Craig Avenue | £ 320,000 | 0.03 KM |
| 33 Craig Avenue | £ 360,000 | 0.03 KM |