Thurlestone, Kingsbridge
MA

Thurlestone, Kingsbridge

By Marchand Petit

£ 1,150,000

Reviews

3 out of 5 stars

Marchand Petit says ..

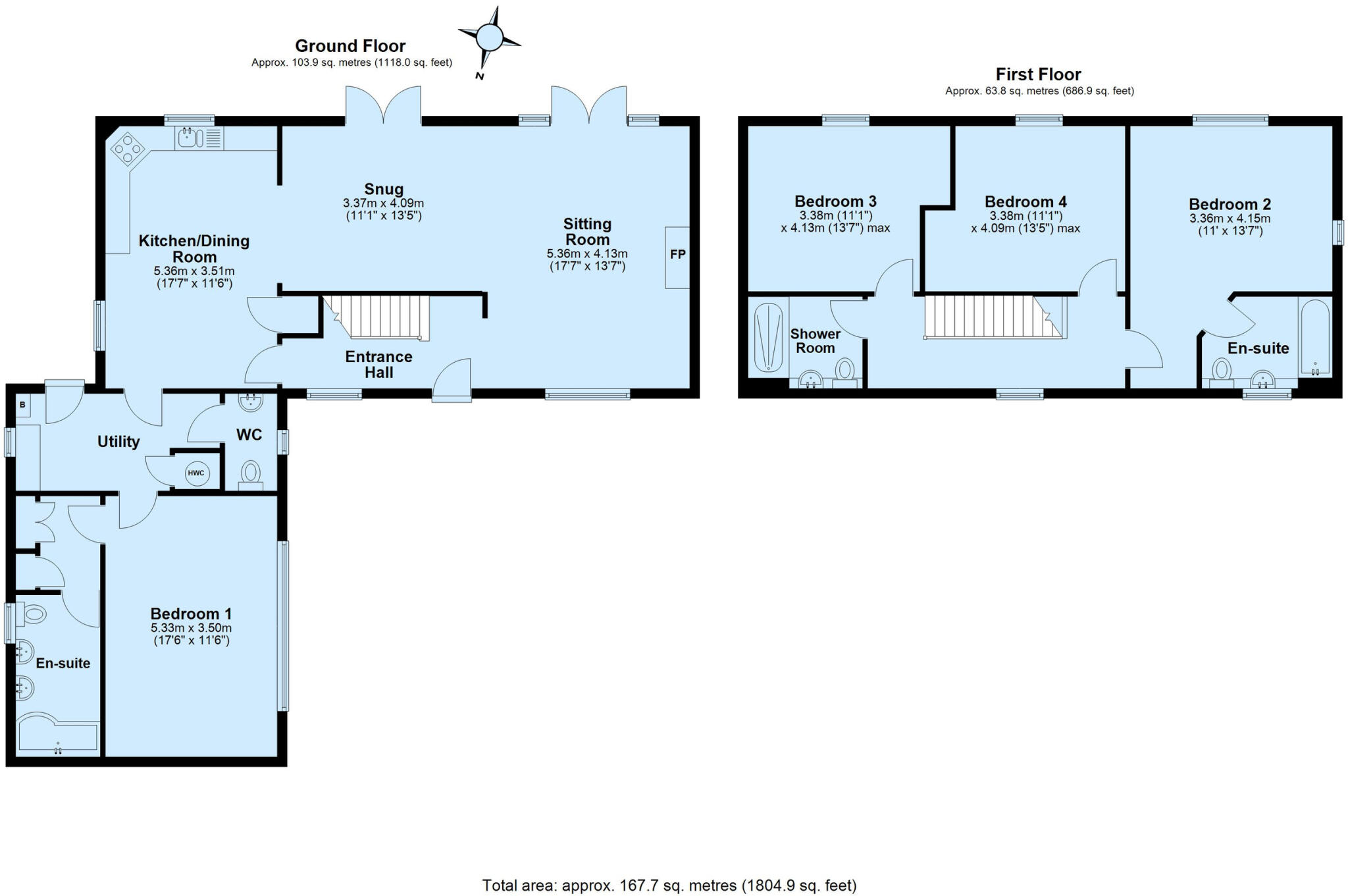
This delightful 4-bedroom detached property was built in the late 90’s and sits within the private and exclusive development of Homefield, in the sought after village of Thurlestone.

Property Oracle says ..

This is a detached property in the sought-after village of Thurlestone, Devon. It features four bedrooms and three bathrooms, making it suitable for families. The property is in generally good condition, with a well-maintained garden and modern bathrooms. While the kitchen is functional, some may consider it dated compared to the rest of the house. The location is desirable, being close to the coast and a good primary school. However, the price appears to be slightly high compared to average property values in the area.

Therefore, we give this property 7 / 10. *Disclaimer: This is our option and does constitute a recommendation or financial advice. Do your own research. *

Price
6
Condition
8
Location
7
Land
7
Bedrooms
4
Bathrooms
3
Sqft (est)
1,805.11

The heatmap indicates the level of crime in the area. The color of the heatmap indicates the crime severity and recency.

Metrics Year-on-Year

Average area value
504,375.00 £
Decreased by 47.90 %
from 968,017.00 £
Est sale value
989,200.28 £
Decreased by 36.35 %
from 1,554,199.71 £
Average area rental value
1,350.00 £/mo
Decreased by 5.40 %
from 1,427.00 £/mo
Est letting value
1,805.11 £/mo
Unchanged by 0.00 %
from 1,805.11 £/mo
Est rental Yield
3.21 %
Increased by 81.36 %
from 1.77 %
Crime Rate
147.00 %
Unchanged by 0.00 %
from 147.00 %

Agent Activity

  • Marchand Petit created the listing.

Nearby Schools

NameTypeOfstedDistance
Thurlestone All Saints Church Of England AcademyAcademy ConverterGood0.52 KM
Aveton Gifford Cofe Primary SchoolAcademy ConverterGood5.56 KM
Malborough With South Huish Church Of England Primary SchoolVoluntary Controlled SchoolGood6.05 KM
West Alvington Church Of England AcademyAcademy ConverterGood7.56 KM
Kingsbridge AcademyAcademy Converter8.63 KM

Images

A07 - Homefield House, Thurlestone - 251120 A08 - Homefield House, Thurlestone - 251120 A10 - Homefield House, Thurlestone - 251120 A11 - Homefield House, Thurlestone - 251120 A09 - Homefield House, Thurlestone - 251120 A12 - Homefield House, Thurlestone - 251120 A13 - Homefield House, Thurlestone - 251120 A14 - Homefield House, Thurlestone - 251120 A15 - Homefield House, Thurlestone - 251120 A16 - Homefield House, Thurlestone - 251120 Utility Hall Landing Bed 1 Bed 1 En-Suite Bed 2 Bed 2 En-Suite Bed 3 Bed 3 View Shower Room Bed 4 A01 - Homefield House, Thurlestone - 251120

Nearby Streets

NameAverage PriceAverage SqftDistance
Church Cottages £ 000.00 KM
The Nook £ 000.00 KM
Parkfield Walk £ 000.00 KM
Sea View Terrace £ 000.00 KM
Warren Road £ 000.00 KM

Nearby Listings

AddressPriceTypeScoreDistance
Thurlestone, Kingsbridge £ 1,150,000BUY7 / 100.00 KM
Thurlestone, £ 1,350,000BUYUnknown0.04 KM
Thurlestone, Kingsbridge, Devon, TQ7 £ 525,000BUY7 / 100.21 KM
Furzey Close, Thurlestone £ 495,000BUYUnknown0.23 KM
Thurlestone, Kingsbridge, TQ7 £ 550,000BUY7 / 100.24 KM

Nearby Properties

AddressPriceDistance
3 Homefield Cottages £ 312,0000.04 KM
1 Homefield Cottages £ 690,0000.05 KM
3 Church Cottages £ 240,0000.20 KM
2 Church Cottages £ 435,0000.20 KM
2 The Mews £ 995,0000.24 KM