Barbican Road, Greenford, Middlesex
By Evans & Company
£ 275,000
Reviews
2 out of 5 stars
Evans & Company says ..
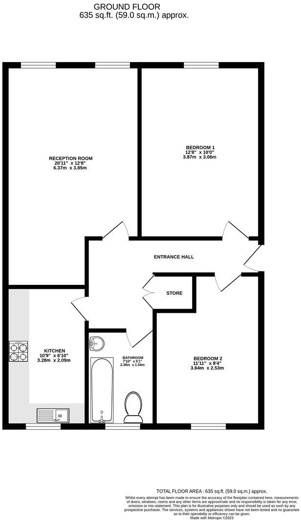
Two double bedroom 3rd floor flat, double glazed windows, gas central heating, very good condition, panel flooring +new carpets, communal gardens, communal parking, unfurnished, EPC "D", Council Tax Band "C"
Property Oracle says ..
This property is a two-bedroom flat located on Barbican Road in Greenford, Ealing, London. The address is within reasonable proximity to public transportation, with tube and train stations within a few kilometers’ reach. A handful of nearby schools are listed, but specific Ofsted ratings are not provided for many, therefore a comprehensive review of educational facilities within the vicinity cannot be made. The flat itself, as shown in the photographs, appears to be in adequate condition, though the finishes seem outdated. It is important to note that the property does not include a private garden or outside space, which is expected given it’s a flat. The price of £275,000 appears to fall within a reasonable range for a two-bedroom flat in this area of London. More detailed information about the local property market and average price per square foot would give a more precise market value of this property. Overall, it presents a reasonably priced option for buyers seeking a flat in Greenford, with convenient access to transport links and local amenities but must consider that the condition is not exceptional and requires some modernisation and updating.
Therefore, we give this property 4 / 10. *Disclaimer: This is our option and does constitute a recommendation or financial advice. Do your own research. *
- Price
- 7
- Condition
- 5
- Location
- 6
- Land
- 1
- Bedrooms
- 2
- Bathrooms
- 1
- Sqft (est)
- 635.07
The heatmap indicates the level of crime in the area. The color of the heatmap indicates the crime severity and recency.
Metrics Year-on-Year
- Average area value
- 523,317.00 £Increased by 7.74 %
- Est sale value
- 424,226.76 £Increased by 23.93 %
- Average area rental value
- 1,867.00 £/moDecreased by 17.83 %
- Est letting value
- 1,270.14 £/moUnchanged by 0.00 %
- Est rental Yield
- 4.28 %Decreased by 23.71 %
- Crime Rate
- 5.00 %Unchanged by 0.00 %
Agent Activity
Evans & Company created the listing.
Nearby Schools
| Name | Type | Ofsted | Distance |
|---|---|---|---|
| Allenby Primary School | Community School | Good | 0.56 KM |
| Windmill Children'S Centre | Children's Centre Linked Site | 0.64 KM | |
| Dormers Wells High School | Academy Converter | 0.77 KM | |
| Dormers Wells Infant School | Academy Sponsor Led | 0.83 KM | |
| Stanhope Primary School | Community School | Good | 0.83 KM |
Images
Nearby Streets
| Name | Average Price | Average Sqft | Distance |
|---|---|---|---|
| Faraday Road | £ 400,000 | 0 | 0.00 KM |
| Bingley Road | £ 635,000 | 0 | 0.00 KM |
| Avon Road | £ 305,000 | 0 | 0.00 KM |
| Lyndhurst Road | £ 0 | 0 | 0.00 KM |
| Thurston Road | £ 600,000 | 0 | 0.00 KM |
Nearby Transport
| Name | NLC | TLC | Distance |
|---|---|---|---|
| Southall | 3187 | STL | 2.60 KM |
| Hanwell | 3191 | HAN | 2.64 KM |
| Greenford | 3136 | GFD | 2.88 KM |
| South Greenford | 3138 | SGN | 3.00 KM |
| Castle Bar Park | 3098 | CBP | 3.22 KM |
Nearby Listings
| Address | Price | Type | Score | Distance |
|---|---|---|---|---|
| Barbican Road, Greenford, Middlesex | £ 275,000 | BUY | 4 / 10 | 0.00 KM |
| Greenford, UB6 | £ 330,000 | BUY | 4 / 10 | 0.01 KM |
| Barbican Road, Greenford | £ 325,000 | BUY | 5 / 10 | 0.02 KM |
| Barbican Road, Greenford | £ 330,000 | BUY | 5 / 10 | 0.07 KM |
| Canterbury Close, Greenford | £ 525,000 | BUY | 6 / 10 | 0.09 KM |
Nearby Properties
| Address | Price | Distance |
|---|---|---|
| 9 Barbican Road | £ 265,000 | 0.03 KM |
| 60 Barbican Road | £ 145,000 | 0.03 KM |
| 5 Barbican Road | £ 135,000 | 0.03 KM |
| 36 Barbican Road | £ 270,000 | 0.03 KM |
| 29 Barbican Road | £ 115,000 | 0.03 KM |