CH
Debussy Court, Jarrow, Tyne and Wear, NE32
By Chase Holmes
£ 140,000
Chase Holmes says ..
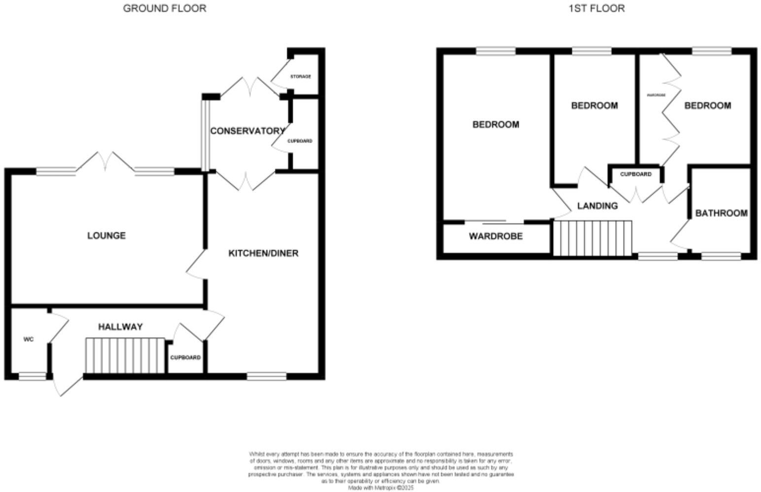
Discover your perfect home in Jarrow with this stunning three-bedroom terraced property on Debussy Court. It is an ideal choice for families or first-time buyers looking for comfort, style, and great value!
- Bedrooms
- 3
- Bathrooms
- 1
The heatmap indicates the level of crime in the area. The color of the heatmap indicates the crime severity and recency.
Metrics Year-on-Year
- Average area value
- 187,806.00 £Decreased by 2.32 %
- Average area rental value
- 657.00 £/moDecreased by 5.87 %
- Est rental Yield
- 4.20 %Decreased by 3.67 %
- Crime Rate
- 3.00 %Unchanged by 0.00 %
from 192,272.00 £
from 698.00 £/mo
from 4.36 %
from 3.00 %
Agent Activity
Chase Holmes created the listing.
Nearby Schools
| Name | Type | Ofsted | Distance |
|---|---|---|---|
| St Bede'S Catholic Primary School, Jarrow | Academy Converter | 0.15 KM | |
| Clervaux Nursery School | Local Authority Nursery School | Outstanding | 0.21 KM |
| Epinay Business And Enterprise School | Foundation Special School | Outstanding | 0.22 KM |
| Jarrow Cross Cofe Primary School | Voluntary Controlled School | Good | 0.41 KM |
| Dunn Street Primary School | Community School | Good | 0.43 KM |
Images
Nearby Streets
| Name | Average Price | Average Sqft | Distance |
|---|---|---|---|
| Howard Street | £ 0 | 0 | 0.00 KM |
| Harold Street | £ 85,000 | 0 | 0.00 KM |
| High Street | £ 120,000 | 0 | 0.00 KM |
| Saxon Way | £ 0 | 0 | 0.00 KM |
| Hope Street | £ 0 | 0 | 0.00 KM |
Nearby Transport
| Name | NLC | TLC | Distance |
|---|---|---|---|
| Heworth | 7766 | HEW | 8.53 KM |
Nearby Listings
| Address | Price | Type | Score | Distance |
|---|---|---|---|---|
| Debussy Court, Jarrow, Tyne and Wear, NE32 | £ 140,000 | BUY | Unknown | 0.00 KM |
| Epinay Walk, Jarrow | £ 86,500 | BUY | 7 / 10 | 0.12 KM |
| Stothard Street, Jarrow, Tyne and Wear, NE32 3AN | £ 62,500 | BUY | 6 / 10 | 0.17 KM |
| Russell Street, Jarrow, Tyne and Wear, NE32 3AW | £ 55,000 | BUY | Unknown | 0.17 KM |
| Stothard Street, Jarrow, Tyne and Wear, NE32 3AN | £ 35,000 | BUY | 5 / 10 | 0.17 KM |
Nearby Properties
| Address | Price | Distance |
|---|---|---|
| 5 Debussy Court | £ 114,000 | 0.03 KM |
| 18 Epinay Walk | £ 74,000 | 0.12 KM |
| 35 Epinay Walk | £ 126,000 | 0.12 KM |
| 32 Epinay Walk | £ 116,000 | 0.12 KM |
| 10 Prince Consort Road | £ 75,000 | 0.15 KM |