Plympton, Plymouth
JU

Plympton, Plymouth

By Julian Marks

£ 525,000

Reviews

3 out of 5 stars

Julian Marks says ..

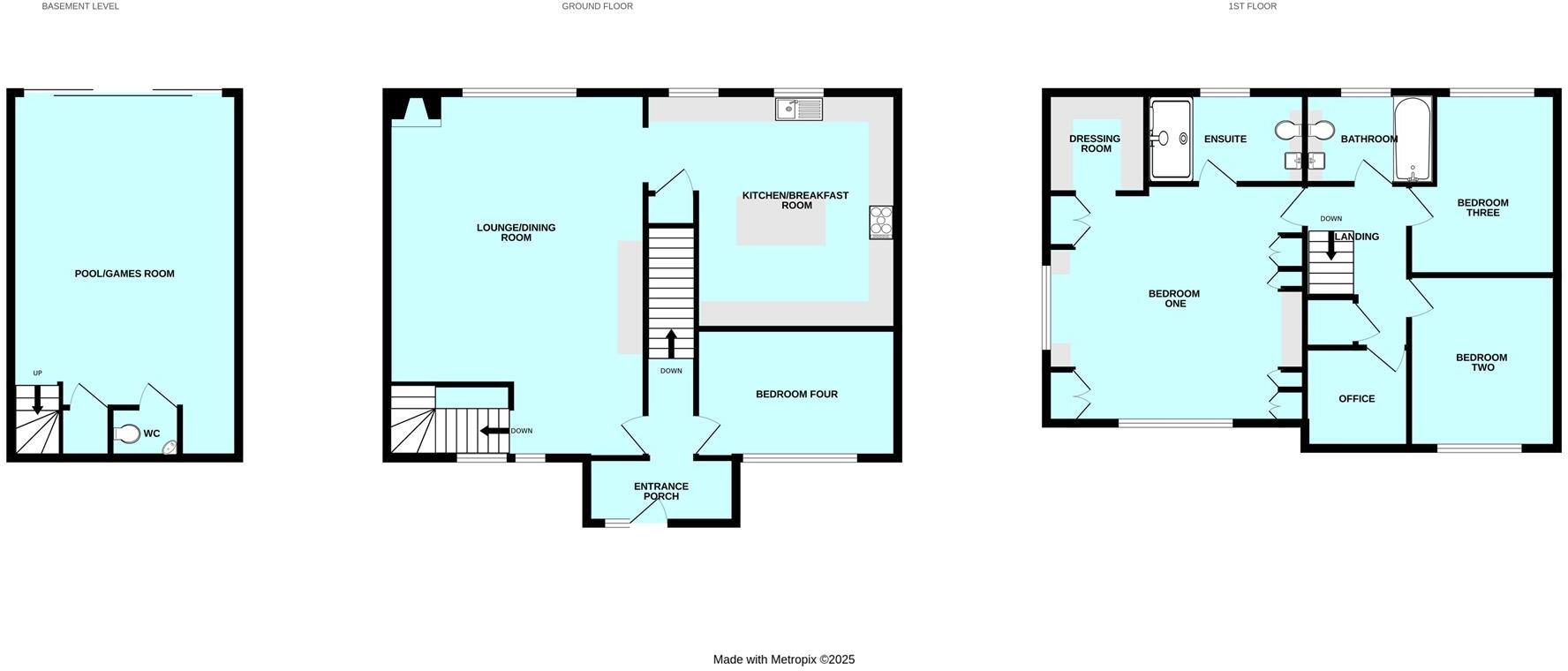
An exceptional, one-off 4-bedroom property which has been extensively renovated & is now an extremely modern, attractive family home offering ample off-road parking. The accommodation includes a beautiful, large kitchen/dining area & a separate, equally spacious lounge/diner. There is also a game...

Property Oracle says ..

This property is a 4-bedroom, 2-bathroom semi-detached house located in Plympton, Plymouth. The house has been recently renovated to a high standard, with a modern, open-plan kitchen and living area. There is also a large garden with artificial turf, a patio area, and a hot tub. The property is in excellent condition and is well-presented. The location is good, with several primary schools within a short distance. The list price is higher than the average for the area, but this is likely due to the size of the property, its condition, and the additional features such as the hot tub and large garden. The property is likely to appeal to families looking for a modern, well-maintained home in a good location.

Therefore, we give this property 7 / 10. *Disclaimer: This is our option and does constitute a recommendation or financial advice. Do your own research. *

Price
6
Condition
10
Location
7
Land
8
Bedrooms
4
Bathrooms
2
Sqft (est)
1,950.00

The heatmap indicates the level of crime in the area. The color of the heatmap indicates the crime severity and recency.

Metrics Year-on-Year

Average area value
219,542.00 £
Decreased by 20.20 %
from 275,106.00 £
Est sale value
620,100.00 £
Decreased by 0.62 %
from 624,000.00 £
Average area rental value
900.00 £/mo
Decreased by 7.69 %
from 975.00 £/mo
Est letting value
1,950.00 £/mo
Unchanged by 0.00 %
from 1,950.00 £/mo
Est rental Yield
4.92 %
Increased by 15.76 %
from 4.25 %
Crime Rate
3.00 %
Unchanged by 0.00 %
from 3.00 %

Agent Activity

  • Julian Marks created the listing.

Nearby Schools

NameTypeOfstedDistance
Glen Park Primary SchoolAcademy ConverterGood0.46 KM
Yealmpstone Farm Primary SchoolCommunity SchoolGood0.55 KM
Chaddlewood Primary SchoolAcademy ConverterGood0.58 KM
Longcause Community Special SchoolCommunity Special SchoolGood1.18 KM
Plympton St Maurice Primary SchoolAcademy ConverterGood1.24 KM

Images

LONGWOOD CLOSE LOUNGE/DINER KITCHEN/DINER IMG_1373.jpeg LOUNGE/DINER LOUNGE/DINER LOUNGE/DINER KITCHEN/DINER KITCHEN/DINER BEDROOM FOUR IMG_7009.jpeg BEDROOM ONE ENSUITE ENSUITE DRESSING ROOM BEDROOM THREE BEDROOM THREE FAMILY BATHROOM BEDROOM TWO FAMILY BATHROOM GAMES ROOM GAMES ROOM Bathroom.jpg GAMES ROOM DOWNSTAIRS WC GAMES ROOM GAMES ROOM IMG_1372.jpeg IMG_1374.jpeg IMG_1376.jpeg IMG_1370.jpeg IMG_1369 2.jpeg BEDROOM ONE 1.jpg 2.jpg 3.jpg 4.jpg Boundaries.jpg

Nearby Streets

NameAverage PriceAverage SqftDistance
Brookfield Close £ 000.00 KM
Walnut Close £ 000.00 KM
Greenwood Park Close £ 327,50000.00 KM
Steer Park Road £ 000.00 KM
Pinewood Close £ 000.00 KM

Nearby Listings

AddressPriceTypeScoreDistance
Plympton, Plymouth £ 525,000BUY7 / 100.00 KM
Longwood Close, Plympton £ 290,000BUY7 / 100.04 KM
The Spinney, Plympton, Plymouth £ 475,000BUY7 / 100.19 KM
Moulton Close, Plympton. Plymouth £ 290,000BUY6 / 100.29 KM
Plympton, Plymouth £ 260,000BUY6 / 100.30 KM

Nearby Properties

AddressPriceDistance
11 Longwood Close £ 166,5000.00 KM
37 Longwood Close £ 183,0000.00 KM
17 Longwood Close £ 166,0000.00 KM
23 Longwood Close £ 300,0000.00 KM
48 Longwood Close £ 190,0000.00 KM