Yopa says ..
Attention investors and developers the possibilities are near endless with this property STPP. This rare to the market oppurtunity is a blank canvas for a seasoned investor The property is being sold via a modern method of auction. Please call or visit YOPA Online Auctions for more information.
Property Oracle says ..
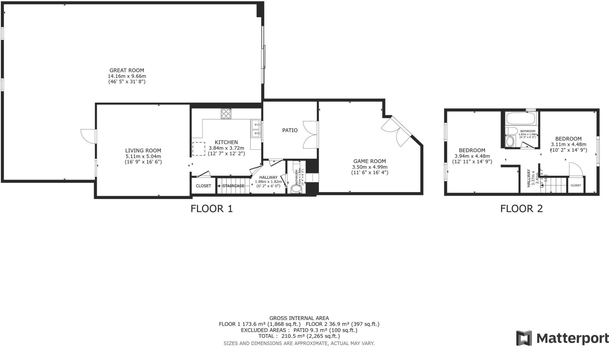
This semi-detached property on Keighley Road, Halifax, presents a significant renovation opportunity. While the location offers reasonable access to local amenities and schools, the property’s condition is poor, requiring extensive work throughout. The presence of a detached bar/entertainment area in the rear garden is a unique feature. However, the asking price of £300,000 appears high considering the level of renovation required and compared to other properties in the area. Potential buyers should factor in substantial renovation costs when considering this property. The property has 2 bedrooms and 1 bathroom.
Therefore, we give this property 4 / 10. *Disclaimer: This is our option and does constitute a recommendation or financial advice. Do your own research. *
- Price
- 3
- Condition
- 2
- Location
- 6
- Land
- 7
- Bedrooms
- 2
- Bathrooms
- 1
The heatmap indicates the level of crime in the area. The color of the heatmap indicates the crime severity and recency.
Metrics Year-on-Year
- Average area value
- 143,077.00 £Decreased by 16.59 %
- Average area rental value
- 723.00 £/moIncreased by 2.70 %
- Est rental Yield
- 6.06 %Increased by 23.17 %
- Crime Rate
- 21.00 %Unchanged by 0.00 %
Agent Activity
Yopa created the listing.
Nearby Schools
| Name | Type | Ofsted | Distance |
|---|---|---|---|
| Moorside Community Primary School | Community School | Good | 0.36 KM |
| Kevin Pearce Childrens Centre | Children's Centre | 0.58 KM | |
| Ovenden Innovations Children'S Centre | Children's Centre | 1.07 KM | |
| Trinity Academy, Halifax | Academy Sponsor Led | Outstanding | 1.23 KM |
| Lee Mount Primary School | Community School | Requires improvement | 1.28 KM |
Images
Nearby Streets
| Name | Average Price | Average Sqft | Distance |
|---|---|---|---|
| Nursery Avenue | £ 0 | 0 | 0.00 KM |
| Grove Park | £ 0 | 0 | 0.00 KM |
| Athol Street | £ 145,000 | 0 | 0.00 KM |
| Beaumont Chase | £ 230,000 | 0 | 0.00 KM |
| Ashfield Close | £ 0 | 0 | 0.00 KM |
Nearby Transport
| Name | NLC | TLC | Distance |
|---|---|---|---|
| Halifax | 8411 | HFX | 3.93 KM |
| Sowerby Bridge | 8527 | SOW | 4.87 KM |
Nearby Listings
| Address | Price | Type | Score | Distance |
|---|---|---|---|---|
| Keighley Road, Illingworth, Halifax, West Yorkshire | £ 240,000 | BUY | 5 / 10 | 0.00 KM |
| Keighley Road, Halifax, HX2 | £ 300,000 | BUY | 4 / 10 | 0.00 KM |
| Foundry Street North, Halifax | £ 148,000 | BUY | 7 / 10 | 0.05 KM |
| Prospect Row, Halifax, HX2 | £ 125,000 | BUY | Unknown | 0.14 KM |
| Keighley Road, Halifax, HX2 | £ 165,000 | BUY | 6 / 10 | 0.14 KM |
Nearby Properties
| Address | Price | Distance |
|---|---|---|
| 44 Keighley Road | £ 112,000 | 0.01 KM |
| 60e Keighley Road | £ 130,000 | 0.01 KM |
| 48 Keighley Road | £ 86,000 | 0.01 KM |
| 60c Keighley Road | £ 123,000 | 0.01 KM |
| 28a Keighley Road | £ 35,000 | 0.01 KM |