The Courtyard, Camberley
By Knights Property Services
£ 220,000
Reviews
2 out of 5 stars
Knights Property Services says ..
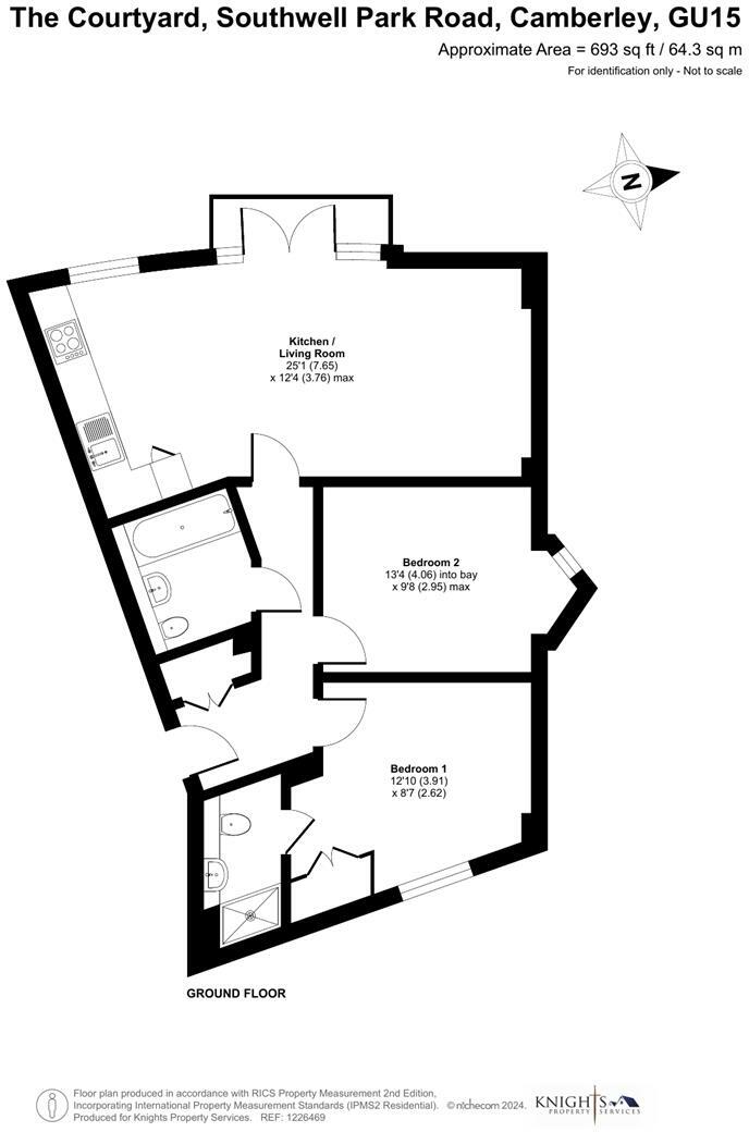
KNIGHTS PROPERTY SERVICES **NO ONWARD CHAIN** Situated in the heart of Camberley town centre, is this modern two bedroom ground floor apartment. The home comprising; two double bedrooms with an en suite to bedroom one, bathroom and large living room with modern kitchen. Further benefits include u...
Property Oracle says ..
This two-bedroom, two-bathroom apartment is situated in The Courtyard, Camberley town centre. Its central location offers easy access to local amenities, including Camberley train station providing connections to London and other parts of the UK. Several schools are within walking distance or a short drive. The apartment itself appears modern and well-maintained, based on provided images. The interior is presented well and has a modern feel. The kitchen and bathrooms look recently updated. However, a key drawback is the lack of private outdoor space, a common feature of apartments. The property is part of a larger development, which offers a communal garden area. While the location is a significant advantage, the list price may need further scrutiny given the limited plot size and size of the apartment when compared to other available listings. A comparative market analysis using more data points on sq ft pricing would enhance the assessment of the property’s value. Prospective buyers should undertake a thorough survey to assess the overall condition and look at comparable property sales in the area to determine if the asking price accurately reflects current market values.
Therefore, we give this property 5 / 10. *Disclaimer: This is our option and does constitute a recommendation or financial advice. Do your own research. *
- Price
- 6
- Condition
- 7
- Location
- 7
- Land
- 1
- Bedrooms
- 2
- Bathrooms
- 2
- Sqft (est)
- 692.12
The heatmap indicates the level of crime in the area. The color of the heatmap indicates the crime severity and recency.
Metrics Year-on-Year
- Average area value
- 226,464.00 £Decreased by 27.05 %
- Est sale value
- 199,330.56 £Decreased by 24.61 %
- Average area rental value
- 1,243.00 £/moDecreased by 7.99 %
- Est letting value
- 692.12 £/moUnchanged by 0.00 %
- Est rental Yield
- 6.59 %Increased by 26.25 %
- Crime Rate
- 31.00 %Unchanged by 0.00 %
Agent Activity
Knights Property Services created the listing.
Nearby Schools
| Name | Type | Ofsted | Distance |
|---|---|---|---|
| South Camberley Sure Start Children'S Centre | Children's Centre Linked Site | 0.64 KM | |
| Lyndhurst School | Other Independent School | 0.71 KM | |
| Kings International College | Foundation School | Good | 1.48 KM |
| South Camberley Primary And Nursery School | Academy Converter | 1.52 KM | |
| The Orchard Sure Start Children'S Centre | Children's Centre | 1.75 KM |
Images
Nearby Streets
| Name | Average Price | Average Sqft | Distance |
|---|---|---|---|
| Charles Street cycle path | £ 185,000 | 0 | 0.00 KM |
| Shelley Court | £ 0 | 0 | 0.00 KM |
| Firlands Avenue | £ 735,000 | 0 | 0.00 KM |
| High Street | £ 140,000 | 0 | 0.00 KM |
| The Bowlings | £ 357,500 | 0 | 0.00 KM |
Nearby Transport
| Name | NLC | TLC | Distance |
|---|---|---|---|
| Camberley | 5682 | CAM | 0.49 KM |
| Frimley | 5683 | FML | 2.68 KM |
| Blackwater | 5625 | BAW | 3.14 KM |
| Farnborough North | 5688 | FNN | 3.82 KM |
| Farnborough (Main) | 5521 | FNB | 4.45 KM |
Nearby Listings
| Address | Price | Type | Score | Distance |
|---|---|---|---|---|
| The Courtyard, Camberley | £ 220,000 | BUY | 5 / 10 | 0.00 KM |
| Firwood Drive, Camberley, Surrey, GU15 | £ 140,000 | BUY | 5 / 10 | 0.00 KM |
| Firwood Drive, Camberley, Surrey, GU15 | £ 150,000 | BUY | 6 / 10 | 0.00 KM |
| Southwell Park Road, Camberley, Surrey, GU15 | £ 135,000 | BUY | 6 / 10 | 0.03 KM |
| Southwell Park Road, Camberley, Surrey, GU15 | £ 230,000 | BUY | 6 / 10 | 0.03 KM |
Nearby Properties
| Address | Price | Distance |
|---|---|---|
| 20 Southwell Park Road | £ 634,700 | 0.09 KM |
| 7 Southwell Park Road | £ 250,000 | 0.13 KM |
| 45 Firwood Drive | £ 306,000 | 0.18 KM |
| 35 Firwood Drive | £ 418,100 | 0.18 KM |
| 49 Firwood Drive | £ 665,000 | 0.18 KM |