St. Peters Road, Croydon, CR0
By Move Revolution
£ 200,000
Reviews
2 out of 5 stars
Move Revolution says ..
A well presented studio apartment, situated in a popular residential location, which has been refurbished to a particularly high standard throughout.
Property Oracle says ..
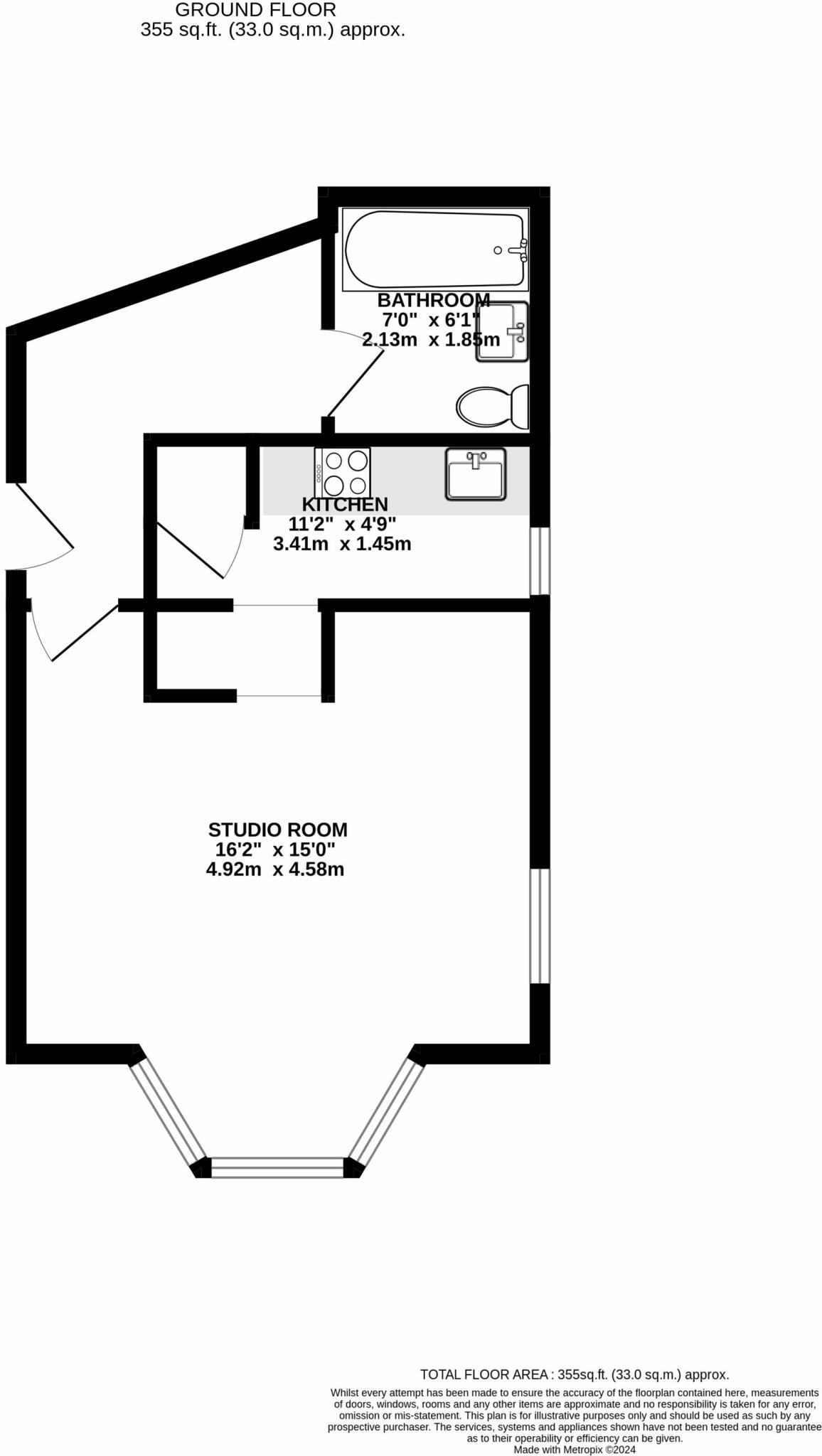
This property is a studio apartment located on St. Peters Road in South Croydon, Greater London. The listing emphasizes its recently refurbished state, evident in the modern kitchen and bathroom, as shown in the accompanying photographs. The apartment features a contemporary design with a light and airy feel. The location is desirable due to its proximity to South Croydon station, providing easy access to central London and other areas. Furthermore, several well-regarded schools are within walking distance, making it potentially attractive to families or those seeking accommodation in a family-friendly area. It is important to note that the apartment lacks outdoor space. The absence of detailed square footage information for comparative properties in the area limits a precise valuation assessment. The listing price of £200,000 is in line with similar properties in the locality given its proximity to amenities and transport links. However, it’s important to consider the relatively small size of the apartment when evaluating its overall value. A full survey and inspection would be advisable for any potential buyer to assess the property’s overall structural soundness.
Therefore, we give this property 5 / 10. *Disclaimer: This is our option and does constitute a recommendation or financial advice. Do your own research. *
- Price
- 7
- Condition
- 8
- Location
- 7
- Land
- 1
- Bedrooms
- 0
- Bathrooms
- 1
- Sqft (est)
- 355.21
The heatmap indicates the level of crime in the area. The color of the heatmap indicates the crime severity and recency.
Metrics Year-on-Year
- Average area value
- 428,077.00 £Increased by 11.32 %
- Est sale value
- 251,488.68 £Increased by 124.76 %
- Average area rental value
- 1,801.00 £/moIncreased by 9.82 %
- Est letting value
- 710.42 £/moIncreased by 100.00 %
- Est rental Yield
- 5.05 %Decreased by 1.37 %
- Crime Rate
- 6.00 %Unchanged by 0.00 %
Agent Activity
Move Revolution created the listing.
Nearby Schools
| Name | Type | Ofsted | Distance |
|---|---|---|---|
| Elmhurst School For Boys | Other Independent School | 0.31 KM | |
| Heathfield Academy | Academy Sponsor Led | Outstanding | 0.38 KM |
| Serenity School | Other Independent Special School | Good | 0.47 KM |
| Cressey College | Other Independent Special School | Good | 0.48 KM |
| Croydon Metropolitan College | Other Independent School | Good | 0.54 KM |
Images
Nearby Streets
| Name | Average Price | Average Sqft | Distance |
|---|---|---|---|
| Dean Road | £ 412,500 | 0 | 0.00 KM |
| Innes Yard | £ 0 | 0 | 0.00 KM |
| Queen Street | £ 375,000 | 0 | 0.00 KM |
| Robert Street | £ 0 | 0 | 0.00 KM |
| Pump Pail North | £ 0 | 0 | 0.00 KM |
Nearby Transport
| Name | NLC | TLC | Distance |
|---|---|---|---|
| South Croydon | 5410 | SCY | 0.21 KM |
| East Croydon | 5355 | ECR | 1.28 KM |
| Sanderstead | 5433 | SNR | 1.77 KM |
| West Croydon | 5411 | WCY | 1.80 KM |
| Purley Oaks | 5430 | PUO | 1.96 KM |
Nearby Listings
| Address | Price | Type | Score | Distance |
|---|---|---|---|---|
| St. Peters Road, Croydon, CR0 | £ 200,000 | BUY | 5 / 10 | 0.00 KM |
| St Peters Road, Croydon, Surrey, CR0 | £ 280,000 | BUY | 5 / 10 | 0.03 KM |
| St. Peters Road, Croydon | £ 265,000 | BUY | 5 / 10 | 0.03 KM |
| St. Peters Road, South Croydon, Surrey, CR0 | £ 300,000 | BUY | Unknown | 0.03 KM |
| St. Peters Road, Croydon, CR0 | £ 180,000 | BUY | 5 / 10 | 0.03 KM |
Nearby Properties
| Address | Price | Distance |
|---|---|---|
| 8 Dean Road | £ 520,000 | 0.09 KM |
| 1 Dean Road | £ 365,000 | 0.09 KM |
| Sandyford | £ 628,500 | 0.09 KM |
| 7 Dean Road | £ 575,250 | 0.09 KM |
| 4a Dean Road | £ 265,000 | 0.09 KM |