Padstow Road, Childwall, Liverpool, L16
By Move Residential
£ 325,000
Reviews
3 out of 5 stars
Move Residential says ..
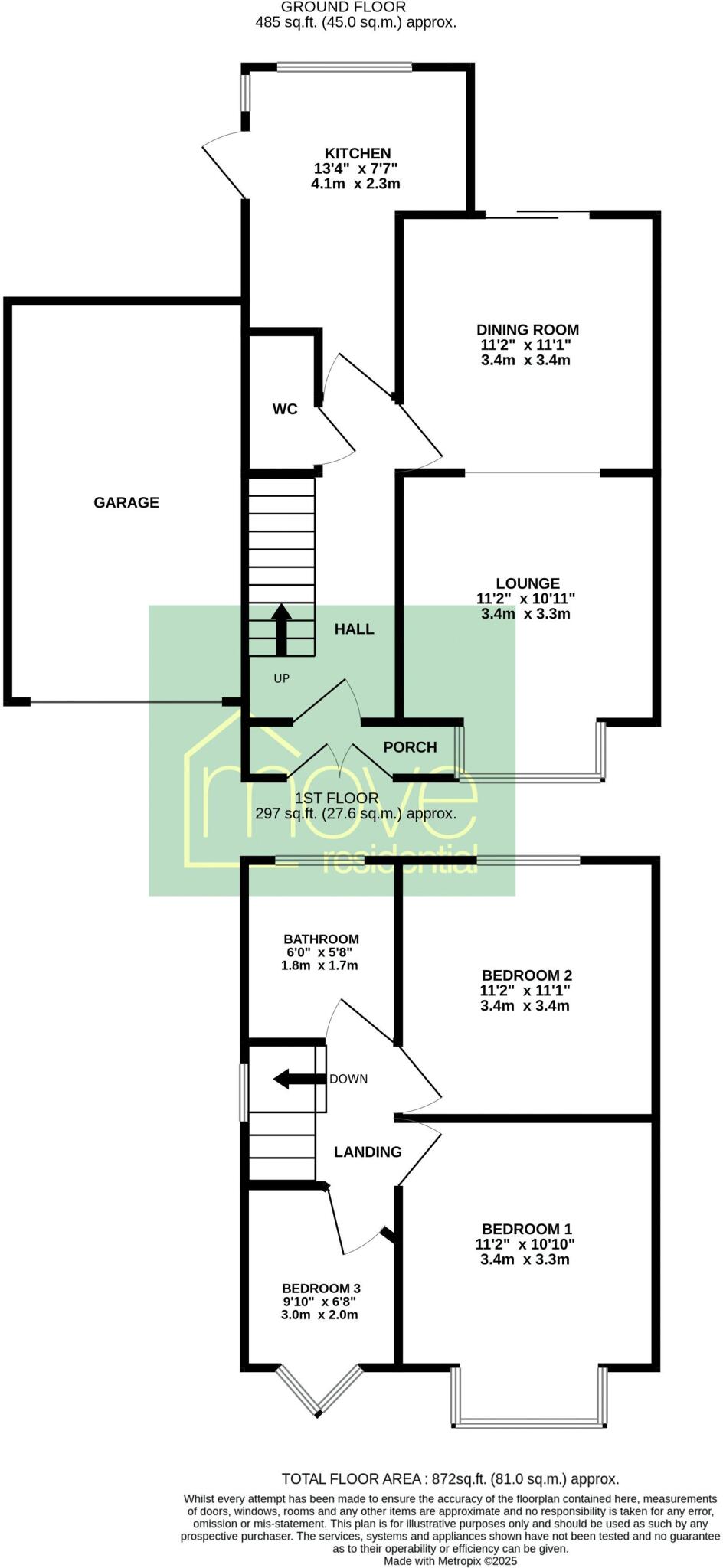
Offered for sale with no onward chain courtesy of appointed agents Move Residential, is this fabulous three bedroom semi detached property, enjoying a prime location in the sought-after suburb of Childwall, L16. Having been extended, this home boasts spacious and beautifully presented living prop...
Property Oracle says ..
This property is a 3-bedroom semi-detached house located on Padstow Road in Childwall, Liverpool. The list price is £325,000, and the property has 698.58 sqft of living space and a 484.38 sqft plot. The average price for similar properties in the area is £314,394, with an average price per sqft of £308. The property appears to be in good condition, with a recently updated kitchen and a modern bathroom. It also benefits from a garden. The location is convenient, with nearby schools and transportation links. While the price is slightly above the average for the area, the property’s condition and features make it a reasonable price.
Therefore, we give this property 7 / 10. *Disclaimer: This is our option and does constitute a recommendation or financial advice. Do your own research. *
- Price
- 7
- Condition
- 8
- Location
- 8
- Land
- 7
- Bedrooms
- 3
- Bathrooms
- 1
- Sqft (est)
- 698.58
- Lot (est)
- 484.38
The heatmap indicates the level of crime in the area. The color of the heatmap indicates the crime severity and recency.
Metrics Year-on-Year
- Average area value
- 249,444.00 £Decreased by 24.88 %
- Est sale value
- 186,520.86 £Decreased by 7.61 %
- Average area rental value
- 1,075.00 £/moDecreased by 12.24 %
- Est letting value
- 698.58 £/moUnchanged by 0.00 %
- Est rental Yield
- 5.17 %Increased by 16.70 %
- Crime Rate
- 5.00 %Unchanged by 0.00 %
Agent Activity
Move Residential created the listing.
Nearby Schools
| Name | Type | Ofsted | Distance |
|---|---|---|---|
| Formerly Childwall And Woolton Children Centre | Children's Centre Linked Site | 0.36 KM | |
| Rudston Primary School | Community School | Good | 0.37 KM |
| Childwall Sports & Science Academy | Academy Sponsor Led | Requires improvement | 0.62 KM |
| Christ The King Catholic Primary School | Voluntary Aided School | Good | 0.79 KM |
| King David High School | Voluntary Aided School | Outstanding | 0.83 KM |
Images
Nearby Streets
| Name | Average Price | Average Sqft | Distance |
|---|---|---|---|
| Repton Road | £ 350,000 | 0 | 0.00 KM |
| Rocky Lane | £ 348,990 | 0 | 0.00 KM |
| Hilltop Road | £ 0 | 0 | 0.00 KM |
| Rosebank Road | £ 0 | 0 | 0.00 KM |
| Yew Bank Road | £ 377,500 | 0 | 0.00 KM |
Nearby Transport
| Name | NLC | TLC | Distance |
|---|---|---|---|
| Broad Green | 2240 | BGE | 0.74 KM |
| Wavertree Technology Park | 8589 | WAV | 3.25 KM |
| Mossley Hill | 2171 | MSH | 3.32 KM |
| West Allerton | 2266 | WSA | 3.71 KM |
| Roby | 2261 | ROB | 4.36 KM |
Nearby Listings
| Address | Price | Type | Score | Distance |
|---|---|---|---|---|
| Padstow Road, Childwall, Liverpool, L16 | £ 325,000 | BUY | 7 / 10 | 0.00 KM |
| Padstow Road, Liverpool, Merseyside, L16 | £ 315,000 | BUY | 6 / 10 | 0.01 KM |
| Padstow Road, Childwall, Liverpool, L16 | £ 380,000 | BUY | 7 / 10 | 0.05 KM |
| Paignton Road, Childwall, Liverpool, L16 | £ 425,000 | BUY | 7 / 10 | 0.12 KM |
| Okehampton Road, Liverpool, Merseyside, L16 | £ 420,000 | BUY | 6 / 10 | 0.13 KM |
Nearby Properties
| Address | Price | Distance |
|---|---|---|
| 9 Padstow Road | £ 250,000 | 0.04 KM |
| 49 Padstow Road | £ 242,000 | 0.04 KM |
| 15 Padstow Road | £ 187,500 | 0.04 KM |
| 25 Padstow Road | £ 171,000 | 0.04 KM |
| 47 Padstow Road | £ 129,000 | 0.04 KM |