Steve England says ..
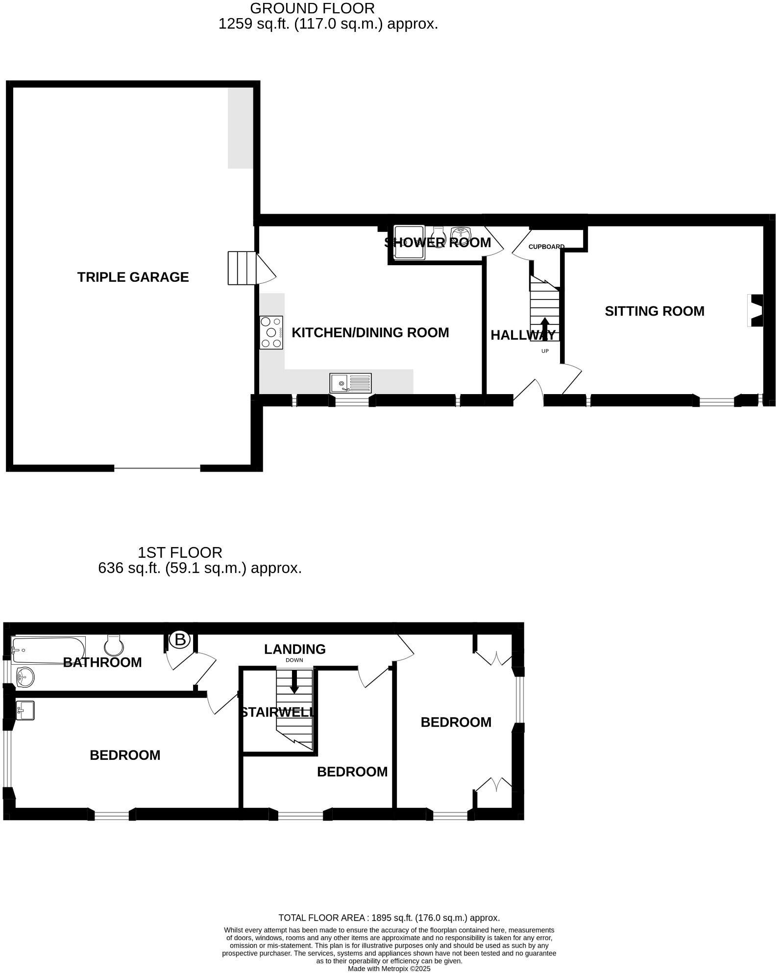
Delightful well-presented 3 bedroom character barn conversion with attached triple garage/workshop, situated in a quiet rural position on the edge of a sought-after village, just 3.5 miles from Tavistock town centre. Internal Viewing Strongly Recommended.
Property Oracle says ..
Therefore, we give this property 7 / 10. *Disclaimer: This is our option and does constitute a recommendation or financial advice. Do your own research. *
- Price
- 7
- Condition
- 8
- Location
- 7
- Land
- 7
- Bedrooms
- 3
- Bathrooms
- 2
- Sqft (est)
- 1,895.00
The heatmap indicates the level of crime in the area. The color of the heatmap indicates the crime severity and recency.
Metrics Year-on-Year
- Average area value
- 293,023.00 £Increased by 0.76 %
- Est sale value
- 545,760.00 £Decreased by 20.00 %
- Average area rental value
- 1,170.00 £/moIncreased by 31.61 %
- Est letting value
- 1,895.00 £/moUnchanged by 0.00 %
- Est rental Yield
- 4.79 %Increased by 30.52 %
- Crime Rate
- 0.00 %
from 290,805.00 £
from 682,200.00 £
from 889.00 £/mo
from 1,895.00 £/mo
from 3.67 %
from 0.00 %
Agent Activity
Steve England created the listing.
Nearby Schools
| Name | Type | Ofsted | Distance |
|---|---|---|---|
| Lamerton Church Of England Voluntary Controlled Primary School | Voluntary Controlled School | Good | 0.47 KM |
| Gulworthy Primary School | Community School | Outstanding | 4.11 KM |
| Tor View School | Other Independent Special School | Good | 4.46 KM |
| Tavistock College | Academy Converter | 4.75 KM | |
| Tavistock Primary & Nursery School | Foundation School | Good | 4.81 KM |
Images
Nearby Streets
| Name | Average Price | Average Sqft | Distance |
|---|---|---|---|
| Hillside Cottages | £ 0 | 0 | 0.00 KM |
| Trevenn Cottages | £ 375,000 | 0 | 0.00 KM |
| Trevenn Barns | £ 0 | 0 | 0.00 KM |
| Court Barton Mews | £ 0 | 0 | 0.00 KM |
| Orchard Court | £ 1,250,000 | 0 | 0.00 KM |
Nearby Transport
| Name | NLC | TLC | Distance |
|---|---|---|---|
| Gunnislake | 3563 | GSL | 7.11 KM |
| Calstock | 3562 | CSK | 8.49 KM |
| Bere Alston | 3549 | BAS | 9.58 KM |
Nearby Listings
| Address | Price | Type | Score | Distance |
|---|---|---|---|---|
| Lamerton, Devon, PL19 | £ 595,000 | BUY | 7 / 10 | 0.00 KM |
| Lamerton, Tavistock | £ 390,000 | BUY | Unknown | 0.07 KM |
| Lamerton, Tavistock, Devon | £ 350,000 | BUY | 7 / 10 | 0.12 KM |
| Tavistock, Devon | £ 895,000 | BUY | 7 / 10 | 0.12 KM |
| Lamerton, Tavistock, Devon, PL19 | £ 525,000 | BUY | 7 / 10 | 0.12 KM |
Nearby Properties
| Address | Price | Distance |
|---|---|---|
| The Old Rectory | £ 880,000 | 0.36 KM |
| Church Cottage | £ 495,000 | 0.36 KM |
| Avenue Cottage | £ 415,000 | 0.36 KM |
| 24 Chestnut Terrace | £ 295,000 | 0.58 KM |
| 15 Chestnut Terrace | £ 185,000 | 0.58 KM |