Land at 2 Bridge Street, Oldham, Greater Manchester, OL1
By Auction House
£ 140,000
Reviews
2 out of 5 stars
Auction House says ..
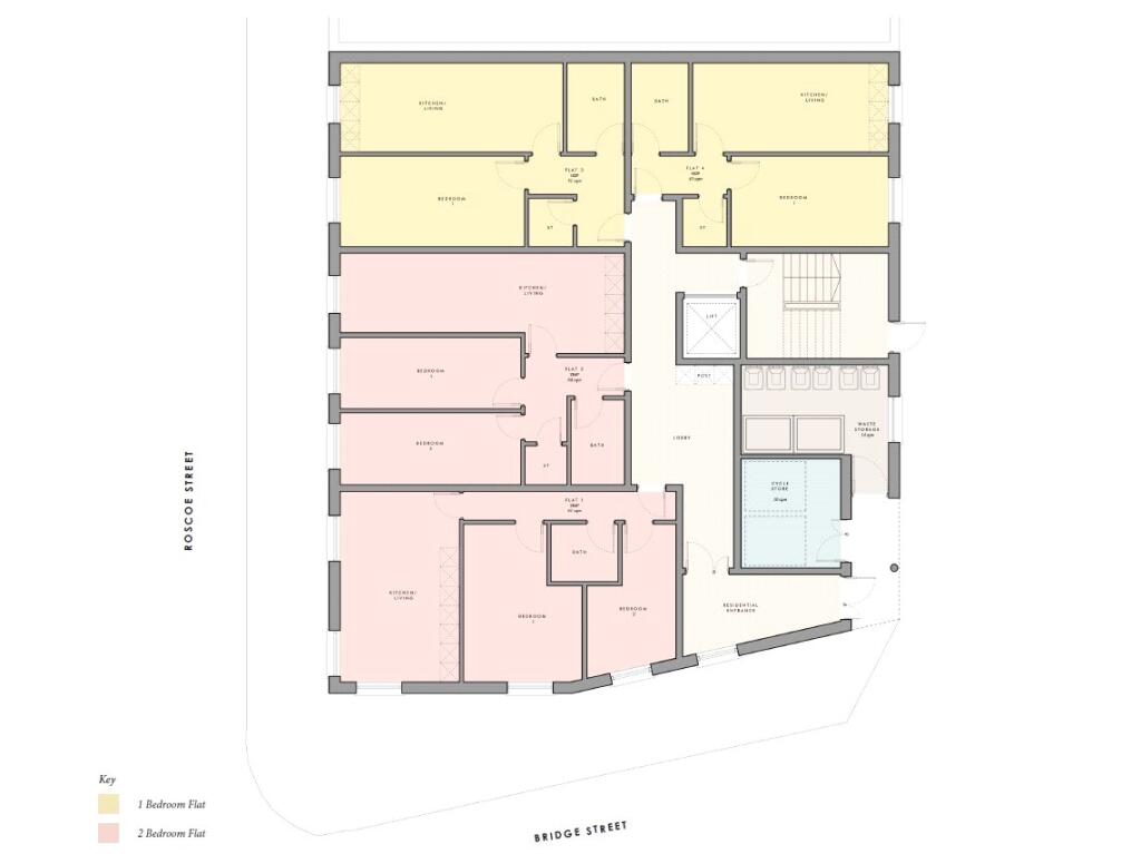
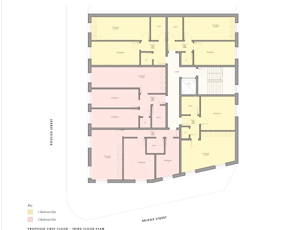
FOR SALE BY LIVE STREAM AUCTION ON TUESDAY 3RD FEBRUARY 2026 AT 12PM. *GUIDE PRICE £140,000+ Parcel of land with Planning Permission granted under reference: FUL/350819/23 for the development of 19 residential units (8 two-bed flats and 11 one-bed flats). Er...
Property Oracle says ..
This is a plot of land located on Bridge Street in Oldham. The listing is through Auction House. The land is currently vacant and requires significant clearing. Proposed plans show the development of flats. The location is near local amenities and schools. The asking price is £140,000.
Therefore, we give this property 4 / 10. *Disclaimer: This is our option and does constitute a recommendation or financial advice. Do your own research. *
- Price
- 7
- Condition
- 2
- Location
- 6
- Land
- 3
- Bedrooms
- 0
- Bathrooms
- 0
The heatmap indicates the level of crime in the area. The color of the heatmap indicates the crime severity and recency.
Metrics Year-on-Year
- Average area value
- 524,714.00 £Increased by 15.54 %
- Average area rental value
- 1,989.00 £/moIncreased by 4.74 %
- Est rental Yield
- 4.55 %Decreased by 9.36 %
- Crime Rate
- 0.00 %
Agent Activity
Auction House created the listing.
Nearby Schools
| Name | Type | Ofsted | Distance |
|---|---|---|---|
| Hollinwood Academy | Academy Special Sponsor Led | Outstanding | 0.43 KM |
| Greenhill Academy | Academy Converter | Good | 0.45 KM |
| The Blue Coat Cofe School | Academy Converter | Outstanding | 0.58 KM |
| Holy Cross Ceva Primary School | Voluntary Aided School | Good | 0.71 KM |
| Beever Primary School | Community School | Requires improvement | 0.76 KM |
Images
Nearby Streets
| Name | Average Price | Average Sqft | Distance |
|---|---|---|---|
| Bridge Street | £ 0 | 0 | 0.00 KM |
| Bow Street | £ 0 | 0 | 0.00 KM |
| Waterloo Street | £ 85,000 | 0 | 0.00 KM |
| Marlborough Street | £ 0 | 0 | 0.00 KM |
| Rock Street | £ 80,000 | 0 | 0.00 KM |
Nearby Transport
| Name | NLC | TLC | Distance |
|---|---|---|---|
| Ashton-Under-Lyne | 2790 | AHN | 5.69 KM |
| Mills Hill (Manchester) | 2920 | MIH | 7.25 KM |
| Moston | 2973 | MSO | 7.36 KM |
| Guide Bridge | 2955 | GUI | 7.41 KM |
| Mossley (Manchester) | 2903 | MSL | 7.80 KM |
Nearby Listings
| Address | Price | Type | Score | Distance |
|---|---|---|---|---|
| Bridge Street, Oldham, Greater Manchester, OL1 | £ 190,000 | BUY | 4 / 10 | 0.00 KM |
| Land at 2 Bridge Street, Oldham, Greater Manchester, OL1 | £ 140,000 | BUY | 4 / 10 | 0.00 KM |
| Union Street, OLDHAM | £ 47,000 | BUY | 4 / 10 | 0.11 KM |
| Union Street, Oldham, Greater Manchester, OL1 | £ 42,000 | BUY | 4 / 10 | 0.11 KM |
| Union Street, Oldham, Greater Manchester, OL1 | £ 62,000 | BUY | 4 / 10 | 0.11 KM |
Nearby Properties
| Address | Price | Distance |
|---|---|---|
| 18 Waterloo Street | £ 264,000 | 0.21 KM |
| 6 Waterloo Street | £ 56,500 | 0.23 KM |
| 139 Yorkshire Street | £ 49,000 | 0.23 KM |
| 141 Yorkshire Street | £ 57,500 | 0.23 KM |
| 17 Queen Street | £ 46,000 | 0.33 KM |