Valerian Street, Lyde Green, Bristol, BS16 7JF
By Hunters
£ 320,000
Reviews
3 out of 5 stars
Hunters says ..
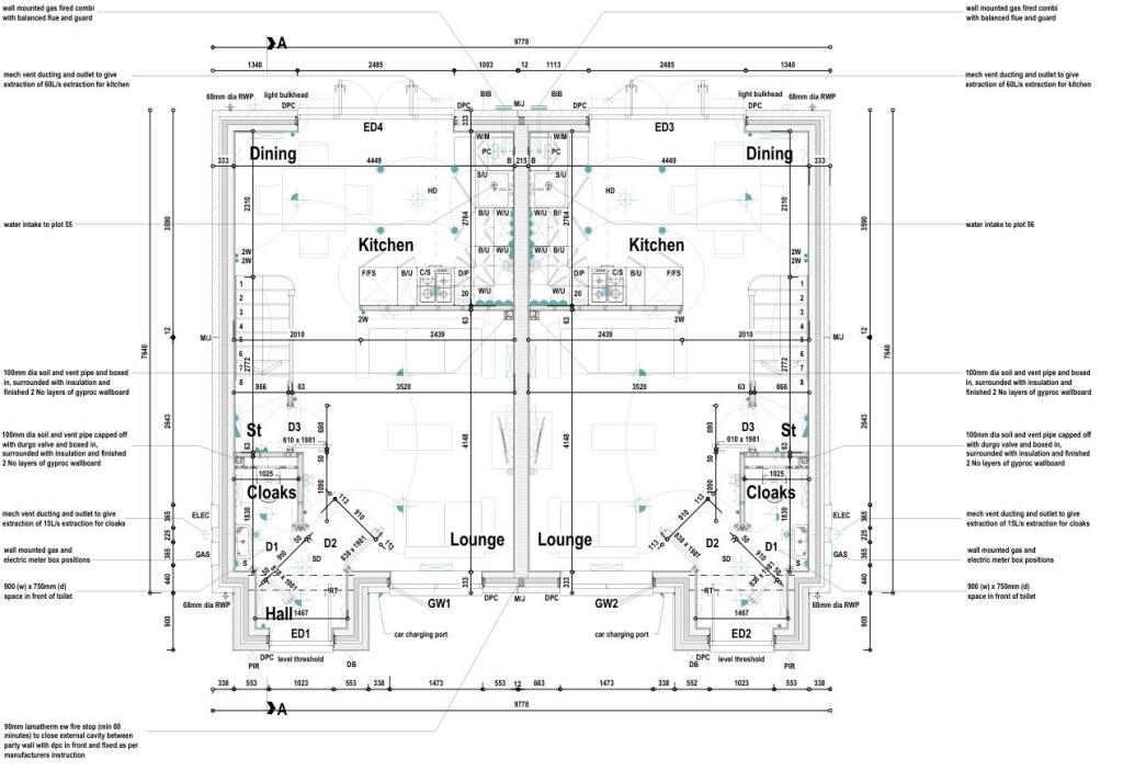
BRAND NEW semi-detached property within a small development in Lyde Green. Choice of 2 properties available of this design, comprising: open plan living downstairs to include lounge area, stylish kitchen/dining area, modern bathroom, Rear garden & off street parking. Register your interest today!
Property Oracle says ..
This is a modern, semi-detached property located in a residential area. The property is in good condition and appears to be well-maintained. It is located close to schools and transportation links. The property is reasonably priced compared to other properties in the area.
Therefore, we give this property 7 / 10. *Disclaimer: This is our option and does constitute a recommendation or financial advice. Do your own research. *
- Price
- 7
- Condition
- 9
- Location
- 7
- Land
- 5
- Bedrooms
- 2
- Bathrooms
- 1
- Sqft (est)
- 101.57
The heatmap indicates the level of crime in the area. The color of the heatmap indicates the crime severity and recency.
Metrics Year-on-Year
- Average area value
- 399,497.00 £Decreased by 1.14 %
- Est sale value
- 45,198.65 £Increased by 19.62 %
- Average area rental value
- 1,402.00 £/moDecreased by 1.61 %
- Est letting value
- 101.57 £/moUnchanged by 0.00 %
- Est rental Yield
- 4.21 %Decreased by 0.47 %
- Crime Rate
- 25.00 %Unchanged by 0.00 %
Agent Activity
Hunters created the listing.
Nearby Schools
| Name | Type | Ofsted | Distance |
|---|---|---|---|
| Lyde Green Primary School | Academy Sponsor Led | Good | 0.32 KM |
| Emersons Green Primary School | Community School | Good | 1.67 KM |
| Mangotsfield Church Of England Voluntary Controlled Primary School | Voluntary Controlled School | Outstanding | 1.73 KM |
| Blackhorse Primary School | Community School | Good | 1.77 KM |
| Barley Close Community Primary School | Community School | Good | 2.42 KM |
Images
Nearby Streets
| Name | Average Price | Average Sqft | Distance |
|---|---|---|---|
| Marigold Close | £ 0 | 0 | 0.00 KM |
| Oakwood Drive | £ 0 | 0 | 0.00 KM |
| Lobelia Road | £ 300,000 | 0 | 0.00 KM |
| Feynman Way (North) | £ 0 | 0 | 0.00 KM |
| Angelica Drive | £ 0 | 0 | 0.00 KM |
Nearby Transport
| Name | NLC | TLC | Distance |
|---|---|---|---|
| Yate | 3380 | YAE | 6.12 KM |
| Bristol Parkway | 3230 | BPW | 8.07 KM |
| Keynsham | 3237 | KYN | 9.59 KM |
Nearby Listings
| Address | Price | Type | Score | Distance |
|---|---|---|---|---|
| Valerian Street, Lyde Green, Bristol, BS16 7JF | £ 395,000 | BUY | 7 / 10 | 0.00 KM |
| Valerian Street, Lyde Green, Bristol, BS16 7JF | £ 320,000 | BUY | 7 / 10 | 0.00 KM |
| Valerian Street, Lyde Green, Bristol, BS16 7JF | £ 375,000 | BUY | 7 / 10 | 0.00 KM |
| Valerian Street, BRISTOL | £ 375,000 | BUY | 7 / 10 | 0.08 KM |
| Cherry Banks, Lyde Green, Bristol, BS16 7HZ | £ 450,000 | BUY | Unknown | 0.09 KM |
Nearby Properties
| Address | Price | Distance |
|---|---|---|
| 17 Valerian Street | £ 358,000 | 0.10 KM |
| 173 Willowherb Road | £ 322,500 | 0.15 KM |
| 231 Willowherb Road | £ 385,000 | 0.15 KM |
| 207 Willowherb Road | £ 355,000 | 0.15 KM |
| 161 Willowherb Road | £ 290,000 | 0.15 KM |