Vincent Shaw says ..
A modern well presented first floor apartment situated on a popular residential road in the heart of the Popular 'Romsey Town' and the diverse amenities located on the nearby Mill Road. The property is within walking distance of the railway station and viewing is recommended.
Property Oracle says ..
Therefore, we give this property 6 / 10. *Disclaimer: This is our option and does constitute a recommendation or financial advice. Do your own research. *
- Price
- 8
- Condition
- 7
- Location
- 8
- Land
- 2
- Bedrooms
- 1
- Bathrooms
- 1
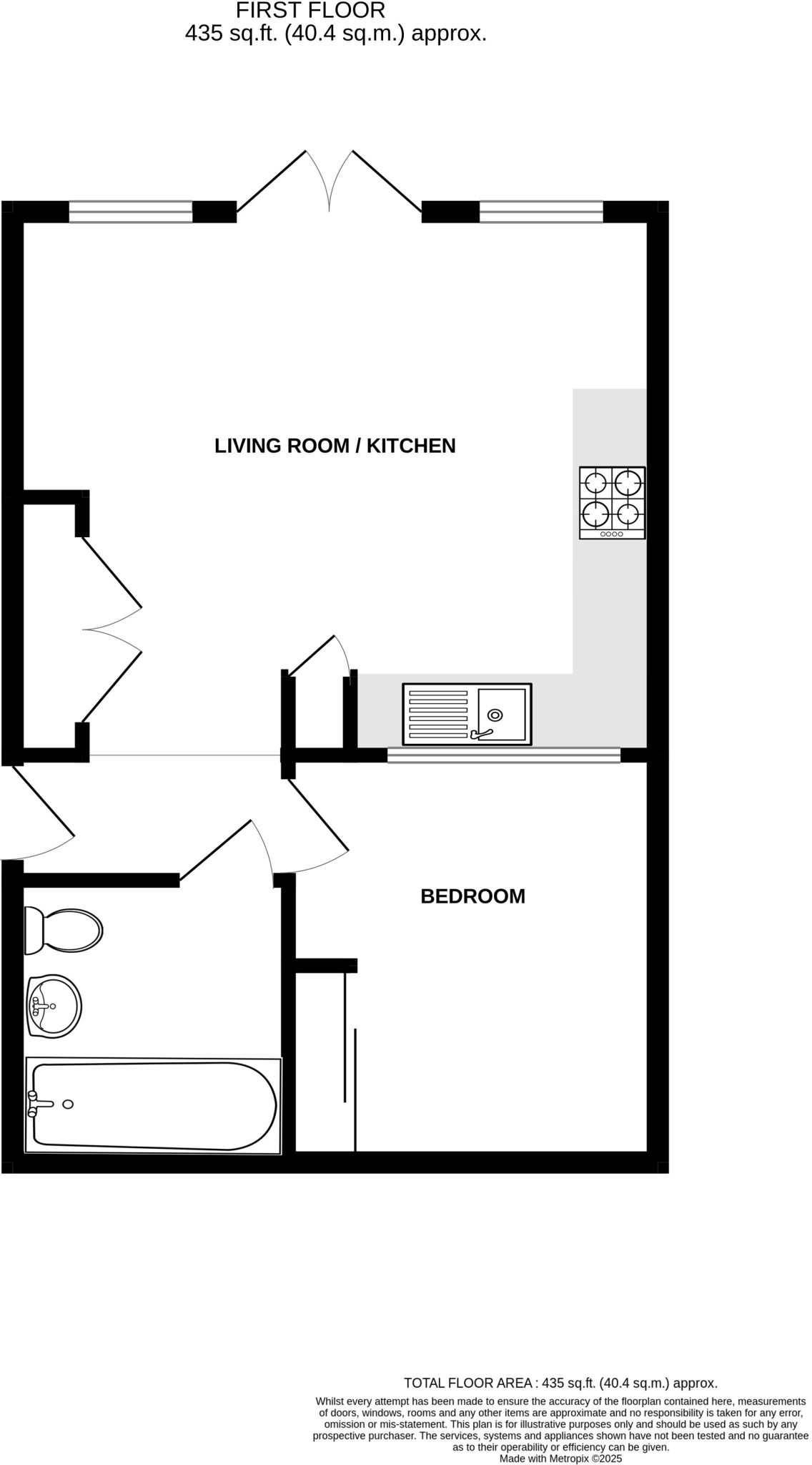
- Sqft (est)
- 435.00
The heatmap indicates the level of crime in the area. The color of the heatmap indicates the crime severity and recency.
Metrics Year-on-Year
- Average area value
- 434,999.00 £Decreased by 13.09 %
- Est sale value
- 308,415.00 £Increased by 35.05 %
- Average area rental value
- 1,897.00 £/moIncreased by 9.40 %
- Est letting value
- 1,305.00 £/moIncreased by 200.00 %
- Est rental Yield
- 5.23 %Increased by 25.72 %
- Crime Rate
- 7.00 %Unchanged by 0.00 %
from 500,504.00 £
from 228,375.00 £
from 1,734.00 £/mo
from 435.00 £/mo
from 4.16 %
from 7.00 %
Agent Activity
Vincent Shaw created the listing.
Nearby Schools
| Name | Type | Ofsted | Distance |
|---|---|---|---|
| Ridgefield Primary School | Foundation School | Good | 1.11 KM |
| Coleridge Community College | Academy Converter | Good | 1.11 KM |
| Brunswick Nursery School | Local Authority Nursery School | Outstanding | 1.15 KM |
| St. Andrew'S College Cambridge | Other Independent School | 1.22 KM | |
| St Matthew'S Primary School | Community School | Good | 1.24 KM |
Images
Nearby Streets
| Name | Average Price | Average Sqft | Distance |
|---|---|---|---|
| Swann's Terrace | £ 0 | 0 | 0.00 KM |
| Eagle Street | £ 397,500 | 0 | 0.00 KM |
| Hazell Street | £ 0 | 0 | 0.00 KM |
| Millcroft Court | £ 165,000 | 0 | 0.00 KM |
| Angus Close | £ 0 | 0 | 0.00 KM |
Nearby Transport
| Name | NLC | TLC | Distance |
|---|---|---|---|
| Cambridge | 7022 | CBG | 0.73 KM |
| Cambridge North | 8001 | CMB | 3.45 KM |
| Shelford (Cambs) | 7043 | SED | 5.44 KM |
| Waterbeach | 7079 | WBC | 9.34 KM |
Nearby Listings
| Address | Price | Type | Score | Distance |
|---|---|---|---|---|
| Stockwell Street, Cambridge | £ 250,000 | BUY | 6 / 10 | 0.00 KM |
| Stockwell Street, Cambridge | £ 575,000 | BUY | 8 / 10 | 0.07 KM |
| Cockburn Street, Cambridge | £ 610,000 | BUY | 8 / 10 | 0.08 KM |
| Mill Road, Cambridge | £ 500,000 | BUY | 7 / 10 | 0.09 KM |
| Argyle Street, Cambridge | £ 675,000 | BUY | 6 / 10 | 0.10 KM |
Nearby Properties
| Address | Price | Distance |
|---|---|---|
| 184b Mill Road | £ 52,950 | 0.03 KM |
| 160a Mill Road | £ 499,999 | 0.04 KM |
| 158a Mill Road | £ 158,000 | 0.04 KM |
| 3 Campbell Street | £ 532,500 | 0.06 KM |
| 1a Campbell Street | £ 260,000 | 0.06 KM |