GE
Raglan House
By Get Living
£ 2,555
Get Living says ..
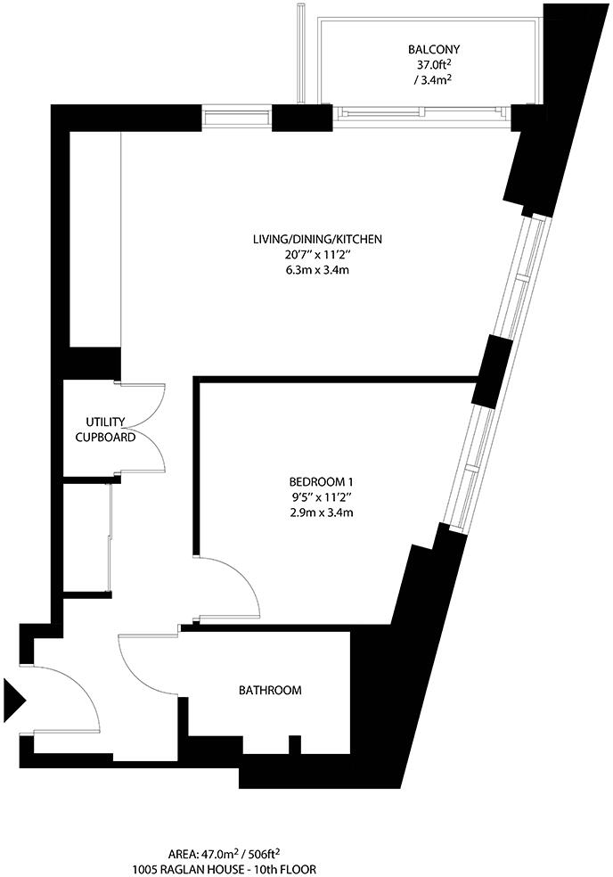
A one bedroom, one bathroom home with a private balcony, offering showstopper views of the capital in a Zone 1 location. Within walking distance of the South Bank, London Bridge and Borough and a vibrant community right on the doorstep.
- Bedrooms
- 1
- Bathrooms
- 1
The heatmap indicates the level of crime in the area. The color of the heatmap indicates the crime severity and recency.
Metrics Year-on-Year
- Average area value
- 386,667.00 £Decreased by 34.47 %
- Average area rental value
- 2,374.00 £/moDecreased by 5.42 %
- Est rental Yield
- 7.37 %Increased by 44.51 %
- Crime Rate
- 21.00 %Unchanged by 0.00 %
from 590,020.00 £
from 2,510.00 £/mo
from 5.10 %
from 21.00 %
Agent Activity
Get Living created the listing.
Nearby Schools
| Name | Type | Ofsted | Distance |
|---|---|---|---|
| London College Of Printing & Distributive Trades | Miscellaneous | 0.35 KM | |
| London South Bank University | Higher Education Institutions | Good | 0.59 KM |
| Crampton Primary | Community School | Outstanding | 0.59 KM |
| Victory Primary School And Children'S Centre | Children's Centre | 0.60 KM | |
| Victory Primary School | Community School | Good | 0.60 KM |
Images
Nearby Streets
| Name | Average Price | Average Sqft | Distance |
|---|---|---|---|
| A3 | £ 0 | 0 | 0.00 KM |
| Elephant and Castle | £ 0 | 0 | 0.00 KM |
| Newington Causeway | £ 0 | 0 | 0.00 KM |
| St. Gabriel Walk | £ 0 | 0 | 0.00 KM |
| Pastor Street | £ 0 | 0 | 0.00 KM |
Nearby Transport
| Name | NLC | TLC | Distance |
|---|---|---|---|
| Elephant And Castle | 5246 | EPH | 0.09 KM |
| Waterloo East | 5158 | WAE | 1.61 KM |
| London Bridge | 5148 | LBG | 1.77 KM |
| Waterloo | 5598 | WAT | 1.93 KM |
| Blackfriars | 5112 | BFR | 2.02 KM |
Nearby Listings
| Address | Price | Type | Score | Distance |
|---|---|---|---|---|
| Raglan House | £ 2,555 | RENT | Unknown | 0.00 KM |
| Mawes House | £ 2,995 | RENT | Unknown | 0.00 KM |
| Raglan House | £ 2,540 | RENT | Unknown | 0.00 KM |
| Raglan House | £ 3,250 | RENT | Unknown | 0.00 KM |
| Tantallon House | £ 2,595 | RENT | Unknown | 0.00 KM |
Nearby Properties
| Address | Price | Distance |
|---|---|---|
| 80 Rockingham Street | £ 177,500 | 0.23 KM |
| 60 Rockingham Street | £ 195,000 | 0.23 KM |
| 62 Rockingham Street | £ 249,000 | 0.23 KM |
| 56 Rockingham Street | £ 227,000 | 0.23 KM |
| 78 Rockingham Street | £ 421,000 | 0.23 KM |