Manor Road, Reigate
By Ralph James Estate Agents
£ 2,500,000
Reviews
3 out of 5 stars
Ralph James Estate Agents says ..
Set behind a private gated driveway, this attractive detached home welcomes you with a sense of space and privacy. Built in 1993 by Berkeley Homes, well known for their executive style properties, the same family have had the privilege of owning the property since it was built. Inside, t...
Property Oracle says ..
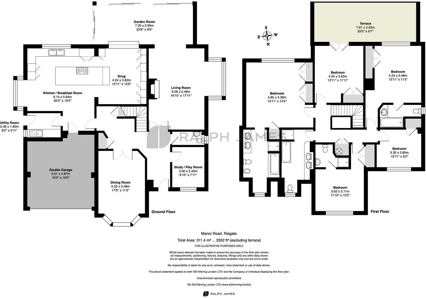
This is a substantial detached property located on Manor Road, a sought-after address in Reigate. The house features a modern kitchen and a large extension with sliding doors leading to a patio and expansive garden. The property has five bedrooms and four bathrooms, making it suitable for a large family. While the house has been updated, some areas, particularly the bathrooms, appear dated and may benefit from renovation. The location is convenient, with good access to transportation and schools. However, the asking price of £2,500,000 seems high compared to the average property price in the area.
Therefore, we give this property 7 / 10. *Disclaimer: This is our option and does constitute a recommendation or financial advice. Do your own research. *
- Price
- 5
- Condition
- 7
- Location
- 8
- Land
- 9
- Bedrooms
- 5
- Bathrooms
- 4
The heatmap indicates the level of crime in the area. The color of the heatmap indicates the crime severity and recency.
Metrics Year-on-Year
- Average area value
- 815,909.00 £Increased by 12.95 %
- Average area rental value
- 1,831.00 £/moIncreased by 12.12 %
- Est rental Yield
- 2.69 %Decreased by 0.74 %
- Crime Rate
- 1.00 %Unchanged by 0.00 %
Agent Activity
Ralph James Estate Agents created the listing.
Nearby Schools
| Name | Type | Ofsted | Distance |
|---|---|---|---|
| Micklefield School | Other Independent School | 0.91 KM | |
| Holmesdale Community Infant School | Academy Converter | 1.33 KM | |
| Reigate Priory Community Junior School | Community School | Outstanding | 1.38 KM |
| Reigate Steppingstones Sure Start Children'S Centre | Children's Centre Linked Site | 1.46 KM | |
| Reigate College | Academy 16-19 Converter | Outstanding | 1.47 KM |
Images
Nearby Streets
| Name | Average Price | Average Sqft | Distance |
|---|---|---|---|
| Manor Road | £ 0 | 0 | 0.00 KM |
| Coppice Lane | £ 0 | 0 | 0.00 KM |
| Evesham Road | £ 0 | 0 | 0.00 KM |
| Pilgrims Way | £ 1,450,000 | 0 | 0.00 KM |
| The Lane | £ 0 | 0 | 0.00 KM |
Nearby Transport
| Name | NLC | TLC | Distance |
|---|---|---|---|
| Reigate | 5480 | REI | 1.25 KM |
| Earlswood (Surrey) | 5414 | ELD | 5.23 KM |
| Redhill | 5478 | RDH | 5.43 KM |
| Kingswood | 5366 | KND | 5.59 KM |
| Tadworth | 5386 | TAD | 5.74 KM |
Nearby Listings
| Address | Price | Type | Score | Distance |
|---|---|---|---|---|
| Manor Road, Reigate | £ 2,500,000 | BUY | 7 / 10 | 0.00 KM |
| Albert Road North, Reigate, RH2 | £ 650,000 | BUY | 6 / 10 | 0.18 KM |
| Albert Road North, Reigate, RH2 | £ 375,000 | BUY | 6 / 10 | 0.21 KM |
| Manor Road, Reigate, Surrey, RH2 | £ 2,499,950 | BUY | 7 / 10 | 0.24 KM |
| Albert Road North, Reigate | £ 700,000 | BUY | 6 / 10 | 0.26 KM |
Nearby Properties
| Address | Price | Distance |
|---|---|---|
| 5 Manor Road | £ 1,820,000 | 0.09 KM |
| 11 Manor Road | £ 1,450,000 | 0.09 KM |
| 9 Manor Road | £ 725,000 | 0.09 KM |
| 12 Canons Close | £ 530,000 | 0.23 KM |
| 5 Canons Close | £ 250,000 | 0.23 KM |