Pettaugh Road, Stonham Aspal, Stowmarket
BU

Pettaugh Road, Stonham Aspal, Stowmarket

By Bucks Property Agents

£ 149,995

Reviews

3 out of 5 stars

Bucks Property Agents says ..

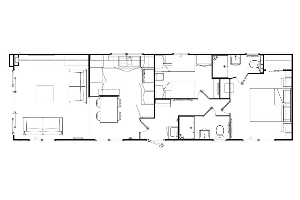
Nestled in the charming village of Stonham Aspal, this delightful park home on Pettaugh Road offers a perfect blend of comfort and convenience. With two well-proportioned bedrooms, including a master suite complete with an en-suite shower room, this property is ideal for those seeking a tranquil ...

Property Oracle says ..

Therefore, we give this property 6 / 10. *Disclaimer: This is our option and does constitute a recommendation or financial advice. Do your own research. *

Price
7
Condition
9
Location
7
Land
3
Bedrooms
2
Bathrooms
1

The heatmap indicates the level of crime in the area. The color of the heatmap indicates the crime severity and recency.

Metrics Year-on-Year

Average area value
233,333.00 £
Decreased by 24.27 %
from 308,116.00 £
Average area rental value
895.00 £/mo
Decreased by 2.61 %
from 919.00 £/mo
Est rental Yield
4.60 %
Increased by 28.49 %
from 3.58 %
Crime Rate
0.00 %
from 0.00 %

Agent Activity

  • Bucks Property Agents created the listing.

Nearby Schools

NameTypeOfstedDistance
Stonham Aspal Church Of England Voluntary Aided Primary SchoolVoluntary Aided SchoolGood2.29 KM
Debenham High SchoolAcademy Converter4.96 KM
High Suffolk Children'S CentreChildren's Centre5.00 KM
Sir Robert Hitcham Church Of England Voluntary Aided SchoolVoluntary Aided SchoolRequires improvement6.06 KM
Helmingham Primary School And NurseryAcademy Sponsor Led7.12 KM

Images

Plot-18-Regal-Harlington-Lodge-40-x-20,-2025-model Plot-18-Regal-Harlington-Lodge-40-x-20,-2025-model Plot-18-Regal-Harlington-Lodge-40-x-20,-2025-model Plot-18-Regal-Harlington-Lodge-40-x-20,-2025-model Plot-18-Regal-Harlington-Lodge-40-x-20,-2025-model Plot-18-Regal-Harlington-Lodge-40-x-20,-2025-model Plot-18-Regal-Harlington-Lodge-40-x-20,-2025-model Plot-18-Regal-Harlington-Lodge-40-x-20,-2025-model Plot-18-Regal-Harlington-Lodge-40-x-20,-2025-model Plot-18-Regal-Harlington-Lodge-40-x-20,-2025-model Plot-18-Regal-Harlington-Lodge-40-x-20,-2025-model Plot-18-Regal-Harlington-Lodge-40-x-20,-2025-model Plot-18-Regal-Harlington-Lodge-40-x-20,-2025-model Plot-18-Regal-Harlington-Lodge-40-x-20,-2025-model Plot-18-Regal-Harlington-Lodge-40-x-20,-2025-model Plot-18-Regal-Harlington-Lodge-40-x-20,-2025-model Plot-18-Regal-Harlington-Lodge-40-x-20,-2025-model Plot-18-Regal-Harlington-Lodge-40-x-20,-2025-model Plot-18-Regal-Harlington-Lodge-40-x-20,-2025-model Plot-18-Regal-Harlington-Lodge-40-x-20,-2025-model Plot-18-Regal-Harlington-Lodge-40-x-20,-2025-model Plot-18-Regal-Harlington-Lodge-40-x-20,-2025-model Plot-18-Regal-Harlington-Lodge-40-x-20,-2025-model Plot-18-Regal-Harlington-Lodge-40-x-20,-2025-model Plot-18-Regal-Harlington-Lodge-40-x-20,-2025-model Plot-18-Regal-Harlington-Lodge-40-x-20,-2025-model

Nearby Streets

NameAverage PriceAverage SqftDistance
Closed from 13/12/24 to 06/25, changed to private £ 000.00 KM
Proposed new FP from 07/25, not yet open £ 000.00 KM
Evergreen Close £ 000.00 KM

Nearby Listings

AddressPriceTypeScoreDistance
Pettaugh Road, Stonham Aspal, Stowmarket £ 149,995BUY6 / 100.00 KM
Pettaugh Road, Stonham Aspal, Stowmarket, IP14 £ 59,995BUY6 / 100.13 KM
Pettaugh Road, Stonham Aspal, Stowmarket £ 99,995BUY7 / 100.14 KM
Pettaugh Road, Stonham Aspal, Stowmarket, IP14 £ 129,995BUY7 / 100.15 KM
Pettaugh Road, Stonham Aspal, Stowmarket, IP14 £ 99,995BUY6 / 100.15 KM

Nearby Properties

AddressPriceDistance
Puddleduck Cottage £ 712,0000.32 KM
Manor Barn £ 312,5000.32 KM
The Willows £ 640,0000.35 KM
Cedar Lodge £ 350,0000.72 KM
Ponds Cottage £ 450,0001.33 KM