Chelford Road, Alderley Edge
By Andrew J Nowell
£ 2,250,000
Reviews
3 out of 5 stars
Andrew J Nowell says ..
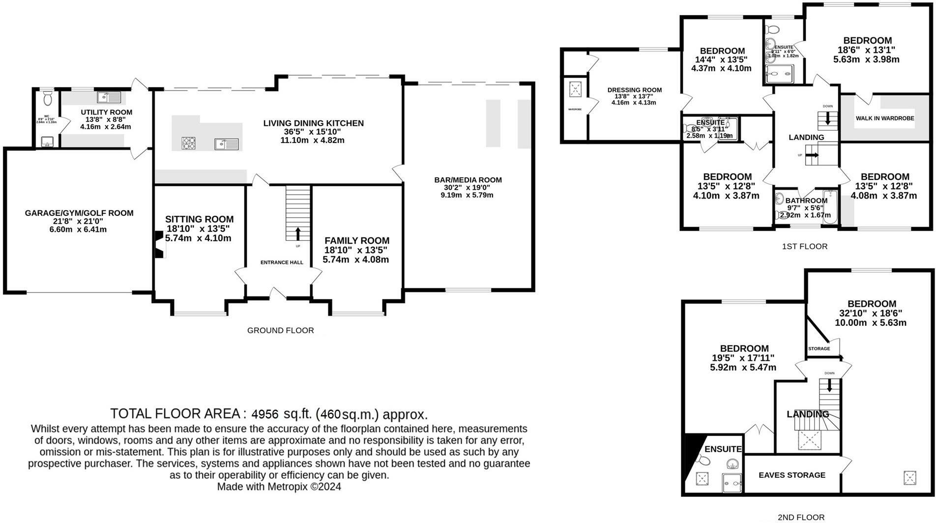
An impressive, detached family home situated in a charming semi-rural position within easy reach of Alderley Edge Village. A bespoke commission constructed in 2018, Kynnersley is an impressive family residence with accommodation extending to nearly 5,000 sq. ft set across three floors. <...
Property Oracle says ..
This property is a stunning, modern detached family home located in the sought-after area of Alderley Edge, Cheshire. Situated in a semi-rural setting, it offers a tranquil escape while remaining conveniently close to the village’s amenities. The house boasts a spacious layout with six bedrooms and four bathrooms, spread across three floors. The interior is contemporary and finished to a high standard with a luxurious feel. The photos highlight a large, open-plan kitchen and living area, ideal for modern family living. Additional features include what looks to be a home gym/golf simulator in the basement, and a significant garden with a hot tub. The absence of a definitive plot size makes it difficult to definitively assess the land area. However, photographic evidence suggests it’s considerably larger than average. Nearby schools are well-regarded and easily accessible, further enhancing the property’s appeal. The proximity to train stations and Manchester Airport provides excellent transport links. Given the high quality of the property, its impressive size, desirable location, and attractive outdoor space, it represents a significant investment opportunity. While the price is substantial, it appears reasonable considering comparable properties in Alderley Edge, although a detailed price-per-square-foot analysis is hindered by the lack of precise square footage data in the provided nearby listings.
Therefore, we give this property 7 / 10. *Disclaimer: This is our option and does constitute a recommendation or financial advice. Do your own research. *
- Price
- 7
- Condition
- 9
- Location
- 8
- Land
- 7
- Bedrooms
- 6
- Bathrooms
- 4
- Sqft (est)
- 4,951.40
The heatmap indicates the level of crime in the area. The color of the heatmap indicates the crime severity and recency.
Metrics Year-on-Year
- Average area value
- 607,999.00 £Decreased by 19.74 %
- Est sale value
- 2,109,296.40 £Decreased by 8.58 %
- Average area rental value
- 1,708.00 £/moDecreased by 59.57 %
- Est letting value
- 4,951.40 £/moDecreased by 50.00 %
- Est rental Yield
- 3.37 %Decreased by 49.63 %
- Crime Rate
- 32.00 %Unchanged by 0.00 %
Agent Activity
Andrew J Nowell created the listing.
Nearby Schools
| Name | Type | Ofsted | Distance |
|---|---|---|---|
| Lindow Community Primary School | Community School | Good | 2.37 KM |
| The David Lewis Centre | Special Post 16 Institution | Outstanding | 2.43 KM |
| David Lewis School | Non-maintained Special School | Good | 2.43 KM |
| The Ryleys School | Other Independent School | 2.54 KM | |
| Alderley Edge Community Primary School | Community School | Outstanding | 3.04 KM |
Images
Nearby Transport
| Name | NLC | TLC | Distance |
|---|---|---|---|
| Chelford (Cheshire) | 2764 | CEL | 2.99 KM |
| Alderley Edge | 2760 | ALD | 3.31 KM |
| Wilmslow | 2774 | WML | 5.73 KM |
| Styal | 2868 | SYA | 6.82 KM |
| Manchester Airport | 2961 | MIA | 8.21 KM |
Nearby Listings
| Address | Price | Type | Score | Distance |
|---|---|---|---|---|
| Chelford Road, Alderley Edge | £ 2,250,000 | BUY | 7 / 10 | 0.00 KM |
| Chelford Road, Alderley Edge, SK9 | £ 525,000 | BUY | Unknown | 0.27 KM |
| Chelford Road, Alderley Edge | £ 2,595,000 | BUY | 8 / 10 | 0.39 KM |
| Edge View Crescent, Merrymans Lane, Alderley Edge | £ 550,000 | BUY | 8 / 10 | 0.52 KM |
| Edge View Crescent, Merrymans Lane, Alderley Edge | £ 499,995 | BUY | 7 / 10 | 0.67 KM |
Nearby Properties
| Address | Price | Distance |
|---|---|---|
| Tall Trees | £ 875,000 | 0.18 KM |
| Dovedale | £ 830,000 | 0.18 KM |
| Beyond The Edge | £ 2,900,000 | 0.18 KM |
| Dane Villa Farm | £ 1,095,000 | 0.18 KM |
| Kynnersley | £ 685,000 | 0.18 KM |