CR
Welbeck Road, Sutton
By Cromwells Estate Agents
£ 425,000
Reviews
3 out of 5 stars
Cromwells Estate Agents says ..
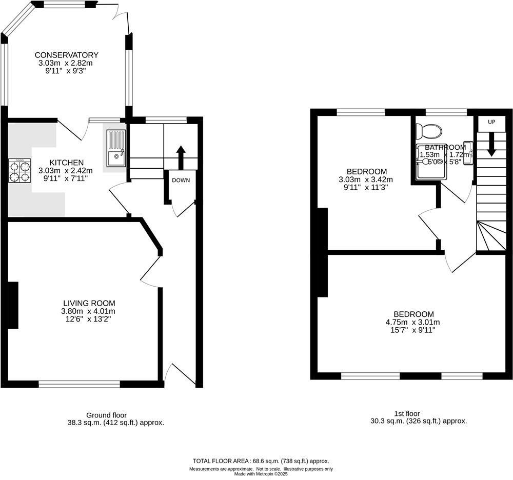
Cromwells Wallington are delighted to offer this well presented two bedroom terraced home, with off street parking and ideal for those who are looking for something ready to move straight into. The accommodation consists of a spacious reception room, a well equipped kitchen and conservatory with ...
Property Oracle says ..
Therefore, we give this property 7 / 10. *Disclaimer: This is our option and does constitute a recommendation or financial advice. Do your own research. *
- Price
- 6
- Condition
- 8
- Location
- 7
- Land
- 7
- Bedrooms
- 2
- Bathrooms
- 1
- Sqft (est)
- 738.40
The heatmap indicates the level of crime in the area. The color of the heatmap indicates the crime severity and recency.
Metrics Year-on-Year
- Average area value
- 406,111.00 £Decreased by 9.13 %
- Est sale value
- 342,617.60 £Decreased by 16.85 %
- Average area rental value
- 1,725.00 £/moDecreased by 7.11 %
- Est letting value
- 738.40 £/moDecreased by 50.00 %
- Est rental Yield
- 5.10 %Increased by 2.20 %
- Crime Rate
- 5.00 %Unchanged by 0.00 %
from 446,906.00 £
from 412,027.20 £
from 1,857.00 £/mo
from 1,476.80 £/mo
from 4.99 %
from 5.00 %
Agent Activity
Cromwells Estate Agents created the listing.
Nearby Schools
| Name | Type | Ofsted | Distance |
|---|---|---|---|
| Carshalton Boys Sports College | Academy Converter | Good | 0.45 KM |
| Greenshaw High School | Academy Converter | Good | 0.48 KM |
| Muschamp Children'S Centre | Children's Centre | 0.57 KM | |
| Tweeddale Primary School | Academy Converter | Good | 0.74 KM |
| Rushy Meadow Primary Academy | Academy Sponsor Led | Good | 0.77 KM |
Images
Nearby Streets
| Name | Average Price | Average Sqft | Distance |
|---|---|---|---|
| Paisley Road | £ 0 | 0 | 0.00 KM |
| Temple Way | £ 0 | 0 | 0.00 KM |
| Middleton Road | £ 0 | 0 | 0.00 KM |
| Florian Avenue | £ 0 | 0 | 0.00 KM |
| Bolton Drive | £ 231,667 | 0 | 0.00 KM |
Nearby Transport
| Name | NLC | TLC | Distance |
|---|---|---|---|
| Carshalton | 5405 | CSH | 1.71 KM |
| Sutton Common | 5436 | SUC | 1.94 KM |
| Sutton | 5385 | SUO | 2.41 KM |
| Carshalton Beeches | 5406 | CSB | 2.45 KM |
| St Helier | 5290 | SIH | 2.59 KM |
Nearby Listings
| Address | Price | Type | Score | Distance |
|---|---|---|---|---|
| Welbeck Road, Sutton | £ 425,000 | BUY | 7 / 10 | 0.00 KM |
| Welbeck Road, London | £ 450,000 | BUY | Unknown | 0.04 KM |
| Wrythe Lane, Carshalton | £ 450,000 | BUY | Unknown | 0.07 KM |
| Wrythe Lane, Carshalton | £ 500,000 | BUY | 6 / 10 | 0.08 KM |
| Westminster Road, Sutton | £ 550,000 | BUY | 8 / 10 | 0.15 KM |
Nearby Properties
| Address | Price | Distance |
|---|---|---|
| 42 Welbeck Road | £ 416,000 | 0.03 KM |
| 36 Welbeck Road | £ 240,000 | 0.03 KM |
| 32 Welbeck Road | £ 336,000 | 0.03 KM |
| 26 Welbeck Road | £ 325,000 | 0.03 KM |
| 28 Welbeck Road | £ 365,000 | 0.03 KM |