Chancellors says ..
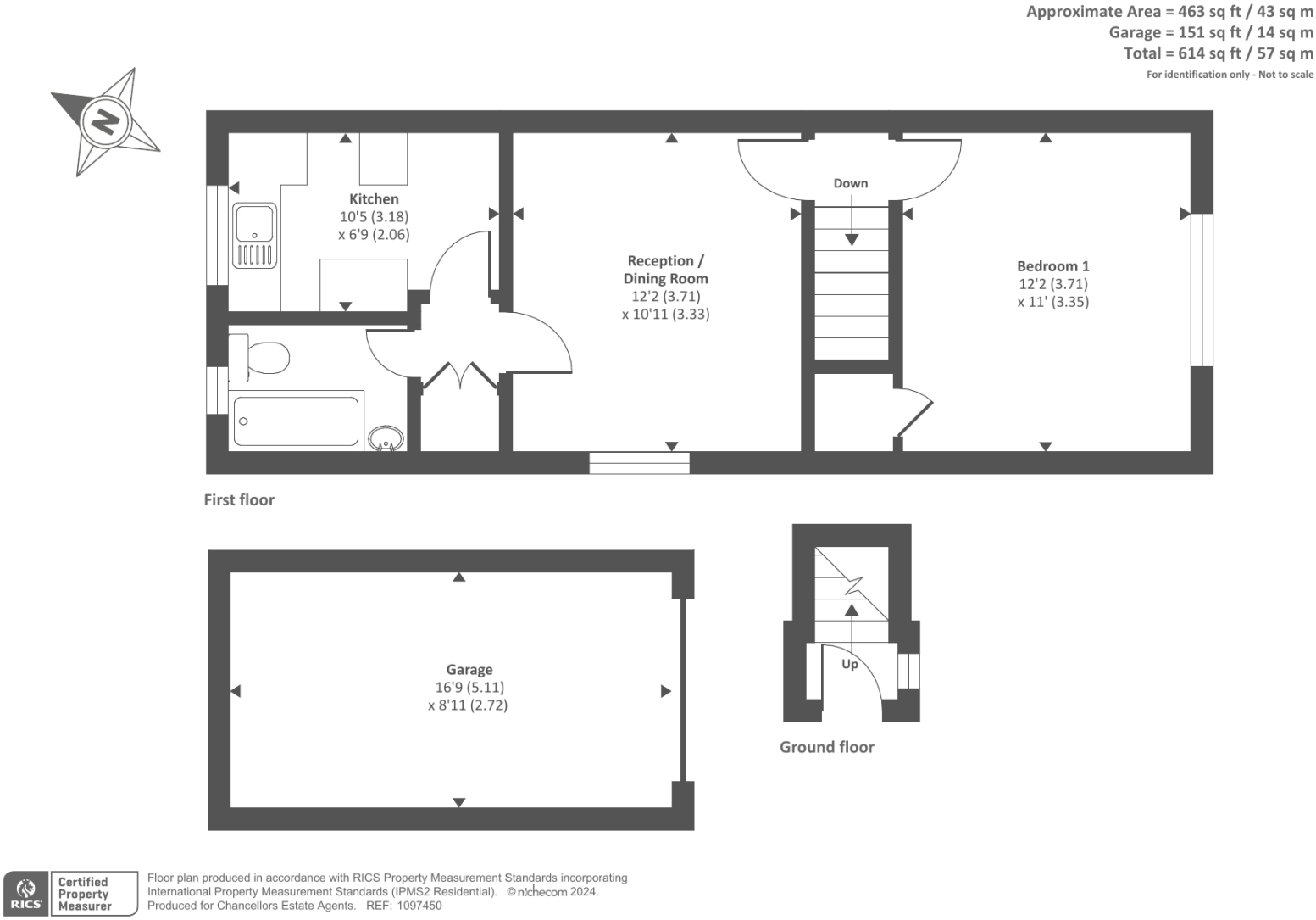
A well presented first floor apartment situated in Fleet town centre within a mile of Fleet mainline train station. Accommodation comprises, entrance hall, lounge/dining room, kitchen, double bedroom with built-in wardrobes and a refitted bathroom.
Property Oracle says ..
This property in Fleet, Hampshire, presents a mixed bag of potential and challenges. Located in Fleet Central, it benefits from a convenient position near the train station, schools, and local amenities. This contributes to a positive location rating. However, the property is currently in a state requiring extensive renovation. The kitchen and bathroom are outdated and need complete modernisation. All flooring is unfinished, needing replacement. While the structural integrity seems sound, prospective buyers should budget for a significant refurbishment. The current list price appears reasonable given the extent of renovation needed, but a lack of information regarding square footage prevents a full assessment of value. The limited exterior space is another factor to consider. Overall, this property offers a potential opportunity for a buyer willing to undertake a substantial renovation project in a desirable location. However, careful consideration of the financial implications is crucial.
Therefore, we give this property 4 / 10. *Disclaimer: This is our option and does constitute a recommendation or financial advice. Do your own research. *
- Price
- 6
- Condition
- 4
- Location
- 7
- Land
- 2
- Bedrooms
- 1
- Bathrooms
- 0
The heatmap indicates the level of crime in the area. The color of the heatmap indicates the crime severity and recency.
Metrics Year-on-Year
- Average area value
- 399,167.00 £Increased by 7.59 %
- Average area rental value
- 1,292.00 £/moIncreased by 3.03 %
- Est rental Yield
- 3.88 %Decreased by 4.43 %
- Crime Rate
- 28.00 %Unchanged by 0.00 %
Agent Activity
Chancellors marked this listing as sold.
Chancellors created the listing.
Nearby Schools
| Name | Type | Ofsted | Distance |
|---|---|---|---|
| Fleet Fireflies Children'S Centre | Children's Centre Linked Site | 0.20 KM | |
| Heatherside Junior School | Community School | Outstanding | 0.49 KM |
| Heatherside Infant School | Community School | Outstanding | 0.49 KM |
| Court Moor School | Community School | Good | 0.86 KM |
| All Saints Church Of England Aided Junior School | Voluntary Aided School | Good | 1.42 KM |
Images
Nearby Streets
| Name | Average Price | Average Sqft | Distance |
|---|---|---|---|
| Richmond Court | £ 0 | 0 | 0.00 KM |
| St James Court | £ 0 | 0 | 0.00 KM |
| Alexis Court | £ 0 | 0 | 0.00 KM |
| Hart Shopping Centre | £ 0 | 0 | 0.00 KM |
| Kingfisher Court | £ 0 | 0 | 0.00 KM |
Nearby Transport
| Name | NLC | TLC | Distance |
|---|---|---|---|
| Fleet | 5522 | FLE | 1.99 KM |
| Winchfield | 5528 | WNF | 7.02 KM |
| Sandhurst (Berks) | 5646 | SND | 8.78 KM |
| Farnham | 5545 | FNH | 9.33 KM |
| Blackwater | 5625 | BAW | 9.50 KM |
Nearby Listings
| Address | Price | Type | Score | Distance |
|---|---|---|---|---|
| Fleet, Hampshire, GU51 | £ 130,000 | BUY | 4 / 10 | 0.00 KM |
| Fleet, Hampshire, GU51 | £ 130,000 | BUY | 4 / 10 | 0.00 KM |
| Albert Street, Fleet | £ 245,000 | BUY | 6 / 10 | 0.04 KM |
| Woodman Court, Albert Street, Fleet, Hampshire, GU51 | £ 145,000 | BUY | 6 / 10 | 0.06 KM |
| Seco House, 32 Reading Road South, Fleet | £ 160,000 | BUY | 7 / 10 | 0.08 KM |
Nearby Properties
| Address | Price | Distance |
|---|---|---|
| 145 Albert Street | £ 343,000 | 0.07 KM |
| 148 Albert Street | £ 119,949 | 0.07 KM |
| 158 Albert Street | £ 199,950 | 0.07 KM |
| 159 Albert Street | £ 537,000 | 0.07 KM |
| 157 Albert Street | £ 355,000 | 0.07 KM |