Cardinal Avenue, Kingston Upon Thames
By Gibson Lane
£ 765,000
Reviews
3 out of 5 stars
Gibson Lane says ..
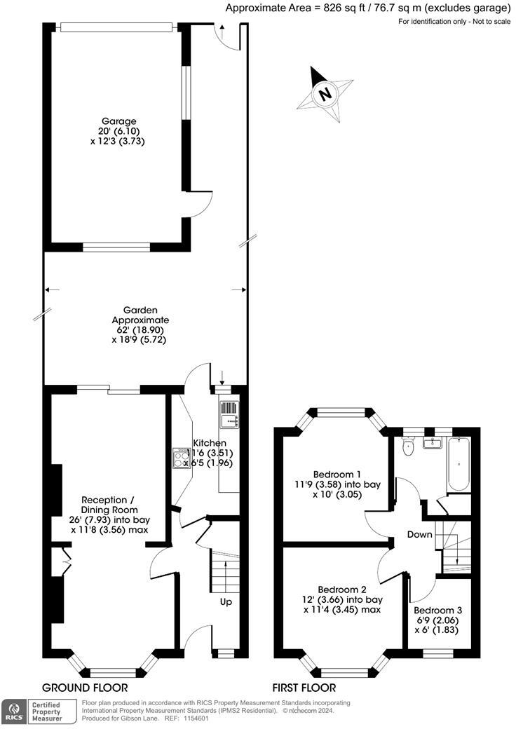
A charming three bedroom 1930's house situated on this popular road within the Tudor Development in North Kingston. The property is presented to a good standard throughout and offers huge potential to extend on the ground floor and into the loft space (STPP) which would create a substantial four ...
Property Oracle says ..
This three-bedroom terraced house in Kingston Upon Thames is located on Cardinal Avenue in the Tudor area. The property benefits from being close to excellent schools such as The Kingston Academy and The Tiffin Girls’ School, both rated as Outstanding by Ofsted. Kingston train station is also within a reasonable distance, providing convenient access to London and surrounding areas. The house itself has a modern kitchen and appears to be in good condition, although some updating may be desired to enhance its overall appeal. The property includes a garden, adding to its desirability. While the list price is slightly below the average price for the area, it is important to note that the average price per square foot is significantly higher than that of this property. This may indicate that the asking price is reasonable, considering the size of the property and its location. However, a thorough inspection is advised to verify the property’s condition and to confirm the accuracy of the information provided.
Therefore, we give this property 7 / 10. *Disclaimer: This is our option and does constitute a recommendation or financial advice. Do your own research. *
- Price
- 7
- Condition
- 8
- Location
- 9
- Land
- 6
- Bedrooms
- 3
- Bathrooms
- 1
- Sqft (est)
- 2,042.05
- Lot (est)
- 826.00
The heatmap indicates the level of crime in the area. The color of the heatmap indicates the crime severity and recency.
Metrics Year-on-Year
- Average area value
- 668,750.00 £Decreased by 1.97 %
- Est sale value
- 1,266,071.00 £Decreased by 5.05 %
- Average area rental value
- 2,575.00 £/moDecreased by 1.83 %
- Est letting value
- 4,084.10 £/moUnchanged by 0.00 %
- Est rental Yield
- 4.62 %Increased by 0.22 %
- Crime Rate
- 1.00 %Unchanged by 0.00 %
Agent Activity
Gibson Lane created the listing.
Nearby Schools
| Name | Type | Ofsted | Distance |
|---|---|---|---|
| The Kingston Academy | Free Schools | Outstanding | 0.44 KM |
| The Tiffin Girls' School | Academy Converter | Outstanding | 0.44 KM |
| Fern Hill Primary School | Academy Converter | 0.51 KM | |
| North Kingston Children'S Centre | Children's Centre | 0.55 KM | |
| Latchmere School | Academy Converter | Good | 0.64 KM |
Images
Nearby Streets
| Name | Average Price | Average Sqft | Distance |
|---|---|---|---|
| St Albans Road | £ 1,350,000 | 0 | 0.00 KM |
| Studland Road | £ 1,650,000 | 0 | 0.00 KM |
| Beech Row | £ 0 | 0 | 0.00 KM |
| Barnfield Avenue | £ 0 | 0 | 0.00 KM |
| Wych Elm Close | £ 0 | 0 | 0.00 KM |
Nearby Transport
| Name | NLC | TLC | Distance |
|---|---|---|---|
| Kingston | 5565 | KNG | 1.53 KM |
| Hampton Wick | 5589 | HMW | 1.99 KM |
| Norbiton | 5568 | NBT | 2.26 KM |
| Berrylands | 5581 | BRS | 3.64 KM |
| Teddington | 5572 | TED | 3.74 KM |
Nearby Listings
| Address | Price | Type | Score | Distance |
|---|---|---|---|---|
| Cardinal Avenue, Kingston Upon Thames | £ 765,000 | BUY | 7 / 10 | 0.00 KM |
| Tudor Drive, Kingston Upon Thames, KT2 | £ 895,000 | BUY | 7 / 10 | 0.11 KM |
| Tudor Drive, Kingston Upon Thames | £ 1,050,000 | BUY | 7 / 10 | 0.17 KM |
| Anne Boleyns Walk, Kingston Upon Thames | £ 850,000 | BUY | 6 / 10 | 0.18 KM |
| Wolsey Drive, Kingston Upon Thames | £ 725,000 | BUY | 6 / 10 | 0.19 KM |
Nearby Properties
| Address | Price | Distance |
|---|---|---|
| 158 Tudor Drive | £ 645,000 | 0.09 KM |
| 156 Tudor Drive | £ 805,000 | 0.09 KM |
| 168a Tudor Drive | £ 205,000 | 0.09 KM |
| 132 Tudor Drive | £ 575,000 | 0.09 KM |
| 130 Tudor Drive | £ 730,000 | 0.09 KM |