Enson, Stafford, ST18
JA

Enson, Stafford, ST18

By James Du Pavey

£ 1,250,000

Reviews

3 out of 5 stars

James Du Pavey says ..

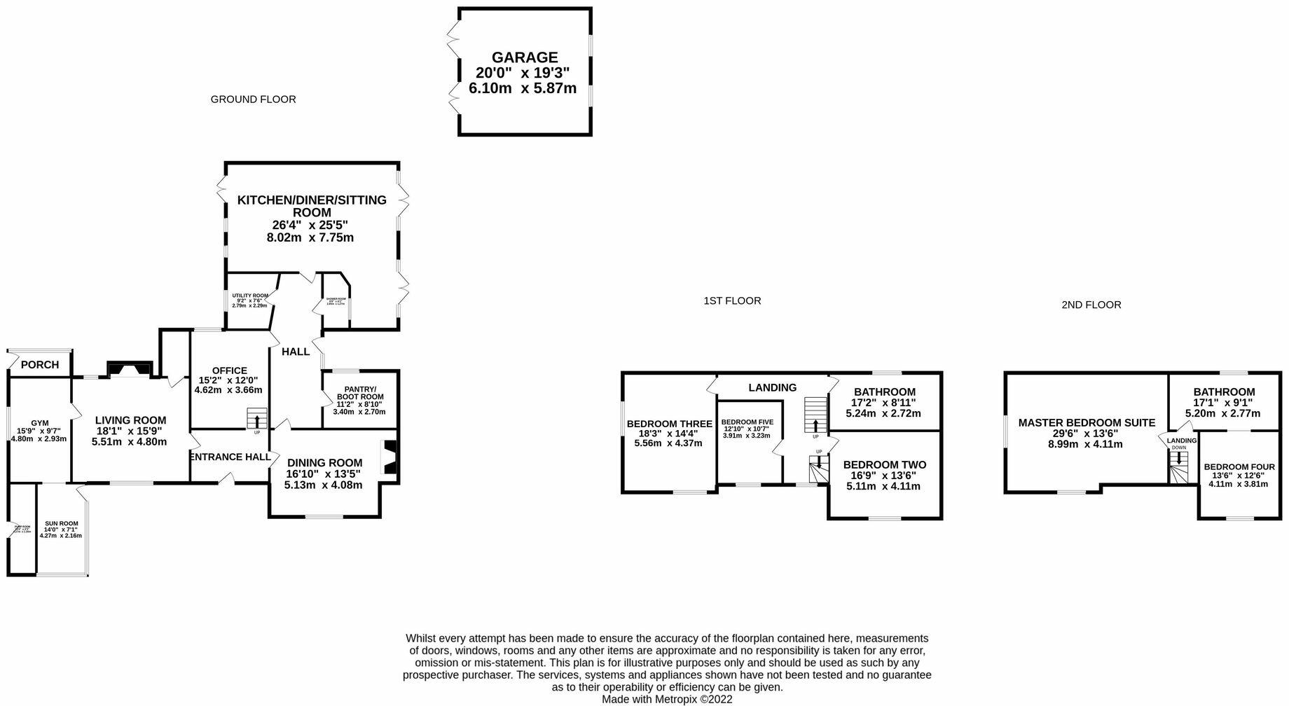
Grade II listed English property with original features. 5 bedrooms, formal dining and living rooms with fireplaces, 2 reception rooms, gym and sunroom. Extended open plan kitchen/dining/living room. Master suite with luxury bathroom. Electric gates, detached garage, courtyard garden. Stunning co...

Property Oracle says ..

This is a substantial period property that has been modernised. It offers ample living space, a large garden, and is located in a desirable rural area. While the price is high compared to the local average, the property’s size, condition, and features justify the premium. The property is ideal for families looking for a spacious home in a peaceful setting.

Therefore, we give this property 7 / 10. *Disclaimer: This is our option and does constitute a recommendation or financial advice. Do your own research. *

Price
6
Condition
8
Location
7
Land
9
Bedrooms
5
Bathrooms
4
Sqft (est)
3,661.24

The heatmap indicates the level of crime in the area. The color of the heatmap indicates the crime severity and recency.

Metrics Year-on-Year

Average area value
406,421.00 £
Decreased by 21.50 %
from 517,756.00 £
Est sale value
1,175,258.04 £
Increased by 40.79 %
from 834,762.72 £
Average area rental value
2,400.00 £/mo
Increased by 116.41 %
from 1,109.00 £/mo
Est letting value
3,661.24 £/mo
from 0.00 £/mo
Est rental Yield
7.09 %
Increased by 175.88 %
from 2.57 %
Crime Rate
0.00 %
from 0.00 %

Agent Activity

  • James Du Pavey created the listing.

Nearby Schools

NameTypeOfstedDistance
The Yarlet SchoolOther Independent School3.94 KM
Parkside Primary SchoolAcademy ConverterGood4.72 KM
Sir Graham Balfour High SchoolAcademy ConverterGood4.86 KM
Staffordshire UniversityHigher Education InstitutionsRequires improvement5.35 KM
Veritas Primary AcademyAcademy Sponsor LedGood5.36 KM

Images

Photo 13 Photo 42 Photo 46 Photo 50 Photo 32 Photo 52 Photo 10 Photo 47 Photo 4 Photo 21 Photo 15 Photo 18 Photo 20 Photo 12 Photo 8 Photo 14 Photo 9 Photo 2 Photo 11 Photo 33 Photo 3 Photo 16 Photo 22 Photo 17 Photo 51 Photo 48 Photo 1 Photo 7

Nearby Streets

NameAverage PriceAverage SqftDistance
Woodcock Lane £ 000.00 KM
Green Lane £ 000.00 KM

Nearby Transport

NameNLCTLCDistance
Stafford1268STA6.92 KM
Stone (Staffs)1316SNE8.57 KM

Nearby Listings

AddressPriceTypeScoreDistance
Enson, Stafford, ST18 £ 1,250,000BUY7 / 100.00 KM
Pool Cottages, Burston £ 425,000BUY7 / 100.99 KM
Mill Cottages, Sandon £ 399,950BUYUnknown1.42 KM
Mill Cottages, Sandon £ 325,000BUYUnknown1.44 KM
Marston Lane, Marston £ 550,000BUY5 / 101.47 KM