Chancellors says ..
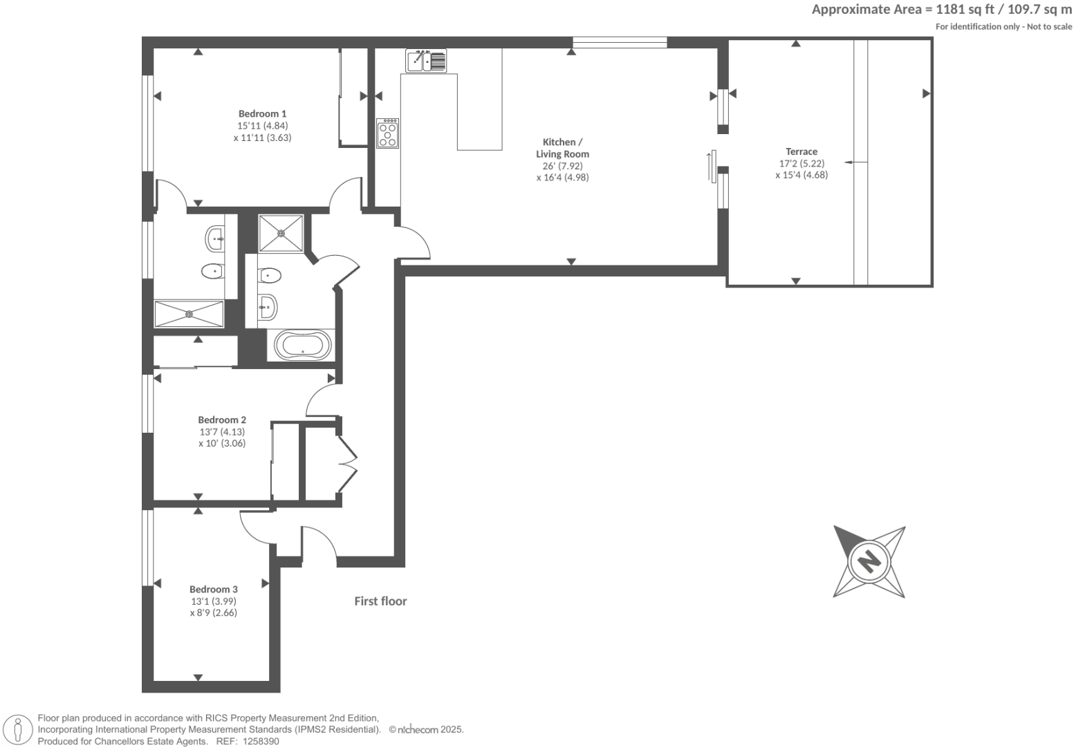
A rarely available three bedroom, two bathroom Racecourse apartment with full track views and double terrace. With 1181 sqft ( 109sqm) of accommodation including dual aspect living room. Allocated Parking and the owner has found a no chain property.
Property Oracle says ..
The property is a three-bedroom, two-bathroom apartment located at Newbury Racecourse in West Berkshire. Based on the provided images, the apartment appears to be in excellent condition, with modern fixtures and finishes throughout. The open-plan living space is bright and airy, and the kitchen is well-equipped. The bedrooms are spacious and well-presented. The location is a significant positive. The property is situated on the Newbury Racecourse development, offering convenient access to the racecourse itself. The proximity to Newbury town centre (2.40 KM) provides easy access to shops, amenities, and transportation links. Several schools are within a reasonable distance, including Engaging Potential (rated ‘Good’ by Ofsted) and St Joseph’s Catholic Primary School (also rated ‘Good’). The presence of the Great Western Railway station nearby provides good transport links. While the plot size is listed as 0.00 SQFT, the property does benefit from a large balcony offering views over the racecourse. This outdoor space adds considerable value. Considering the average price per square foot in the area is £350, and the property’s list price is £425,000 for 1,181 SQFT, the price seems reasonable. The property is in excellent condition, benefits from a desirable location, and features a large balcony. Comparable properties in the area, such as those on Kingman Way, are similarly priced, further supporting the reasonableness of the asking price. However, it is important to note that the absence of a garden may impact the overall value for some buyers.
Therefore, we give this property 7 / 10. *Disclaimer: This is our option and does constitute a recommendation or financial advice. Do your own research. *
- Price
- 8
- Condition
- 9
- Location
- 9
- Land
- 3
- Bedrooms
- 3
- Bathrooms
- 2
- Sqft (est)
- 1,181.00
The heatmap indicates the level of crime in the area. The color of the heatmap indicates the crime severity and recency.
Metrics Year-on-Year
- Average area value
- 358,606.00 £Decreased by 9.74 %
- Est sale value
- 529,088.00 £Increased by 27.27 %
- Average area rental value
- 1,448.00 £/moIncreased by 6.78 %
- Est letting value
- 1,181.00 £/moUnchanged by 0.00 %
- Est rental Yield
- 4.85 %Increased by 18.29 %
- Crime Rate
- 0.00 %
Agent Activity
Chancellors created the listing.
Nearby Schools
| Name | Type | Ofsted | Distance |
|---|---|---|---|
| Engaging Potential | Other Independent Special School | Good | 1.13 KM |
| Fir Tree Primary School And Nursery | Academy Sponsor Led | Requires improvement | 1.24 KM |
| The Willows Primary School | Community School | Requires improvement | 1.65 KM |
| St Joseph'S Catholic Primary School | Voluntary Aided School | Good | 1.81 KM |
| Victoria Park Nursery School & Family Hub | Local Authority Nursery School | Outstanding | 2.39 KM |
Images
Nearby Streets
| Name | Average Price | Average Sqft | Distance |
|---|---|---|---|
| Filly Close | £ 0 | 0 | 0.00 KM |
| Alder Close | £ 0 | 0 | 0.00 KM |
| Popes Place | £ 475,000 | 0 | 0.00 KM |
| Fontwell Road | £ 0 | 0 | 0.00 KM |
| Arnhem Road | £ 0 | 0 | 0.00 KM |
Nearby Transport
| Name | NLC | TLC | Distance |
|---|---|---|---|
| Newbury Racecourse | 3071 | NRC | 0.76 KM |
| Newbury | 3074 | NBY | 2.40 KM |
| Thatcham | 3152 | THA | 6.42 KM |
Nearby Listings
| Address | Price | Type | Score | Distance |
|---|---|---|---|---|
| Kingman Way, Newbury, RG14 | £ 400,000 | BUY | 8 / 10 | 0.06 KM |
| Newbury, Berkshire, RG14 | £ 340,000 | BUY | 6 / 10 | 0.06 KM |
| Kingman Way, Newbury, Berkshire, RG14 | £ 100,000 | BUY | 6 / 10 | 0.08 KM |
| Kingman Way, Newbury RG14 7GU | £ 400,000 | BUY | 6 / 10 | 0.08 KM |
| Newbury Racecourse development, | £ 108,000 | BUY | 6 / 10 | 0.09 KM |
Nearby Properties
| Address | Price | Distance |
|---|---|---|
| 18 Farriers House | £ 318,000 | 0.16 KM |
| Unit 40a Kingfisher Court | £ 55,000 | 0.43 KM |
| 28 Cormorant Wood | £ 165,000 | 0.68 KM |
| 22 Cormorant Wood | £ 229,950 | 0.68 KM |
| 25 Cormorant Wood | £ 220,000 | 0.68 KM |