BR
Nene Road, Watlington, King's Lynn
By Brittons Estate Agents
£ 240,000
Reviews
3 out of 5 stars
Brittons Estate Agents says ..
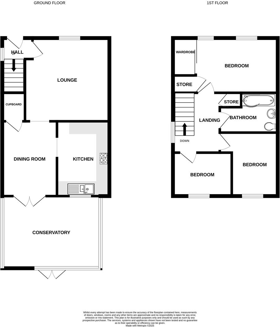
Situated on Nene Road in the popular village of Watlington, Norfolk, this modern semi-detached house offers a delightful family home. With three bedrooms, this property is perfect for families seeking comfort and space. The two reception rooms provide ample living areas, ideal for both relaxation...
Property Oracle says ..
Therefore, we give this property 7 / 10. *Disclaimer: This is our option and does constitute a recommendation or financial advice. Do your own research. *
- Price
- 9
- Condition
- 8
- Location
- 7
- Land
- 7
- Bedrooms
- 3
- Bathrooms
- 1
- Sqft (est)
- 958.00
The heatmap indicates the level of crime in the area. The color of the heatmap indicates the crime severity and recency.
Metrics Year-on-Year
- Average area value
- 395,000.00 £Decreased by 17.16 %
- Est sale value
- 510,614.00 £Increased by 33.58 %
- Average area rental value
- 840.00 £/moDecreased by 64.47 %
- Est letting value
- 958.00 £/moUnchanged by 0.00 %
- Est rental Yield
- 2.55 %Decreased by 57.14 %
- Crime Rate
- 83.00 %Unchanged by 0.00 %
from 476,837.00 £
from 382,242.00 £
from 2,364.00 £/mo
from 958.00 £/mo
from 5.95 %
from 83.00 %
Agent Activity
Brittons Estate Agents created the listing.
Nearby Schools
| Name | Type | Ofsted | Distance |
|---|---|---|---|
| Watlington Community Primary School | Community School | Good | 0.58 KM |
| Holy Cross Church Of England Primary School | Academy Sponsor Led | Requires improvement | 2.92 KM |
| Magdalen Academy | Academy Converter | 3.35 KM | |
| St Germans Academy | Academy Converter | 4.39 KM | |
| West Winch Primary School | Community School | Good | 5.34 KM |
Images
Nearby Streets
| Name | Average Price | Average Sqft | Distance |
|---|---|---|---|
| Lake Close | £ 215,000 | 0 | 0.00 KM |
| Woodward Close | £ 290,750 | 0 | 0.00 KM |
| Jackson Close | £ 0 | 0 | 0.00 KM |
| Chestnut Close | £ 0 | 0 | 0.00 KM |
| Gipsy Lane | £ 300,000 | 0 | 0.00 KM |
Nearby Transport
| Name | NLC | TLC | Distance |
|---|---|---|---|
| Watlington | 7057 | WTG | 0.47 KM |
| Downham Market | 7055 | DOW | 8.24 KM |
| Kings Lynn | 7115 | KLN | 8.97 KM |
Nearby Listings
| Address | Price | Type | Score | Distance |
|---|---|---|---|---|
| Nene Road, Watlington, King's Lynn | £ 240,000 | BUY | 7 / 10 | 0.00 KM |
| Babingley Close, Watlington, King's Lynn, PE33 | £ 343,000 | BUY | 6 / 10 | 0.09 KM |
| Stiffkey Close, Watlington, King's Lynn, PE33 | £ 210,000 | BUY | Unknown | 0.14 KM |
| Britton Close, Watlington, King's Lynn, Norfolk, PE33 | £ 200,000 | BUY | 6 / 10 | 0.15 KM |
| Station Road, Watlington, King's Lynn | £ 250,000 | BUY | 7 / 10 | 0.15 KM |
Nearby Properties
| Address | Price | Distance |
|---|---|---|
| 18 Nene Road | £ 133,000 | 0.00 KM |
| 24 Nene Road | £ 159,995 | 0.00 KM |
| 7 Nene Road | £ 182,000 | 0.00 KM |
| 11 Nene Road | £ 142,500 | 0.00 KM |
| 10 Nene Road | £ 179,000 | 0.00 KM |