HA
Shafto Road, Ipswich, Suffolk, IP1
By Hamilton Smith
£ 299,995
Reviews
3 out of 5 stars
Hamilton Smith says ..
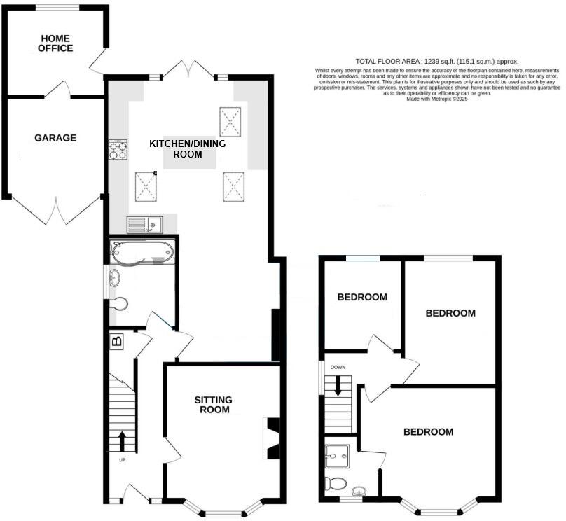
We are pleased to offer for sale this BEAUTIFULLY PRESENTED, EXTENDED, THREE BEDROOM SEMI DETACHED FAMILY HOUSE OCCUPYING A CENTRAL POSITION WITH PARKING AND GARAGE. Located within easy access of the town centre, Westbourne High School and the A14.
Property Oracle says ..
Therefore, we give this property 7 / 10. *Disclaimer: This is our option and does constitute a recommendation or financial advice. Do your own research. *
- Price
- 7
- Condition
- 8
- Location
- 7
- Land
- 7
- Bedrooms
- 3
- Bathrooms
- 2
- Sqft (est)
- 1,239.00
The heatmap indicates the level of crime in the area. The color of the heatmap indicates the crime severity and recency.
Metrics Year-on-Year
- Average area value
- 176,250.00 £Decreased by 15.23 %
- Est sale value
- 495,600.00 £Increased by 51.52 %
- Average area rental value
- 957.00 £/moDecreased by 27.22 %
- Est letting value
- 2,478.00 £/moIncreased by 100.00 %
- Est rental Yield
- 6.52 %Decreased by 14.10 %
- Crime Rate
- 7.00 %Unchanged by 0.00 %
from 207,923.00 £
from 327,096.00 £
from 1,315.00 £/mo
from 1,239.00 £/mo
from 7.59 %
from 7.00 %
Agent Activity
Hamilton Smith created the listing.
Nearby Schools
| Name | Type | Ofsted | Distance |
|---|---|---|---|
| Westbourne Academy | Academy Converter | Good | 0.44 KM |
| Whitehouse Community Primary School | Academy Converter | 0.54 KM | |
| Springfield Infant School And Nursery | Academy Converter | Good | 1.10 KM |
| Springfield Junior School | Academy Converter | 1.32 KM | |
| Highfield Children'S Centre | Children's Centre | 1.36 KM |
Images
Nearby Streets
| Name | Average Price | Average Sqft | Distance |
|---|---|---|---|
| Weaver Close | £ 210,000 | 0 | 0.00 KM |
| Redhill Close | £ 265,000 | 0 | 0.00 KM |
| Bentley Road | £ 324,995 | 0 | 0.00 KM |
| Tyrone Close | £ 0 | 0 | 0.00 KM |
| Arkwright Road | £ 170,000 | 0 | 0.00 KM |
Nearby Transport
| Name | NLC | TLC | Distance |
|---|---|---|---|
| Ipswich | 7217 | IPS | 3.34 KM |
| Westerfield | 7226 | WFI | 5.07 KM |
| Derby Road (Ipswich) | 7212 | DBR | 7.11 KM |
Nearby Listings
| Address | Price | Type | Score | Distance |
|---|---|---|---|---|
| Shafto Road, Ipswich, Suffolk, IP1 | £ 299,995 | BUY | 7 / 10 | 0.00 KM |
| Shafto Road, Ipswich. IP1 5HA | £ 300,000 | BUY | Unknown | 0.01 KM |
| Henniker Road, Ipswich | £ 180,000 | BUY | 7 / 10 | 0.15 KM |
| Shafto Road, Ipswich, Suffolk, UK, IP1 | £ 179,995 | BUY | 6 / 10 | 0.16 KM |
| Shafto Road, Ipswich, IP1 | £ 109,950 | BUY | 5 / 10 | 0.18 KM |
Nearby Properties
| Address | Price | Distance |
|---|---|---|
| 39 Shafto Road | £ 181,500 | 0.00 KM |
| 35 Shafto Road | £ 240,000 | 0.00 KM |
| 37 Shafto Road | £ 250,000 | 0.00 KM |
| 3 Shafto Road | £ 78,000 | 0.00 KM |
| 21 Shafto Road | £ 226,000 | 0.00 KM |