Pembury Avenue, Penwortham, Preston
BE

Pembury Avenue, Penwortham, Preston

By Ben Rose

£ 399,950

Reviews

3 out of 5 stars

Ben Rose says ..

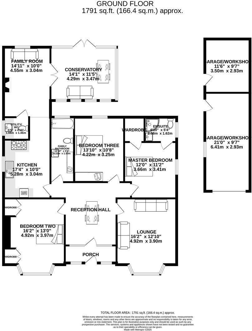
Ben Rose Estate Agents are delighted to present to the market this charming three-bedroom detached property, located in the highly sought-after and picturesque town of Penwortham. Beautifully extended to the rear, this home offers an abundance of space throughout and has been thoughtfully designe...

Property Oracle says ..

Therefore, we give this property 7 / 10. *Disclaimer: This is our option and does constitute a recommendation or financial advice. Do your own research. *

Price
8
Condition
7
Location
8
Land
8
Bedrooms
3
Bathrooms
2
Sqft (est)
1,791.00

The heatmap indicates the level of crime in the area. The color of the heatmap indicates the crime severity and recency.

Metrics Year-on-Year

Average area value
472,750.00 £
Decreased by 21.88 %
from 605,189.00 £
Est sale value
1,377,279.00 £
Increased by 27.74 %
from 1,078,182.00 £
Average area rental value
1,418.00 £/mo
Decreased by 35.04 %
from 2,183.00 £/mo
Est letting value
3,582.00 £/mo
Unchanged by 0.00 %
from 3,582.00 £/mo
Est rental Yield
3.60 %
Decreased by 16.86 %
from 4.33 %
Crime Rate
4.00 %
Unchanged by 0.00 %
from 4.00 %

Agent Activity

  • Ben Rose created the listing.

Nearby Schools

NameTypeOfstedDistance
St Mary Magdalen'S Catholic Primary SchoolVoluntary Aided SchoolGood0.63 KM
Penwortham Middleforth Church Of England Primary SchoolVoluntary Controlled SchoolGood1.00 KM
Kingsfold Primary SchoolCommunity SchoolGood1.08 KM
Kingsfold Children'S CentreChildren's Centre1.13 KM
Lostock Hall Moor Hey SchoolCommunity Special SchoolGood1.48 KM

Images

Front External Garden Lounge Lounge Family Room/Utility/Conservatory Conservatory Lounge Kitchen Entrance Hall Reception Hall Kitchen Kitchen Kitchen Family Room Family Room Conservatory Utility/WC Master Bedroom Master Bedroom Master Ensuite Reception Hall Bedroom Two Bedroom Two Bedroom Three Bedroom Three Family Bathroom Family Bathroom Garden Garden Garden Garden Garden Garden Garden Car Port Carport Driveway/Carport Driveway Front Garden/Driveway Front External Conservatory

Nearby Streets

NameAverage PriceAverage SqftDistance
Stanley Avenue £ 000.00 KM
Park Road £ 89,95000.00 KM
Mark Close £ 000.00 KM
Park Close £ 59,95000.00 KM
Conway Avenue £ 000.00 KM

Nearby Transport

NameNLCTLCDistance
Preston (Lancs)2753PRE1.94 KM
Lostock Hall2689LOH2.67 KM
Leyland2710LEY4.98 KM
Bamber Bridge2561BMB5.20 KM
Buckshaw Parkway7501BSV8.90 KM

Nearby Listings

AddressPriceTypeScoreDistance
Pembury Avenue, Penwortham, Preston £ 399,950BUY7 / 100.00 KM
Leyland Road, Penwortham £ 165,000BUY6 / 100.07 KM
Pembury Avenue, Penwortham £ 350,000BUYUnknown0.08 KM
Pembury Avenue, Penwortham, Preston £ 279,950BUY7 / 100.09 KM
Pembury Avenue, Penwortham, Preston £ 269,950BUYUnknown0.14 KM

Nearby Properties

AddressPriceDistance
185 Leyland Road £ 171,5000.07 KM
191 Leyland Road £ 230,0000.07 KM
177 Leyland Road £ 151,0000.07 KM
175 Leyland Road £ 139,0000.07 KM
187 Leyland Road £ 125,0000.07 KM